Soccer reality

Pronájem bytu 2+kk, Praha - Libeň, Českomoravská, 59 m2 (ID: 4198812)

Českomoravská, Praha 9

22 500 Kč /za měsíc Získejte výhodnou HYPOTÉKU
Prémioví partneři v Praze 9

Stěhovací služby

Výkup a prodej starého nábytku

Informace k bytu

Exkluzivně nabízíme k dlouhodobému pronájmu velmi příjemný a slunný byt o dispozici 2+kk a celkové ploše 59 m² s terasou 6 m², který se nachází v 5. nadzemním podlaží moderního bytového domu s výtahem v ulici Českomoravská.
Byt je plně vybaven a díky promyšlenému dispozičnímu řešení nabízí komfortní bydlení s dostatkem úložných prostor.

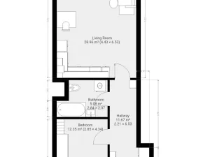
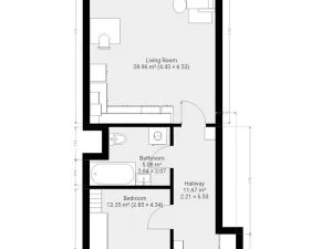
DISPOZICE BYTU
Dominantou bytu je světlý obývací pokoj s kuchyňským koutem a jídelní částí o velikosti téměř 30 m², který poskytuje příjemný prostor pro každodenní život i setkávání s přáteli.
Z obývacího pokoje je vstup na terasu o velikosti 6 m², kde si můžete vychutnat ranní kávu nebo večerní odpočinek.
Samostatná ložnice je orientována do klidného vnitrobloku, což zajišťuje příjemné a ničím nerušené spaní.
Koupelna je vybavena vanou a pračkou.

VYBAVENÍ BYTU
Byt je plně vybaven a připraven k okamžitému nastěhování.
Součástí vybavení je zejména:
- vestavěná kuchyňská linka
- varná deska
- trouba
- lednice s mrazákem
- myčka nádobí
- pračka
- vestavěné skříně ve vstupní hale
- vestavěné skříně v ložnici

PARKOVÁNÍ
Parkování je možné na soukromém pozemku za bytovým domem. Parkovací místa nejsou vyhrazena a jsou k dispozici dle aktuální obsazenosti.

LOKALITA
Byt se nachází ve velmi dobře dostupné části Prahy – Libeň / Českomoravská, která nabízí výbornou občanskou vybavenost i dopravní dostupnost.

V docházkové vzdálenosti najdete:
- metro B – stanice Českomoravská
- tramvajové a autobusové zastávky
- Galerii Harfa – nákupní centrum s restauracemi a službami
- O2 arenu a O2 universum – sportovní a kulturní centrum
- fitness centra, kavárny a restaurace

V blízkosti bytu se nachází oblíbený Park Podviní, ideální místo pro procházky, sport i odpočinek v zeleni u říčky Rokytky.

PODMÍNKY NÁJEMNÍ SMLOUVY
Měsíční nájemné: 22.500,- Kč
Poplatky: 3.600,- Kč / měsíc
Elektřina: 800,- Kč / 1 osobu nebo 1.300, - Kč / 2 osoby
Internet: v ceně nájmu
Kauce: 36.000,- Kč
Provize RK: 1 měsíční nájem + DPH

Těšíme se na Vás na prohlídce. Pronajímající si vyhrazuje právo vybrat nájemce na základě jím zvolených kritérií.

Parametry bytu

Cena
22 500 Kč /za měsíc
Aktualizováno
14. 4. 2026
Adresa
Českomoravská, Praha 9
ID
320-NP00270
Stavba
Smíšená
Stav objektu
Velmi dobrý
Patro
5. z 8
Vybaveno
Ano
Lokalita objektu
Centrum obce
Vlastnictví
Osobní
Užitná plocha
59 m2
Podlahová plocha
65 m2
Třída energetické náročnosti
G - Mimořádně nehospodárná
Plyn
Plynovod
Odpad
Veřejná kanalizace
Telekomunikace
Internet
Terasa
Výtah

Kontaktovat makléře

Máte zájem o tento byt?

Tímto, v souladu s nařízením Evropského parlamentu a Rady (EU) 2016/679, v platném znění, prohlašuji, že mi je alespoň 16 let a uděluji tak svůj souhlas se zpracováním zadaných údajů (jméno, telefon, e-mail, ip adresa) společnosti B3 Technology, s.r.o., IČ: 07330600, se sídlem Novostavby 126/23, 435 11 Lom (správce dat), za účelem předání dotazu z tohoto formuláře Vámi vybranému inzerentovi a zpětného kontaktování mé osoby. Osobní údaje bude správce zpracovávat manuálně i automaticky přímo prostřednictvím svých zaměstnanců. Informace předané tímto formulářem budou uloženy v databázi správce maximálně po dobu 10 let. Odvolání souhlasu s uložením a zpracováním poskytnutých dat lze e-mailem na info@videobydleni.cz. V případě podezření na neoprávněné použití Vámi poskytnutých údajů máte právo předat podnět k šetření Úřadu pro ochranu osobních údajů. Více informací
Chystáte se prodat nemovitost?
Pomůžeme Vám!

Inzerát si prohlédlo 26 lidí

Prodejce

Mgr. Marie Gűtlová

Mgr. Marie Gűtlová

Hlídací pes

Chcete dostávat emailem podobné nabídky pronájmu bytů 2+kk v Praze 9?

Podobné nemovitosti


Nevyhovuje Vám typ bytu? Podívejte se na jiné kategorie bytů.


Vybrané články z našeho blogu