Prodej rodinného domu, Diváky, 125 m2 (ID: 4199135)

Diváky

Cena na vyžádání /za nemovitost Získejte výhodnou HYPOTÉKU

(info v RK, včetně poplatků, včetně provize, včetně právního servisu)

Prémioví partneři v Divácích

Informace k domu

Ve výhradním zastoupení majitele Vám nabízíme k prodeji přízemní rodinný dům o dispozici 2+1 se zahradou v obci Diváky, okres Břeclav.

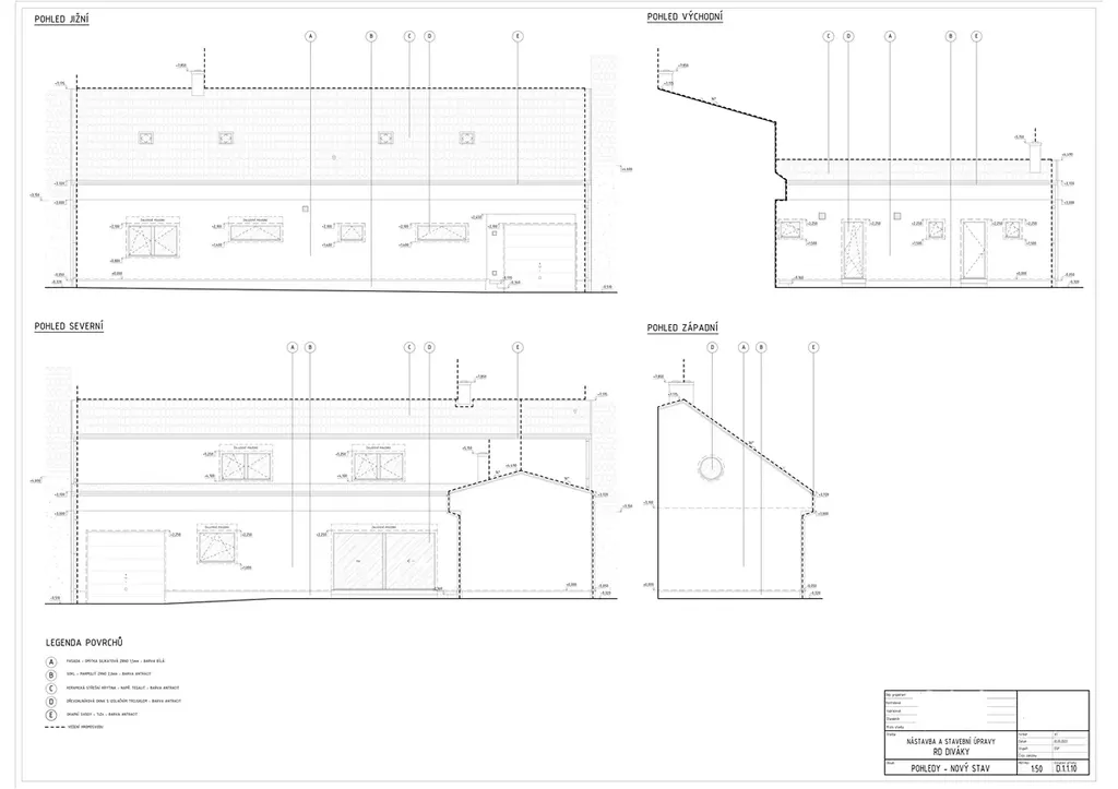
Nemovitost je určena ke kompletní rekonstrukci, která zahrnuje střechu, rozvody inženýrských sítí, podlahy a okna, případně může být demolována a nahrazena novostavbou. V tuto chvíli je již vydané stavební povolení na rekonstrukci a k dispozici je vypracovaný projekt. Po dohodě s majitelem je možné zajistit realizaci hrubé stavby dle schválené projektové dokumentace.

Celková plocha pozemku činí 612 m², z toho zastavěná plocha je 218 m². Dvůr a zahrada mají dohromady 394 m². Uliční šíře domu je 19,6 m. Dům má zavedenou přípojku elektřiny, přípojky vody a plynu jsou přivedeny k hranici pozemku. Napojení na dešťovou kanalizaci je možné v chodníku před domem. Na pozemku se nachází také vlastní studna. Parkování osobního nebo nákladního vozu je možné v průjezdu nebo přímo ve dvoře, přístupném z ulice přes dřevěná vrata o rozměrech 2,84 × 2,91 m.

K hlavnímu vchodu domu vede malá oplocená předzahrádka. Po vstupu do chodby se vpravo nachází pokoj o výměře 20,6 m², vlevo kuchyně o velikosti 17,1 m². Z kuchyně je přístup do koupelny (3,66 m²), případně lze pokračovat do ložnice (20,6 m²). Chodbou projdete na prostornou prosklenou verandu (23 m²) s výhledem do dvora. Z verandy vedou dveře vpravo do průjezdu, vlevo pak do druhého, zastavěného křídla domu. To tvoří tři technické místnosti propojené prosklenou chodbou: první (12,2 m²), pravděpodobně využívaná ke zpracování masa, druhá (7,4 m²) s původním plynovým kotlem a třetí (13 m²) sloužila jako sklad. Na konci chodby se nachází samostatné WC (1,5 m²). Odtud se dále prochází na dvůr, kde se nachází chlév (12,6 m²) a prostorná zastřešená kůlna s udírnou.

Obec Diváky leží v malebném údolí obklopeném kopci a listnatými lesy Ždánického lesa. Svahy okolních kopců pokrývají pole a vinice, které společně vytvářejí klidné a atraktivní prostředí. Obec je známa také jako bydliště spisovatelských bratří Mrštíků.

Obyvatelé mají k dispozici tzv. víceúčelovou budovu s poštou, ordinací praktického lékaře, kadeřnictvím, hasičskou zbrojnicí a základní školou. Obec je plynofikována a většina domácností je napojena na veřejný vodovod i kanalizaci. Kulturní a společenský život zajišťuje obecní úřad ve spolupráci s místními spolky. K dispozici je také veřejná knihovna s připojením k internetu.

V obci žije přibližně 511 obyvatel. Diváky se nacházejí 30 minut jízdy od Brna (cca 35 km) a pouhých 9 km od nájezdu na dálnici D2 v Hustopečích.

Parametry domu

Cena
Cena na vyžádání Spočítat hypotéku
Poznámka k ceně
info v RK, včetně poplatků, včetně provize, včetně právního servisu
Aktualizováno
27. 4. 2026
Adresa
Diváky
ID
00289
Stavba
Cihlová
Stav objektu
Před rekonstrukcí
Vybaveno
Ne
Druh objektu
Řadový
Lokalita objektu
Centrum obce
Užitná plocha
125 m2
Plocha pozemku
612 m2
Třída energetické náročnosti
G - Mimořádně nehospodárná
Elektřina
230V
Plyn
Plynovod
Odpad
Septik
Komunikace
Asfaltová
Doprava
Silnice, Autobus
Voda
Vodovod
Výtah

Kontaktovat makléře

Realitní kancelář

Real Marco

Hlinky 150/78, Brno, Staré Brno

Chystáte se prodat nemovitost?
Pomůžeme Vám!

Máte zájem o tento dům?

Tímto, v souladu s nařízením Evropského parlamentu a Rady (EU) 2016/679, v platném znění, prohlašuji, že mi je alespoň 16 let a uděluji tak svůj souhlas se zpracováním zadaných údajů (jméno, telefon, e-mail, ip adresa) společnosti B3 Technology, s.r.o., IČ: 07330600, se sídlem Novostavby 126/23, 435 11 Lom (správce dat), za účelem předání dotazu z tohoto formuláře Vámi vybranému inzerentovi a zpětného kontaktování mé osoby. Osobní údaje bude správce zpracovávat manuálně i automaticky přímo prostřednictvím svých zaměstnanců. Informace předané tímto formulářem budou uloženy v databázi správce maximálně po dobu 10 let. Odvolání souhlasu s uložením a zpracováním poskytnutých dat lze e-mailem na info@videobydleni.cz. V případě podezření na neoprávněné použití Vámi poskytnutých údajů máte právo předat podnět k šetření Úřadu pro ochranu osobních údajů. Více informací
Chystáte se prodat nemovitost?
Pomůžeme Vám!

Inzerát si prohlédlo 8 lidí

Prodejce

Dušan Valach

Dušan Valach

Hlídací pes

Chcete dostávat emailem podobné nabídky prodeje rodinných domů v Divácích?

Podobné nemovitosti


Nevyhovuje Vám typ domu? Podívejte se na jiné kategorie domů.


Vybrané články z našeho blogu