Pronájem bytu 2+1, Praha, Káranská, 56 m2

Káranská, Praha

20 990 Kč /za měsíc Získejte výhodnou HYPOTÉKU

(náklady na bydlení 4000, vratná jistota Kč, poplatek za podnájem 24990)

Prémioví partneři v Praze

Stěhovací služby

Výkup a prodej starého nábytku

Informace k bytu

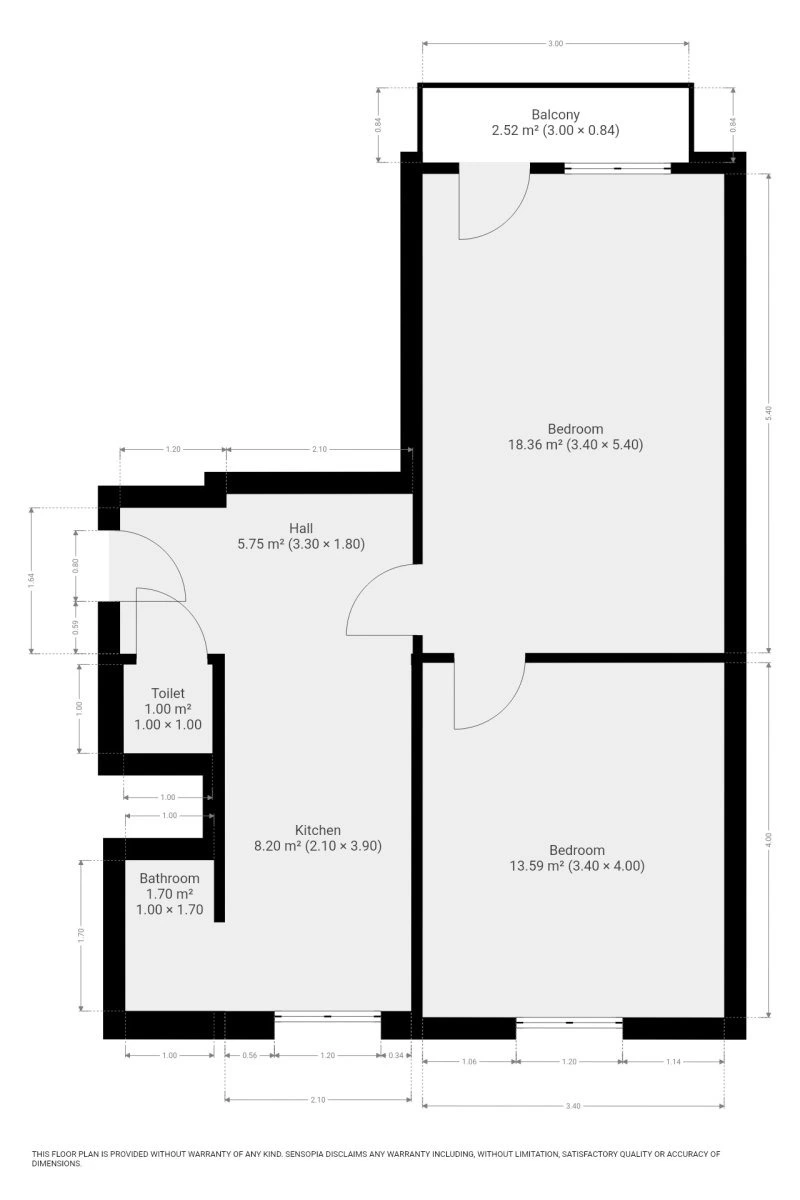
Nabízíme k dlouhodobému pronájmu zcela zrekonstruovaný a prakticky řešený byt 2+1 o velikosti 56m², situovaný v panelovém s moderním s výtahem. K bytu náleží sklep.

Dispozičně byt nabízí prostornou předsíň i plně vybavenou koupelnu. Kuchyňská linka je zcela nová a obsahuje všechny vestavěné potřebné spotřebiče včetně myčky. Obývací pokoj je spojen s prostorným balkonem, který nabízí nádherný výhled. Druhou místností je pokoj o rozměru 14 m². Výhodou také je, že v bytě budete žít jako první po rekonstrukci.

Byt se nachází v oblíbené části města Praha-Malešice. Lokalita spojuje naprostý klid v okolí bytu, ale zároveň výbornou dopravní dostupnost i občanskou vybavenost. V docházkové vzdálenosti se nachází autobusová i tramvajová zastávka. Jen pár stanic pak linka metra A. Sportovní vyžití pak nabízí přilehlé parky, hřiště a turistické stezky.

Byt je k nastěhování ihned.
Měsíční nájem činí 20990 Kč. Poplatky za služby jsou nyní 4000 Kč. Vkládá se vratná kauce. Jednorázový poplatek za podnájem 24990Kč.

Parametry bytu

Cena
20 990 Kč /za měsíc
Poznámka k ceně
náklady na bydlení 4000, vratná jistota Kč, poplatek za podnájem 24990
Aktualizováno
6. 3. 2026
Adresa
Káranská, Praha
ID
N7396
Stavba
Panelová
Stav objektu
Velmi dobrý
Patro
3. z 8
Vybaveno
Částečně
Typ objektu
Patrový
Lokalita objektu
Klidná část obce
Vlastnictví
Družstevní
Užitná plocha
56 m2
Podlahová plocha
56 m2
Elektřina
230V
Topení
Ústřední elektrické
Balkon
Sklep
Lodžie
Výtah
Bezbarierový přístup
Převod do OV

Kontaktovat makléře

Máte zájem o tento byt?

Tímto, v souladu s nařízením Evropského parlamentu a Rady (EU) 2016/679, v platném znění, prohlašuji, že mi je alespoň 16 let a uděluji tak svůj souhlas se zpracováním zadaných údajů (jméno, telefon, e-mail, ip adresa) společnosti B3 Technology, s.r.o., IČ: 07330600, se sídlem Novostavby 126/23, 435 11 Lom (správce dat), za účelem předání dotazu z tohoto formuláře Vámi vybranému inzerentovi a zpětného kontaktování mé osoby. Osobní údaje bude správce zpracovávat manuálně i automaticky přímo prostřednictvím svých zaměstnanců. Informace předané tímto formulářem budou uloženy v databázi správce maximálně po dobu 10 let. Odvolání souhlasu s uložením a zpracováním poskytnutých dat lze e-mailem na info@videobydleni.cz. V případě podezření na neoprávněné použití Vámi poskytnutých údajů máte právo předat podnět k šetření Úřadu pro ochranu osobních údajů. Více informací
Chystáte se prodat nemovitost?
Pomůžeme Vám!

Inzerát si prohlédlo 0 lidí

Prodejce

Miloslava Kačerová

Miloslava Kačerová

Hlídací pes

Chcete dostávat emailem podobné nabídky pronájmu bytů 2+1 v Praze?

Podobné nemovitosti


Nevyhovuje Vám typ bytu? Podívejte se na jiné kategorie bytů.


Vybrané články z našeho blogu