Prodej rodinného domu, Havířov, Farská, 106 m2 (ID: 4200035)

Farská, Havířov

8 271 400 Kč /za nemovitost HYPOTÉKA od 36 968 Kč /za měsíc
Prémioví partneři v Havířově

Informace k domu

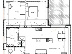
Představujeme vám Grandis (5+kk) – velkorysý rodinný dům s čistými liniemi a moderní pultovou střechou, který nabízí nadstandardní prostor pro celou rodinu. Tento dům realizujeme kompletně „na klíč“ a ačkoliv je v této nabídce spojen s konkrétní parcelou, lze jej po dohodě postavit na jakémkoliv jiném vašem pozemku.

Hlavní focus: Dům Grandis (5 990 000 Kč)
Dispozice 5+kk (106 m²): Ideální řešení pro početnou rodinu se čtyřmi ložnicemi a velkým obývacím pokojem.

Vybavení v ceně: Neřešíte jen hrubou stavbu. Cena zahrnuje projekt, stavební povolení, finální podlahy, obklady, kompletní sanitu, interiérové dveře i napojení na sítě v rámci pozemku.

Moderní technologie: Součástí standardu je klimatizace a třísložkový komín připravený pro krbová kamna.

Technické parametry: Kvalitní zdicí systém z pórobetonu, moderní pultová střecha (sklon 5°) a variabilní orientace vstupu.

Servis bez starostí: Přebíráme kompletní odpovědnost od projektové dokumentace až po finální kolaudaci.

Realizace na nabízeném pozemku 1 037 m²
Pro účely této nabídky jsme dům Grandis (zastavěná plocha 134 m²) umístili na prostorný pozemek parc. č. 1064/93 o výměře 1 037 m². Tato kombinace nabízí luxusní prostor pro dům i rozlehlou zahradu.

Celková investice (Dům Grandis + Pozemek): 8 271 400 Kč.
(Rozklad ceny: dům 5 990 000 Kč + pozemek 2 281 400 Kč při ceně 2 200 Kč/m²).

Parametry domu

Cena
8 271 400 Kč /za nemovitost Spočítat hypotéku
Aktualizováno
7. 3. 2026
Adresa
Farská, Havířov
Stavba
Cihlová
Stav objektu
Projekt
Užitná plocha
106 m2
Výtah

Kontaktovat makléře

Máte zájem o tento dům?

Tímto, v souladu s nařízením Evropského parlamentu a Rady (EU) 2016/679, v platném znění, prohlašuji, že mi je alespoň 16 let a uděluji tak svůj souhlas se zpracováním zadaných údajů (jméno, telefon, e-mail, ip adresa) společnosti B3 Technology, s.r.o., IČ: 07330600, se sídlem Novostavby 126/23, 435 11 Lom (správce dat), za účelem předání dotazu z tohoto formuláře Vámi vybranému inzerentovi a zpětného kontaktování mé osoby. Osobní údaje bude správce zpracovávat manuálně i automaticky přímo prostřednictvím svých zaměstnanců. Informace předané tímto formulářem budou uloženy v databázi správce maximálně po dobu 10 let. Odvolání souhlasu s uložením a zpracováním poskytnutých dat lze e-mailem na info@videobydleni.cz. V případě podezření na neoprávněné použití Vámi poskytnutých údajů máte právo předat podnět k šetření Úřadu pro ochranu osobních údajů. Více informací
Chystáte se prodat nemovitost?
Pomůžeme Vám!

Inzerát si prohlédlo 1 lidí

Prodejce

Daniel Lang

Daniel Lang

Hlídací pes

Chcete dostávat emailem podobné nabídky prodeje rodinných domů v Havířově?

Podobné nemovitosti


Nevyhovuje Vám typ domu? Podívejte se na jiné kategorie domů.


Vybrané články z našeho blogu