Prodej rodinného domu, Vidice, 300 m2 (ID: 4200614)

Vidice, Karlov t. Doubrava

3 990 000 Kč /za nemovitost HYPOTÉKA od 17 833 Kč /za měsíc
Prémioví partneři v Vidicích

Informace k domu

Pozastaveno do jara

Pokud hledáte klid, možnost chovu drobného zvířectva a také spousty nadměrných věcí, zahajujeme prodej právě takového domu se zahradou určenou k další možné výstavbě, pár minut jízdy od Kolína, v obci Karlov T.Doubrava.

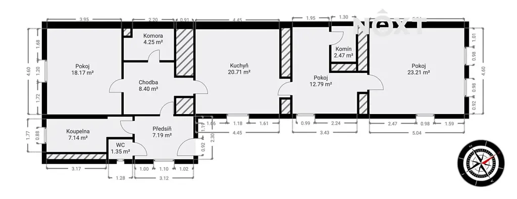
Orientační dispozice obytné části dle fotoprezentace + velmi rozměrná, takřka téměř vyklizená, kamenná stodola se dvěma podlažími.

IS: elektřina 230/400, kanalizace a voda připojitelné bez problému. Vytápění zajišťují z majoritní části krbová kamna.

Zastavěná plocha a nádvoří 888 m2 (reálně zastavěno 275 m2), zahrada 600 m2

Nemovitost je bez jakéhokoliv omezení či zástavního práva.

Karlov je součástí obce Vidice, v ní se nachází škola, školka, Veškerá občanská vybavenost ideálně Kolín či Kutná Hora cca 15min jízdy od domu.

Zdarma Vám zajistíme nejlevnější hypoteční úvěr na trhu.

Doporučuji si zajistit prohlídku. Pro komunikaci uvádějte evidenční číslo zakázky N116657.

Parametry domu

Cena
3 990 000 Kč /za nemovitost Spočítat hypotéku
Aktualizováno
8. 3. 2026
Adresa
Vidice, Karlov t. Doubrava
ID
N116657
Stavba
Cihlová
Stav objektu
Dobrý
Vybaveno
Ne
Druh objektu
Samostatný
Lokalita objektu
Okraj obce
Užitná plocha
300 m2
Zastavěná plocha
275 m2
Plocha pozemku
1488 m2
Třída energetické náročnosti
G - Mimořádně nehospodárná
Elektřina
230V, 400V
Odpad
Veřejná kanalizace, Septik
Komunikace
Asfaltová
Doprava
Silnice, Autobus
Voda
Vodovod
Topné těleso
Krbová kamna
Bezbarierový přístup

Kontaktovat makléře

Máte zájem o tento dům?

Tímto, v souladu s nařízením Evropského parlamentu a Rady (EU) 2016/679, v platném znění, prohlašuji, že mi je alespoň 16 let a uděluji tak svůj souhlas se zpracováním zadaných údajů (jméno, telefon, e-mail, ip adresa) společnosti B3 Technology, s.r.o., IČ: 07330600, se sídlem Novostavby 126/23, 435 11 Lom (správce dat), za účelem předání dotazu z tohoto formuláře Vámi vybranému inzerentovi a zpětného kontaktování mé osoby. Osobní údaje bude správce zpracovávat manuálně i automaticky přímo prostřednictvím svých zaměstnanců. Informace předané tímto formulářem budou uloženy v databázi správce maximálně po dobu 10 let. Odvolání souhlasu s uložením a zpracováním poskytnutých dat lze e-mailem na info@videobydleni.cz. V případě podezření na neoprávněné použití Vámi poskytnutých údajů máte právo předat podnět k šetření Úřadu pro ochranu osobních údajů. Více informací
Chystáte se prodat nemovitost?
Pomůžeme Vám!

Inzerát si prohlédlo 0 lidí

Prodejce

Ladislav Sýkora

Ladislav Sýkora

Hlídací pes

Chcete dostávat emailem podobné nabídky prodeje rodinných domů v Vidicích (okr. Kutná Hora)?

Top nabídky

Podobné nemovitosti


Nevyhovuje Vám typ domu? Podívejte se na jiné kategorie domů.


Vybrané články z našeho blogu