Soccer reality

Prodej bytu 2+kk, Praha - Vysočany, Pod Harfou, 43 m2 (ID: 4200771)

Pod Harfou, Praha, Vysočany

9 410 000 Kč /za nemovitost HYPOTÉKA od 42 057 Kč /za měsíc
Prémioví partneři v Praze 9

Stěhovací služby

Výkup a prodej starého nábytku

Informace k bytu

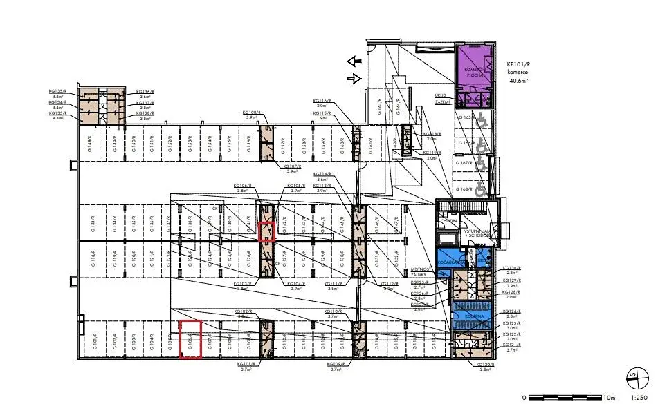
Nabízíme postoupení smlouvy na budoucí byt 2+kk o ploše 43 m v přízemí zděné novostavby s fasádním zateplovacím systémem, která se nachází v oblíbené části Prahy 9 Vysočany. K bytu náleží terasa/zahrádka (28,6 m). Projekt je aktuálně ve výstavbě, plánovaná kolaudace je na konec roku 2026 až začátek roku 2027. Dům má 7 nadzemních a 2 podzemní podlaží a je vybaven moderním lanovým výtahem.

V tuto chvíli se hradí pouze odstupné, doplatek kupní ceny je splácen postupně během výstavby přímo developerovi dle splátkového kalendáře.
K bytu je přiřazeno garážové stání (12,5 m) v podzemních garážích a sklep (3,8 m), které nejsou zahrnuty v ceně bytu. Jejich koupě je podmínkou prodeje a činí 700 000 Kč.

Dispozice: vstupní chodba (5,9 m), obývací pokoj s přípravou na kuchyň (19,6 m), ložnice (12,5 m), koupelna s vanou a WC (5 m). Byt je orientován na východ do klidného vnitrobloku. Celková plocha včetně konstrukcí činí 44,8 m.

Standard zahrnuje např. plastová vícekomorová okna s přípravou na venkovní rolety, bezpečnostní vstupní dveře, keramické obklady a dlažbu RAKO, přípravu na pračku i datové rozvody. Vytápění je ústřední s radiátory a termohlavicemi.

Terasa/předzahrádka je oplocená a kombinuje mrazuvzdornou dlažbu s vegetační vrstvou určenou pro extenzivní zeleň (bez možnosti výsadby stromů či vzrostlých keřů, únosnost 200 kg/m). Sklepní kóje jsou zděné, bez omítek, oddělené kovovými příčkami.

Lokalita nabízí kompletní občanskou vybavenost i výborné spojení MHD tramvajová zastávka Kabešova s návazností na metro B (Palmovka, Českomoravská). V pěší vzdálenosti je Galerie Harfa, O2 arena či park Podvinní.

Energetická náročnost budovy: třída B (odhad).

Vhodné jak pro vlastní bydlení, tak jako investice.

Parametry bytu

Cena
9 410 000 Kč /za nemovitost Spočítat hypotéku
Aktualizováno
1. 5. 2026
Adresa
Pod Harfou, Praha, Vysočany
ID
1111-34813
Stavba
Smíšená
Stav objektu
Novostavba
Patro
1. z 7
Vybaveno
Ne
Vlastnictví
Osobní
Užitná plocha
43 m2
Podlahová plocha
44 m2
Třída energetické náročnosti
B - Velmi úsporná
Topení
Ústřední elektrické
Komunikace
Asfaltová
Doprava
Vlak, MHD
Voda
Vodovod
Topné těleso
Radiátory
Garáž
Sklep
Terasa
Výtah
Bezbarierový přístup

Kontaktovat makléře

Máte zájem o tento byt?

Tímto, v souladu s nařízením Evropského parlamentu a Rady (EU) 2016/679, v platném znění, prohlašuji, že mi je alespoň 16 let a uděluji tak svůj souhlas se zpracováním zadaných údajů (jméno, telefon, e-mail, ip adresa) společnosti B3 Technology, s.r.o., IČ: 07330600, se sídlem Novostavby 126/23, 435 11 Lom (správce dat), za účelem předání dotazu z tohoto formuláře Vámi vybranému inzerentovi a zpětného kontaktování mé osoby. Osobní údaje bude správce zpracovávat manuálně i automaticky přímo prostřednictvím svých zaměstnanců. Informace předané tímto formulářem budou uloženy v databázi správce maximálně po dobu 10 let. Odvolání souhlasu s uložením a zpracováním poskytnutých dat lze e-mailem na info@videobydleni.cz. V případě podezření na neoprávněné použití Vámi poskytnutých údajů máte právo předat podnět k šetření Úřadu pro ochranu osobních údajů. Více informací
Chystáte se prodat nemovitost?
Pomůžeme Vám!

Inzerát si prohlédlo 27 lidí

Prodejce

Oleksandra Šarnova

Oleksandra Šarnova

Hlídací pes

Chcete dostávat emailem podobné nabídky prodeje bytů 2+kk v Praze 9?

Podobné nemovitosti


Nevyhovuje Vám typ bytu? Podívejte se na jiné kategorie bytů.


Vybrané články z našeho blogu