Prodej bytu 3+kk, Tachov, Palackého, 69 m2

Palackého, Tachov

3 950 000 Kč /za nemovitost HYPOTÉKA od 17 654 Kč /za měsíc
Prémioví partneři v Tachově

Stěhovací služby

Informace k bytu

Hledáte moderní bydlení v klidné lokalitě s důrazem na komfort, úsporný provoz a kvalitu provedení? Nabízíme Vám jedinečnou příležitost koupit si nový byt 3+kk s balkonem v exkluzivním developerském projektu v oblíbené rezidenční části města Tachova, ulice Palackého. Jedná se o výjimečný projekt moderního nízkoenergetického bydlení, který vzniká v nově budované klidné lokalitě na okraji města. Bydlení je ideální pro rodinu, páry i jako zajímavá investiční příležitost do kvalitní novostavby.
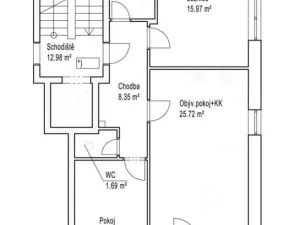
Bytová jednotka o dispozici 3+kk a podlahové ploše 69,03 m2 je situována ve 2. nadzemním podlaží bytového domu s výtahem. Velkou výhodou je balkon o velikosti 5,59 m2, který nabízí příjemné místo pro relaxaci. Součástí bytu je také sklepní kóje.
Interiér je navržen s důrazem na praktické a moderní řešení. Dispozice zahrnuje vstupní chodbu, vzdušný obývací pokoj s kuchyňským koutem, ložnici, samostatný pokoj, koupelnu s vanou a přípravou pro pračku a oddělené WC s umývátkem. Standardem je kvalitní vinylová podlaha a komfortní teplovodní podlahové vytápění. Výhodou je možnost ovlivnit finální podobu bytu, zvolit si vlastní obklady, dlažby či podlahové krytiny.
Rezidenční dům je vybaven pro moderní a pohodlné bydlení. Obyvatelům bude k dispozici osobní výtah, kočárkárna či kolárna, sušárna, technická místnost a praktické sklepní prostory. V areálu jsou plánována garážová stání a dvojgaráže.
Energetickou úspornost objektu zajišťuje kvalitní zateplení a instalace fotovoltaických panelů, které budou využívány jako předohřev teplé vody. Vytápění je řešeno centrální plynovou kotelnou s rozvodem teplé i studené vody.
Podrobnější informace o standardech provedení, plánovaném termínu dokončení, lokalitě či technických parametrech projektu Vám rádi poskytneme při osobní prohlídce s realitní makléřkou. S financováním koupě bytu prostřednictvím hypotečního úvěru Vám také rádi pomůžeme.

Parametry bytu

Cena
3 950 000 Kč /za nemovitost Spočítat hypotéku
Aktualizováno
9. 3. 2026
Adresa
Palackého, Tachov
ID
JR0526_1
Stavba
Cihlová
Stav objektu
Novostavba
Patro
2. z 5
Typ objektu
Patrový
Vlastnictví
Osobní
Užitná plocha
69 m2
Podlahová plocha
74 m2
Třída energetické náročnosti
B - Velmi úsporná
Topení
Ústřední plynové
Balkon
Sklep
Bezbarierový přístup

Kontaktovat makléře

Máte zájem o tento byt?

Tímto, v souladu s nařízením Evropského parlamentu a Rady (EU) 2016/679, v platném znění, prohlašuji, že mi je alespoň 16 let a uděluji tak svůj souhlas se zpracováním zadaných údajů (jméno, telefon, e-mail, ip adresa) společnosti B3 Technology, s.r.o., IČ: 07330600, se sídlem Novostavby 126/23, 435 11 Lom (správce dat), za účelem předání dotazu z tohoto formuláře Vámi vybranému inzerentovi a zpětného kontaktování mé osoby. Osobní údaje bude správce zpracovávat manuálně i automaticky přímo prostřednictvím svých zaměstnanců. Informace předané tímto formulářem budou uloženy v databázi správce maximálně po dobu 10 let. Odvolání souhlasu s uložením a zpracováním poskytnutých dat lze e-mailem na info@videobydleni.cz. V případě podezření na neoprávněné použití Vámi poskytnutých údajů máte právo předat podnět k šetření Úřadu pro ochranu osobních údajů. Více informací
Chystáte se prodat nemovitost?
Pomůžeme Vám!

Inzerát si prohlédlo 11 lidí

Prodejce

Jitka Rejtharová

Jitka Rejtharová

Hlídací pes

Chcete dostávat emailem podobné nabídky prodeje bytů 3+kk v Tachově?

Podobné nemovitosti


Nevyhovuje Vám typ bytu? Podívejte se na jiné kategorie bytů.


Vybrané články z našeho blogu