Prodej vícegeneračního domu, Vitice, 135 m2 (ID: 4201940)

Vitice, Dobré Pole

4 450 000 Kč /za nemovitost HYPOTÉKA od 19 889 Kč /za měsíc
Prémioví partneři v Viticích

Informace k domu

Představujeme Vám ke koupi rodinný dům situovaný v idylické lokalitě Dobré Pole 9, 28163 Vitice, obklopený krásnou přírodou a rozlehlými zelenými plochami. Tato nemovitost je postavena na pozemku o výměře 1935 m², z čehož 934 m² tvoří uzavřenou zahradu, která nabízí dostatek prostoru pro oddech a relaxaci, ale i pěstování plodin.
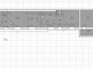
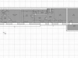
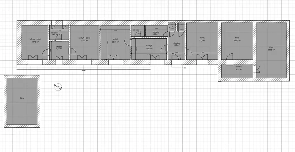
Dům s užitnou plochou 154 m² nabízí bydlení pro celou rodinu. S celkovou zastavěnou plochou cca 248 m², (včetně garáže o velikosti 36 m²), dům poskytuje dostatek prostoru také pro vaše vozidla a další potřeby. Obytná část domu, o rozloze cca 135 m², zahrnuje pět pokojů a dvě koupelny, což umožňuje pohodlné bydlení pro větší rodinu, popř. spolubydlení s rodiči.
Dům je postaven ze smíšených materiálů. Nemovitost je připravena k celkové rekonstrukci. Rozpočet máme k dispozici a rádi se zájemcem projdeme.
Dům se nachází v klidné části obce Dobré Pole, což je typická vesnická lokalita s přátelskými sousedy a všemi potřebnými službami v dosahu. Dopravní dostupnost do okolních měst a obcí je velmi dobrá díky blízkosti hlavních silnic a dopravní infrastruktury, což ocení každý, kdo pendluje za prací či vzděláním.
Celková cena nemovitosti za celek činí 4 890 000 CZK, což je vzhledem k nabízené lokalitě, velikosti a kvalitě nemovitosti velmi příznivé. Dům je možné financovat prostřednictvím hypotéky, což novým majitelům usnadní nákup.
Tato nemovitost je ideálním řešením pro každého, kdo hledá prostorné bydlení v klidné a přírodně bohaté lokalitě. V případě zájmu neváhejte kontaktovat makléře, který vám poskytne veškeré další informace a uspořádá prohlídku této nemovitosti i o víkendu.

Parametry domu

Cena
4 450 000 Kč /za nemovitost Spočítat hypotéku
Aktualizováno
10. 3. 2026
Adresa
Vitice, Dobré Pole
ID
953291
Stavba
Smíšená
Stav objektu
Dobrý
Druh objektu
Samostatný
Užitná plocha
135 m2
Zastavěná plocha
248 m2
Podlahová plocha
154 m2
Plocha pozemku
1935 m2
Plocha zahrady
934 m2
Třída energetické náročnosti
G - Mimořádně nehospodárná
Elektřina
230V
Odpad
Jímka
Telekomunikace
Telefon, Internet
Doprava
Silnice, Autobus
Voda
Vodovod
Topné těleso
Kotel na tuhá paliva
Zdroj topení
Kotel na tuhá paliva
Garáž
Bezbarierový přístup
Parkování

Kontaktovat makléře

Realitní kancelář

Futurum Reality

Na Pankráci 332/14, Praha, Nusle

Chystáte se prodat nemovitost?
Pomůžeme Vám!

Máte zájem o tento dům?

Tímto, v souladu s nařízením Evropského parlamentu a Rady (EU) 2016/679, v platném znění, prohlašuji, že mi je alespoň 16 let a uděluji tak svůj souhlas se zpracováním zadaných údajů (jméno, telefon, e-mail, ip adresa) společnosti B3 Technology, s.r.o., IČ: 07330600, se sídlem Novostavby 126/23, 435 11 Lom (správce dat), za účelem předání dotazu z tohoto formuláře Vámi vybranému inzerentovi a zpětného kontaktování mé osoby. Osobní údaje bude správce zpracovávat manuálně i automaticky přímo prostřednictvím svých zaměstnanců. Informace předané tímto formulářem budou uloženy v databázi správce maximálně po dobu 10 let. Odvolání souhlasu s uložením a zpracováním poskytnutých dat lze e-mailem na info@videobydleni.cz. V případě podezření na neoprávněné použití Vámi poskytnutých údajů máte právo předat podnět k šetření Úřadu pro ochranu osobních údajů. Více informací
Chystáte se prodat nemovitost?
Pomůžeme Vám!

Inzerát si prohlédlo 1 lidí

Prodejce

Josef Holub

Josef Holub

Hlídací pes

Chcete dostávat emailem podobné nabídky prodeje vícegeneračních domů v Viticích?

Top nabídky

Podobné nemovitosti


Nevyhovuje Vám typ domu? Podívejte se na jiné kategorie domů.


Vybrané články z našeho blogu