Prodej bytu 2+kk, Praha - Malešice, Prorektorská, 50 m2

Prorektorská, Praha 10 - Malešice

9 695 000 Kč HYPOTÉKA od 43 331 Kč /za měsíc

(včetně provize RK)

Prémioví partneři v Praze 10

Stěhovací služby

Výkup a prodej starého nábytku

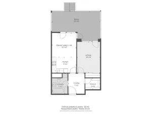
Informace k bytu

ZELENÝ VRCH, byt 2+KK 50m² s vlastní zahrádkou a terasou (78m²), garážovým stáním a sklepem

Slunce každý den v oknech Vašeho bytu? Slunná terasa i zahrada součástí Vašeho bydlení v Praze? Nebo snad chcete mít na zahradě i bazén? V okolí samá zeleň, parky a místa pro relaxaci? Skvělá dostupnost služeb? V této nabídce naleznete všechno v jednom a spoustu dalšího navíc.

K prodeji nabízíme byt:
✅účelná dispozice bytu 2+KK o výměře 50m² (obývací pokoj s KK 20m², ložnice 16m², koupelna s vanou a WC 5m², komora 3m², chodba s předsíní 6m²)
✅slunná terasa 23m² s částečným zastřešením
✅vlastní zahrádka 55m² o ideálním čtvercovém tvaru (vlastní LV - žádné spolupodíly. )
✅garážové stání v suterénu domu (brána na DO)
✅sklep v suterénu domu (bezpečnostní dveře)
✅vybaveno kuchyňskou linkou vč. spotřebičů a vestavěnými skříněmi
✅klimatizace v obývacím pokoji
✅napojeno na internet - optický kabel
✅nízké náklady, PNEB "B"

Stačí si tedy doladit vybavení a vysněné bydlení s vlastním kouskem zeleně může být Vaše.

Skvělá cena, navíc možná sleva při rychlém jednání. Na prodej spěcháme. Byt s vlastní zahrádkou je v dnešní době velmi žádaná alternativa městského bydlení, avšak nabídka takových nemovitostí je velmi omezená a ojedinělá. Z jedné strany budete sousedit s krásným parkem, ze strany druhé pak budete mít Malešický les a v okolí spoustu relaxace, sportovních aktivit a klidu.

To vše v úspěšném developerském projektu Zelený Vrch Malešice z roku 2008. Skvělá kombinace jako startovací bydlení nebo investice.

V bezprostřední blízkosti domu naleznete sportoviště, Malešický park, Malešický les, polikliniku, lékárnu, obchody, školy, školky, MHD – prostě vše, co k životu každý potřebuje.

Doporučuji osobní prohlídku.

Parametry bytu

Cena
9 695 000 Kč Spočítat hypotéku
Poznámka k ceně
včetně provize RK
Aktualizováno
12. 3. 2026
Adresa
Prorektorská, Praha 10 - Malešice
ID
0314
Stavba
Cihlová
Vybaveno
Částečně
Lokalita objektu
Klidná část obce
Vlastnictví
Osobní
Užitná plocha
50 m2
Třída energetické náročnosti
B - Velmi úsporná

Kontaktovat makléře

Máte zájem o tento byt?

Tímto, v souladu s nařízením Evropského parlamentu a Rady (EU) 2016/679, v platném znění, prohlašuji, že mi je alespoň 16 let a uděluji tak svůj souhlas se zpracováním zadaných údajů (jméno, telefon, e-mail, ip adresa) společnosti B3 Technology, s.r.o., IČ: 07330600, se sídlem Novostavby 126/23, 435 11 Lom (správce dat), za účelem předání dotazu z tohoto formuláře Vámi vybranému inzerentovi a zpětného kontaktování mé osoby. Osobní údaje bude správce zpracovávat manuálně i automaticky přímo prostřednictvím svých zaměstnanců. Informace předané tímto formulářem budou uloženy v databázi správce maximálně po dobu 10 let. Odvolání souhlasu s uložením a zpracováním poskytnutých dat lze e-mailem na info@videobydleni.cz. V případě podezření na neoprávněné použití Vámi poskytnutých údajů máte právo předat podnět k šetření Úřadu pro ochranu osobních údajů. Více informací
Chystáte se prodat nemovitost?
Pomůžeme Vám!

Inzerát si prohlédlo 1 lidí

Prodejce

Michal Kopejtko

Michal Kopejtko

Hlídací pes

Chcete dostávat emailem podobné nabídky prodeje bytů 2+kk v Praze 10?

Podobné nemovitosti


Nevyhovuje Vám typ bytu? Podívejte se na jiné kategorie bytů.


Vybrané články z našeho blogu