Pronájem bytu 3+kk, Benešov, Suchánkova, 73 m2 (ID: 4204319)

Suchánkova, Benešov

25 000 Kč /za měsíc Získejte výhodnou HYPOTÉKU

(+ poplatky a odměna pro RK)

Prémioví partneři v Benešově

Informace k bytu

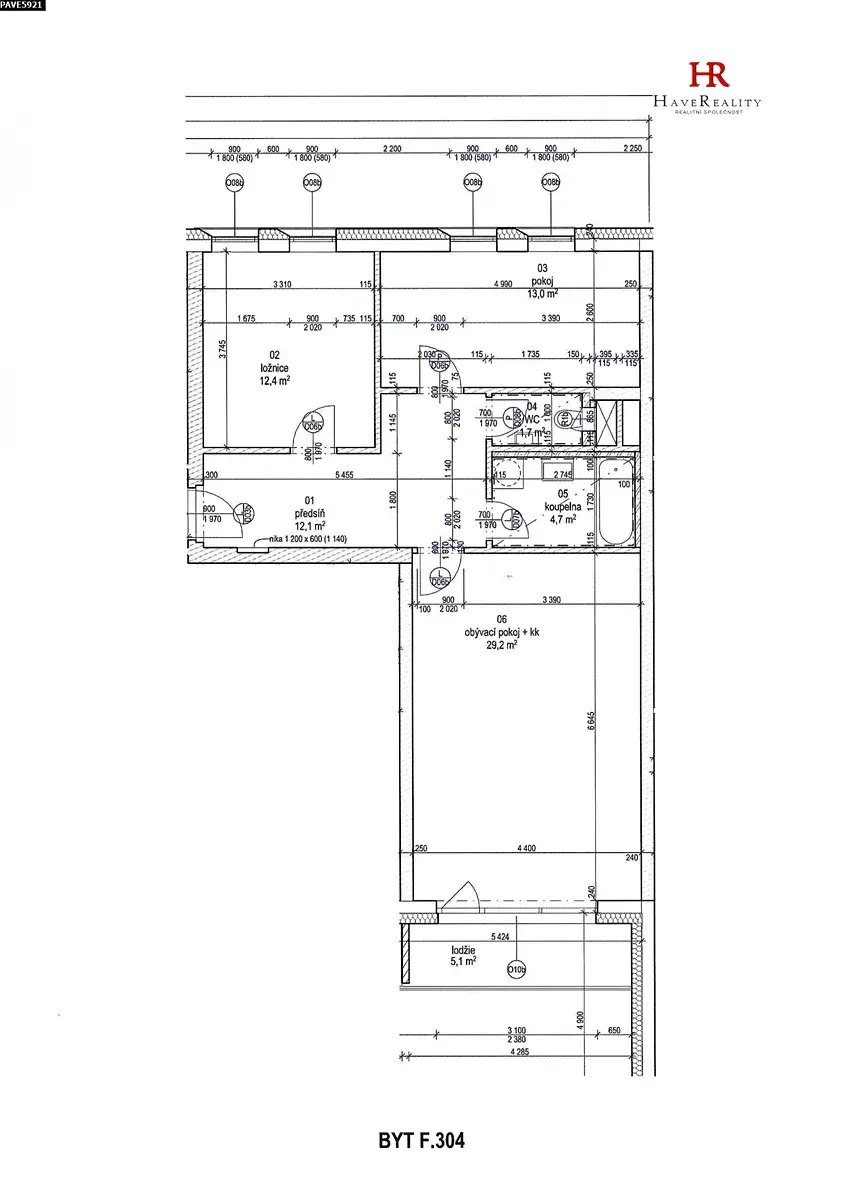
Dovolujeme si Vám nabídnout do pronájmu s platností od 03/2026 krásný byt 3+kk, o velikosti 73,1m2 + lodžie 5,1 m2 v novostavbě dokončovaného bytového komplexu v Benešově. Výstavba nového bytového domu probíhala v letech 2025-2026 a splňuje nejvyšší nároky a standardy bydlení. Byt je dispozičně členěn na: vstupní předsíň 12,1m2, ložnici 12,4m2, pokoj 13 m2, samostatné WC 1,7m2, koupelnu s vanou 4,7 m2 a obývací pokoj s kuchyňským koutem 29,2 m2 se vstupem na lodžii 5,1 m2. Dům je zateplený, nízkonákladový, splňuje PENB třídy „B“ a má výtah. V bytě je naistalována nová kuchyňská linka zn. SYKORA se spotřebiči (pečící trouba, varná sklokeramická deska, lednice s mrazákem a digestoř s odtahem) + příprava na myčku nádobí. Vytápění v domě a ohřev teplé vody zajistí centrální plynový kotel. V bytě jsou rozmístěny radiátory a v koupelně topný žebřík. Každá jednotka má svůj vlastní elektroměr, měřiče spotřeby studené i teplé vody a spotřeby tepla. Na podlaze je dřevěná podlaha a v koupelně a na WC keramická dlažba. Okna jsou plastová, zvenčí šedá, uvnitř bílá, s izolačními 3skly. Vstupní dveře do bytu jsou protipožární, k dispozici je domácí telefon s vnější kamerou, mikrofonem a reproduktorem. V suterénu domu se nachází parkovací stání pro vůz (za poplatek 1.500,- Kč), sklepní kóje a společné prostory v domě. Požadované měsíční nájemné za byt činí 25.000,- Kč + záloha na spotřebu médií cca 4.000,- Kč včetně spotřeby el. energie. Parkování v suterénu domu za poplatek 1.500,- Kč měsíčně za 1 parkovací místo. Jistota (dříve kauce) činí 45.000,- Kč a je vratná po řádném ukončení nájemního vztahu. Provize pro RK činí 1měsíční nájemné. Nabídka je určena pro zájemce bez domácích mazlíčků. Upřednostňujeme dlouhodobý pronájem. V Benešově je veškerá občanská vybavenost v místě a dobré dopravní spojení do Prahy a Českých Budějovic. Prohlídky objektu jsou možné po dohodě. V případě Vašich dotazů nás neváhejte kontaktovat na uvedeném telefonním čísle.

Parametry bytu

Cena
25 000 Kč /za měsíc
Poznámka k ceně
+ poplatky a odměna pro RK
Aktualizováno
12. 3. 2026
Adresa
Suchánkova, Benešov
ID
PAVE5921
Stavba
Smíšená
Stav objektu
Novostavba
Patro
4. z 5
Lokalita objektu
Centrum obce
Vlastnictví
Osobní
Užitná plocha
73 m2
Podlahová plocha
73 m2
Třída energetické náročnosti
B - Velmi úsporná
Balkon
Lodžie
Bezbarierový přístup
Převod do OV
Parkování

Kontaktovat makléře

Máte zájem o tento byt?

Tímto, v souladu s nařízením Evropského parlamentu a Rady (EU) 2016/679, v platném znění, prohlašuji, že mi je alespoň 16 let a uděluji tak svůj souhlas se zpracováním zadaných údajů (jméno, telefon, e-mail, ip adresa) společnosti B3 Technology, s.r.o., IČ: 07330600, se sídlem Novostavby 126/23, 435 11 Lom (správce dat), za účelem předání dotazu z tohoto formuláře Vámi vybranému inzerentovi a zpětného kontaktování mé osoby. Osobní údaje bude správce zpracovávat manuálně i automaticky přímo prostřednictvím svých zaměstnanců. Informace předané tímto formulářem budou uloženy v databázi správce maximálně po dobu 10 let. Odvolání souhlasu s uložením a zpracováním poskytnutých dat lze e-mailem na info@videobydleni.cz. V případě podezření na neoprávněné použití Vámi poskytnutých údajů máte právo předat podnět k šetření Úřadu pro ochranu osobních údajů. Více informací
Chystáte se prodat nemovitost?
Pomůžeme Vám!

Inzerát si prohlédlo 1 lidí

Prodejce

Andrea Venerová

Andrea Venerová

Hlídací pes

Chcete dostávat emailem podobné nabídky pronájmu bytů 3+kk v Benešově?

Podobné nemovitosti


Nevyhovuje Vám typ bytu? Podívejte se na jiné kategorie bytů.


Vybrané články z našeho blogu