Soccer reality

Pronájem rodinného domu, Popovičky, Na Skalce, 242 m2 (ID: 4204724)

Na Skalce, Popovičky

55 000 Kč /za měsíc Získejte výhodnou HYPOTÉKU

(+ 11.000,- Kč zálohové poplatky včetně internetu, topení, vody, elektřiny, údrža zahrady cca 20.000,-CZK / rok)

Prémioví partneři v Popovičkách

Informace k domu

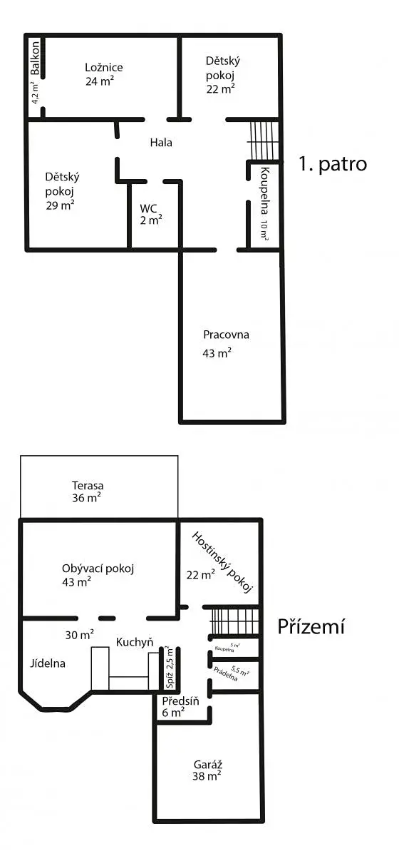
Klidné a pohodové rodinné bydlení i práce z domova, praktický, světlý, prostorný, samostatně stojící dům 277 m2, 6+kk s velkou terasou, obklopený kouzelnou zahradou 1182 m2. Situovaný v naprostém soukromí s výhledem do zeleně. S dvougaráží a dalším stáním pro čtyři auta na pozemku u vjezdu. Ideální i pro pár na homeoffice. Ulice Na Skalce, Praha - východ, obec Popovičky - 12 min autem na Opatov.

V přízemí domu velkorysý obývací pokoj (43m2) s krbem a přímým vstupem přes terasu do nádherné vzrostlé zahrady. Plně zařízená kuchyň moderními spotřebiči a přilehlou komorou, navazující prosvětlená jídelna. Pokoj pro hosty (21m2) s vestavěnými skříněmi, koupelna se sprchovým koutem a toaletou, prostorná technická místnost s oknem.

V patře domu tři ložnice: 2 dětské pokoje /pracovny (22, 30 m2) a ložnice rodičů (27m2) s balkonem a vestavěnými skříněmi. Dále prostorná (43m2) podkrovní místnost, vhodná jako domácí kancelář, dětská herna, další ložnice atp. Prosvětlená hlavní koupelna s vanou i sprchovými koutem. Toaleta je umístěna zvlášť.

Podkroví domu (38m2)je možno využít jako velký praktický úložný prostor.
Dvougaráž (37,5 m2) v přízemí domu je, stejně jako vjezd na pozemek, na dálkové ovládání. Garáž částečně vybavena jako dílna.

Dům je ve výborném a čistém stavu, revize všech zařízení, plastová okna s elektronicky ovládanými roletami a moskytiérami ve většině oken. Dubové parkety, zaizolovaná střecha, alarm, plynový kotel v domě na ohřev vody a vytápění domu. Na zahradě vybudovaná studna.

Oblíbený Parkhotel Popovičky s vyhlášenou pekárnou, skvělou restaurací, tenisovými kurty a wellness je 3 min pěšky od domu. Velké dětské hřiště po všechny věkové kategorie 4 min pěšky. Park s rybníkem 2 minuty od domu, v okolí mnoho procházkových i cyklo tras. Autobus na Opatov 35 minut, autem do OC Chodov 15 min, obchodní zóna Čestlice 5 min, do Říčan 8 min, do Průhonického parku 5 min, Sunny Canadian International School 7 min, Prague British International School 18 min.

Nájem 55.000,-CZK / měsíc + záloha na elektřinu, plyn, vodu, odpadky + internet 11.000,-CZK / měsíc. Základní příspěvek na údržbu zahrady cca 20.000,-CZK /rok.
Kauce dva měsíční nájmy se službami.

K dispozici od 1.6.2026, pouze k dlouhodobému pronájmu.





Parametry domu

Cena
55 000 Kč /za měsíc
Poznámka k ceně
+ 11.000,- Kč zálohové poplatky včetně internetu, topení, vody, elektřiny, údrža zahrady cca 20.000,-CZK / rok
Aktualizováno
12. 3. 2026
Adresa
Na Skalce, Popovičky
ID
NaSkalce
Stavba
Cihlová
Stav objektu
Velmi dobrý
Vybaveno
Ne
Druh objektu
Samostatný
Užitná plocha
242 m2
Zastavěná plocha
200 m2
Podlahová plocha
242 m2
Plocha pozemku
1182 m2
Plocha zahrady
1182 m2
Plyn
Plynovod
Odpad
Veřejná kanalizace
Topení
Lokální plynové
Telekomunikace
Internet, Ostatní
Doprava
Autobus
Voda
Vodovod, Studna
Garáž
Bezbarierový přístup
Parkování

Kontaktovat makléře

Realitní kancelář

ByYoung.cz

Kubelíkova 1247/40, Praha

Chystáte se prodat nemovitost?
Pomůžeme Vám!

Máte zájem o tento dům?

Tímto, v souladu s nařízením Evropského parlamentu a Rady (EU) 2016/679, v platném znění, prohlašuji, že mi je alespoň 16 let a uděluji tak svůj souhlas se zpracováním zadaných údajů (jméno, telefon, e-mail, ip adresa) společnosti B3 Technology, s.r.o., IČ: 07330600, se sídlem Novostavby 126/23, 435 11 Lom (správce dat), za účelem předání dotazu z tohoto formuláře Vámi vybranému inzerentovi a zpětného kontaktování mé osoby. Osobní údaje bude správce zpracovávat manuálně i automaticky přímo prostřednictvím svých zaměstnanců. Informace předané tímto formulářem budou uloženy v databázi správce maximálně po dobu 10 let. Odvolání souhlasu s uložením a zpracováním poskytnutých dat lze e-mailem na info@videobydleni.cz. V případě podezření na neoprávněné použití Vámi poskytnutých údajů máte právo předat podnět k šetření Úřadu pro ochranu osobních údajů. Více informací
Chystáte se prodat nemovitost?
Pomůžeme Vám!

Inzerát si prohlédlo 1 lidí

Prodejce

Lucie Young

Lucie Young

Hlídací pes

Chcete dostávat emailem podobné nabídky pronájmu rodinných domů v Popovičkách?

Podobné nemovitosti


Nevyhovuje Vám typ domu? Podívejte se na jiné kategorie domů.


Vybrané články z našeho blogu