Pronájem kanceláře, Ostrava, Františky Stránecké, 118 m2

Františky Stránecké, Ostrava, Mariánské Hory

46 500 Kč /za měsíc Získejte výhodnou HYPOTÉKU

(uvedená cena nájmu bez energií a služeb ve výši 4000,-/měs., včetně DPH, bez poplatků, + provize RK, včetně právního servisu)

Prémioví partneři v Ostravě

Informace k nemovitosti

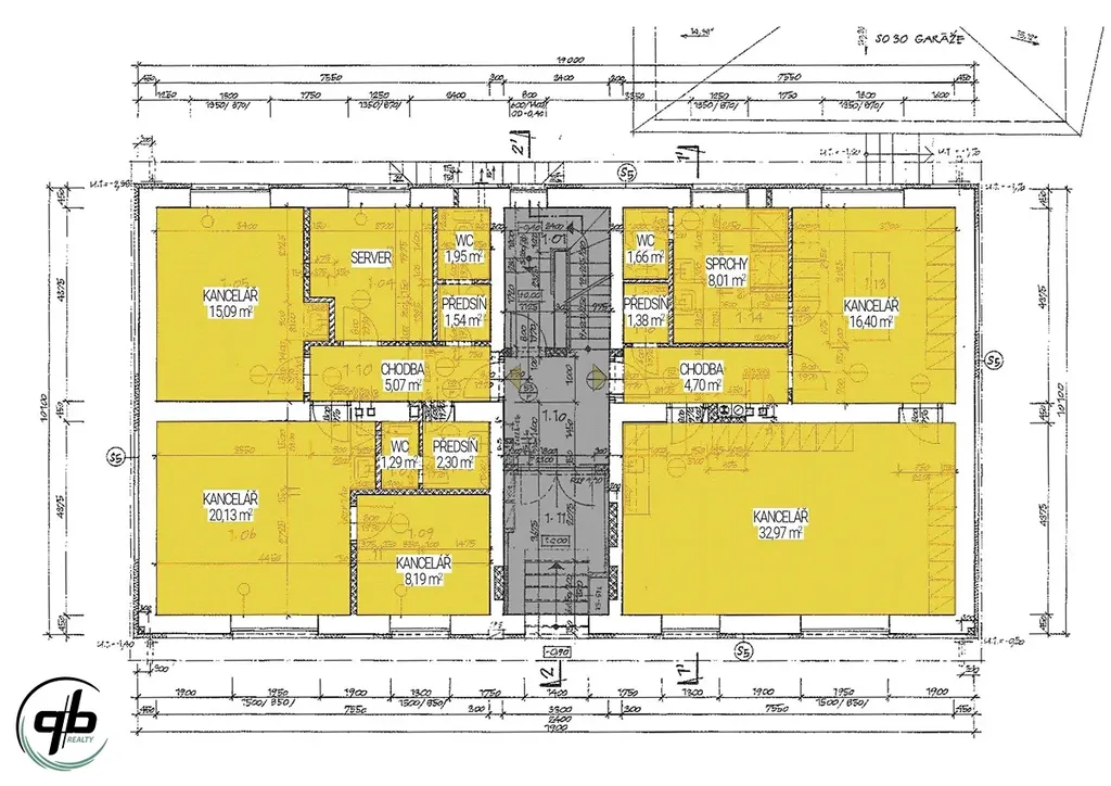
Nabízíme k pronájmu kancelářské prostory v Ostravě Mariánských Horách na ul. Františky Stránecké. Prostory se nachází v samostatném objektu, v rámci uzavřeného areálu s dobrým dojezdem automobily i hromadnou dopravou, nedaleko centra města. Celá budova je ve velmi dobrém stavu, po celkové rekonstrukci. Jedná se o celé první patro budovy, o celkové výměře 118 m2. Součástí kancelářských prostor je vlastní sociální zařízení se sprchami, všechny kanceláře Kláře jsou vybaveny klimatizací. Součástí pronájmu jsou čtyři parkovací stání, v rámci uzavřeného areálu..

Vybavení a výhody:

• uzavřený a střežený areál
• 4 parkovací místa v ceně (další parkování u Sconta a Kauflandu]
• ocelové bezpečnostní dveře
• klimatizace
• plynové vytápění
• sociální zázemí
• pravidelná údrzba areálu

Lokalita, která dává smysl:

• MHD: Strmá, Mariánskohorská
• v bezprostřední blízkosti: Kaufland, Sconto; dále Baumax, Futurum
• rychlá dostupnost do centra Ostravy

Parametry nemovitosti

Cena
46 500 Kč /za měsíc
Poznámka k ceně
uvedená cena nájmu bez energií a služeb ve výši 4000,-/měs., včetně DPH, bez poplatků, + provize RK, včetně právního servisu
Aktualizováno
12. 3. 2026
Adresa
Františky Stránecké, Ostrava, Mariánské Hory
ID
00103
Stavba
Cihlová
Stav objektu
Po rekonstrukci
Patro
1. z 2
Vybaveno
Částečně
Lokalita objektu
Centrum obce
Užitná plocha
118 m2
Podlahová plocha
118 m2
Třída energetické náročnosti
G - Mimořádně nehospodárná
Elektřina
230V
Plyn
Plynovod
Odpad
Veřejná kanalizace
Telekomunikace
Telefon, Internet
Doprava
Vlak, Dálnice, Silnice, MHD, Autobus
Voda
Vodovod
Topné těleso
Radiátory
Zdroj topení
Plynový kondenzační kotel
Zdroj teplé vody
Plynový kotel
Výtah
Parkování

Kontaktovat makléře

Realitní kancelář

QB realty s. r. o.

tř. T. G. Masaryka 1129, Frýdek-Místek

Chystáte se prodat nemovitost?
Pomůžeme Vám!

Máte zájem o tuto nemovistost?

Tímto, v souladu s nařízením Evropského parlamentu a Rady (EU) 2016/679, v platném znění, prohlašuji, že mi je alespoň 16 let a uděluji tak svůj souhlas se zpracováním zadaných údajů (jméno, telefon, e-mail, ip adresa) společnosti B3 Technology, s.r.o., IČ: 07330600, se sídlem Novostavby 126/23, 435 11 Lom (správce dat), za účelem předání dotazu z tohoto formuláře Vámi vybranému inzerentovi a zpětného kontaktování mé osoby. Osobní údaje bude správce zpracovávat manuálně i automaticky přímo prostřednictvím svých zaměstnanců. Informace předané tímto formulářem budou uloženy v databázi správce maximálně po dobu 10 let. Odvolání souhlasu s uložením a zpracováním poskytnutých dat lze e-mailem na info@videobydleni.cz. V případě podezření na neoprávněné použití Vámi poskytnutých údajů máte právo předat podnět k šetření Úřadu pro ochranu osobních údajů. Více informací
Chystáte se prodat nemovitost?
Pomůžeme Vám!

Inzerát si prohlédlo 0 lidí

Prodejce

Radek Sklář

Radek Sklář

Hlídací pes

Chcete dostávat emailem podobné nabídky pronájmu kanceláří v Ostravě?

Podobné nemovitosti


Nevyhovuje Vám typ nemovitosti? Podívejte se na jiné kategorie komerčních.


Vybrané články z našeho blogu