Prodej rodinného domu, Karolinka, 151 m2

Karolinka

2 200 000 Kč /za nemovitost HYPOTÉKA od 9 833 Kč /za měsíc

(za nemovitost)

Prémioví partneři v Karolince

Informace k domu

Ráda bych Vás provedla a představila Vám ke koupi rodinný dům v obci Karolinka – Stanovnice s číslem popisným, situovaný na pozemku o celkové výměře 1 942 m².

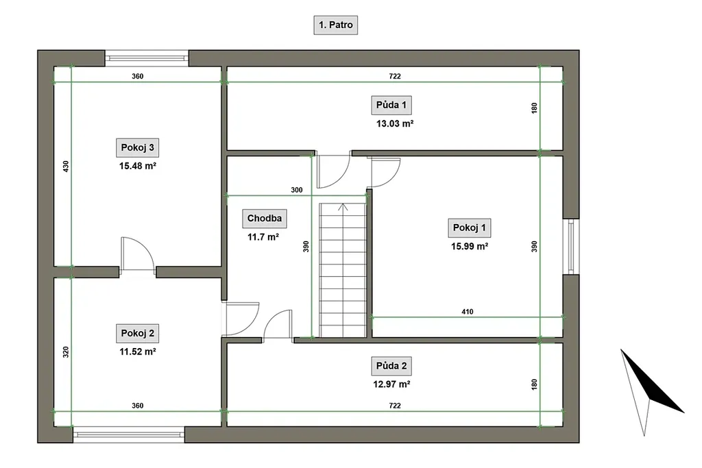
Jedná se o zděný rodinný dům s užitnou plochou přibližně 151 m² a navazující zahradou o výměře 1 564 m². Dům má dispozici 6+1 a zahrnuje kuchyni, koupelnu, samostatné WC a zádveří. V podkroví se nachází půdní prostor s možností rozšíření obytné plochy.

Nemovitost je v původním stavu a je určena k celkové rekonstrukci. Alternativně je možné objekt odstranit a na pozemku realizovat výstavbu nového domu dle vlastních představ.
Inženýrské sítě: elektřina, vlastní studna na pozemku, septik.

Příjezd k nemovitosti je zajištěn po asfaltové komunikaci.
Velkým bonusem je krásný, slunný pozemek. Část pozemku u domu je rovinatá a za domem se nachází zahrada ve svahu, která nabízí dostatek soukromí a příjemný výhled do okolní přírody Valašských vrchů. Lokalita je klidná a obklopená zelení, ideální jak pro trvalé bydlení, tak pro rekreaci.

Nemovitost představuje zajímavou příležitost pro ty, kteří hledají dům k rekonstrukci nebo místo pro výstavbu nového bydlení podle vlastních představ.

Domluvte si prohlídku a ráda Vás nemovitostí osobně provedu.
Těším se na setkání s Vámi Martina.

Parametry domu

Cena
2 200 000 Kč /za nemovitost Spočítat hypotéku
Poznámka k ceně
za nemovitost
Aktualizováno
16. 3. 2026
Adresa
Karolinka
Stavba
Cihlová
Stav objektu
Před rekonstrukcí
Druh objektu
Samostatný
Lokalita objektu
Klidná část obce
Užitná plocha
151 m2
Zastavěná plocha
378 m2
Plocha pozemku
1942 m2
Plocha zahrady
1564 m2
Třída energetické náročnosti
G - Mimořádně nehospodárná
Elektřina
120V
Odpad
Septik
Komunikace
Asfaltová
Doprava
Silnice, Autobus
Voda
Studna
Bezbarierový přístup

Kontaktovat makléře

Realitní kancelář

MS reality

třída Tomáše Bati 385, Zlín

Chystáte se prodat nemovitost?
Pomůžeme Vám!

Máte zájem o tento dům?

Tímto, v souladu s nařízením Evropského parlamentu a Rady (EU) 2016/679, v platném znění, prohlašuji, že mi je alespoň 16 let a uděluji tak svůj souhlas se zpracováním zadaných údajů (jméno, telefon, e-mail, ip adresa) společnosti B3 Technology, s.r.o., IČ: 07330600, se sídlem Novostavby 126/23, 435 11 Lom (správce dat), za účelem předání dotazu z tohoto formuláře Vámi vybranému inzerentovi a zpětného kontaktování mé osoby. Osobní údaje bude správce zpracovávat manuálně i automaticky přímo prostřednictvím svých zaměstnanců. Informace předané tímto formulářem budou uloženy v databázi správce maximálně po dobu 10 let. Odvolání souhlasu s uložením a zpracováním poskytnutých dat lze e-mailem na info@videobydleni.cz. V případě podezření na neoprávněné použití Vámi poskytnutých údajů máte právo předat podnět k šetření Úřadu pro ochranu osobních údajů. Více informací
Chystáte se prodat nemovitost?
Pomůžeme Vám!

Inzerát si prohlédlo 0 lidí

Prodejce

Martina Sušňová

Martina Sušňová

Hlídací pes

Chcete dostávat emailem podobné nabídky prodeje rodinných domů v Karolince?

Podobné nemovitosti


Nevyhovuje Vám typ domu? Podívejte se na jiné kategorie domů.


Vybrané články z našeho blogu