Pronájem bytu 2+kk, Dobřany, Dragounů, 60 m2 (ID: 4207851)

Dragounů, Dobřany

15 500 Kč /za měsíc Získejte výhodnou HYPOTÉKU

(vratná jistota Kč, náklady na bydlení 3.974,- Kč, poplatek za podnájem)

Prémioví partneři v Dobřanech

Stěhovací služby

Informace k bytu

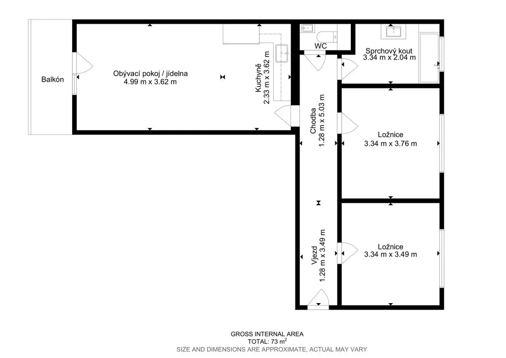
K dlouhodobému podnájmu nabízíme prostorný, útulný a teplý byt o dispozici 2+kk+šatna v novém bytovém domě (výstavba 2025) v klidné lokalitě města Dobřany. Byt o celkové výměře 60 m2 se nachází v 1. nadzemním podlaží této novostavby s výtahem. K bytu patří sklepní kóje, garážové stání přímo v domě a terasa.

Dům samotný je pasivní budova, a proto je velmi energeticky úsporný.
PENB kategorie A.

Byt se nabízí částečně vybavený.
Pro svůj komfort je vybavený rekuperační jednotkou a regulačním termostatem.
Kuchyňský kout disponuje indukční varnou deskou, elektrickou troubou, myčkou na nádobí a kombinovanou lednicí s mrazákem. Všechny spotřebiče jsou zcela nové a vestavěné.
Koupelna je vybavena vanou a umyvadlovou skříňkou s umyvadlem.
Toaleta je umístěna samostatně.
Ostatní vybavení není zařízeno a byt tak dává prostor k realizaci svému novému uživateli.

Nemovitost se nachází v městě Dobřany, které je velmi rychle rozvíjející se obcí s veškerým občanským vybavením. V obci nejdete mateřskou, základní i uměleckou školu, sportovní stadiony, lékárny nebo supermarkety.
Pracovní možnosti jsou zde taktéž velice dostupné například v průmyslové zóně.
Pohodlnou jízdou dálničním převaděčem se dostanete do Plzně za 11 minut. Ostatní dopravní spojení zajišťují vlaky nebo autobusová spojení.

Byt je volný k nastěhování od 15.1.2026

Byt pronajímá Ideální nájemce - služba, se kterou budete bydlet bezstarostně a za férových podmínek. Když se něco přihodí, k dispozici jsou správci, kteří s vámi vše vyřeší. Pomůžeme s veškerou administrativou, s nastavením plateb a zajistíme vám speciální pojištění. Pojďte bydlet s námi!

Parametry bytu

Cena
15 500 Kč /za měsíc
Poznámka k ceně
vratná jistota Kč, náklady na bydlení 3.974,- Kč, poplatek za podnájem
Aktualizováno
16. 3. 2026
Adresa
Dragounů, Dobřany
ID
N7445
Stavba
Cihlová
Stav objektu
Novostavba
Patro
1. z 3
Vybaveno
Částečně
Typ objektu
Patrový
Lokalita objektu
Klidná část obce
Vlastnictví
Osobní
Užitná plocha
60 m2
Podlahová plocha
60 m2
Třída energetické náročnosti
A - Mimořádně úsporná
Ukazatel energetické náročnosti
48 kWh/m2 za rok
Elektřina
230V
Topení
Jiné
Garáž
Sklep
Terasa
Výtah
Bezbarierový přístup

Kontaktovat makléře

Máte zájem o tento byt?

Tímto, v souladu s nařízením Evropského parlamentu a Rady (EU) 2016/679, v platném znění, prohlašuji, že mi je alespoň 16 let a uděluji tak svůj souhlas se zpracováním zadaných údajů (jméno, telefon, e-mail, ip adresa) společnosti B3 Technology, s.r.o., IČ: 07330600, se sídlem Novostavby 126/23, 435 11 Lom (správce dat), za účelem předání dotazu z tohoto formuláře Vámi vybranému inzerentovi a zpětného kontaktování mé osoby. Osobní údaje bude správce zpracovávat manuálně i automaticky přímo prostřednictvím svých zaměstnanců. Informace předané tímto formulářem budou uloženy v databázi správce maximálně po dobu 10 let. Odvolání souhlasu s uložením a zpracováním poskytnutých dat lze e-mailem na info@videobydleni.cz. V případě podezření na neoprávněné použití Vámi poskytnutých údajů máte právo předat podnět k šetření Úřadu pro ochranu osobních údajů. Více informací
Chystáte se prodat nemovitost?
Pomůžeme Vám!

Inzerát si prohlédlo 0 lidí

Prodejce

Miloslava Kačerová

Miloslava Kačerová

Hlídací pes

Chcete dostávat emailem podobné nabídky pronájmu bytů 2+kk v Dobřanech (okr. Plzeň-jih)?

Podobné nemovitosti


Nevyhovuje Vám typ bytu? Podívejte se na jiné kategorie bytů.


Vybrané články z našeho blogu