Molík reality

Prodej pozemku pro bydlení, Lom, Litvínovská, 1420 m2 (ID: 4211669)

Litvínovská, Lom

4 990 000 Kč /za nemovitost HYPOTÉKA od 22 302 Kč /za měsíc
Prémioví partneři v Lomu

Okna a dveře

Rekonstrukce

Informace k pozemku

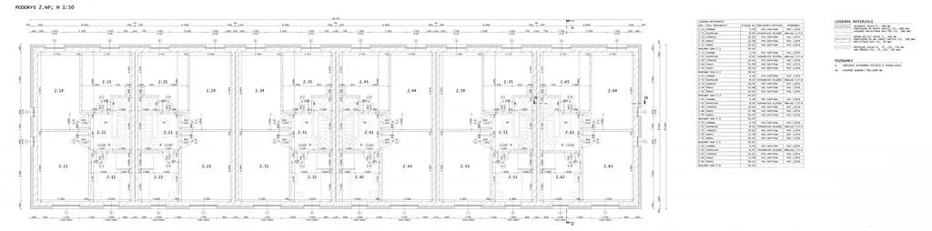
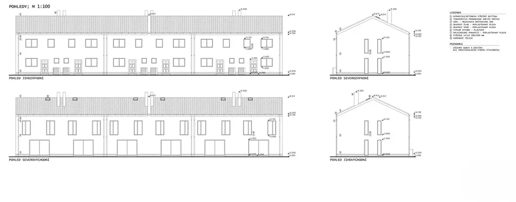
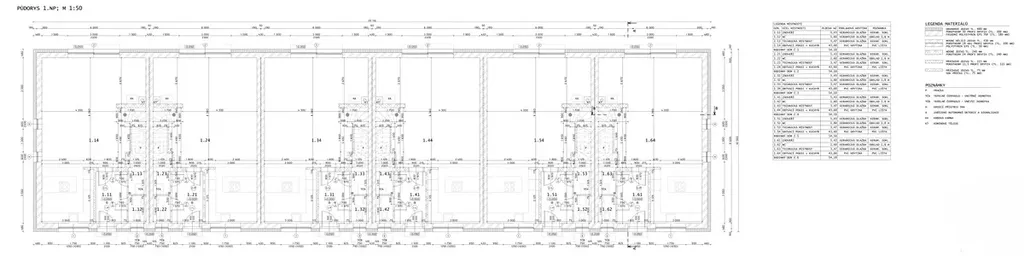
Nabízím k prodeji celkem tři parcely v obci Lom s čerstvě vydaným stavebním povolením na šest řadových rodinných domů typu uvedeném ve vizualizacích.

Celková výměra poz. parc. č. st. 318, st. 258 a st. 241 je dohromady 1420 m2, samostatné přípojky elektřiny ke každému domu jsou uhrazeny a budou vybudovány spol. ČEZ v nejbližší době. Přípojka vody a kanalizace se nachází na poz. parc. č. st. 318. Projekt je případně možné změnit na bytový dům za použití stávající projektové dokumentace.

Pro detailní informace a podmínky stavebního povolení mě prosím kontaktujte telefonicky nebo mailem.

Parametry pozemku

Cena
4 990 000 Kč /za nemovitost Spočítat hypotéku
Aktualizováno
19. 3. 2026
Adresa
Litvínovská, Lom
ID
442525
Plocha pozemku
1420 m2

Kontaktovat makléře

Máte zájem o tento pozemek?

Tímto, v souladu s nařízením Evropského parlamentu a Rady (EU) 2016/679, v platném znění, prohlašuji, že mi je alespoň 16 let a uděluji tak svůj souhlas se zpracováním zadaných údajů (jméno, telefon, e-mail, ip adresa) společnosti B3 Technology, s.r.o., IČ: 07330600, se sídlem Novostavby 126/23, 435 11 Lom (správce dat), za účelem předání dotazu z tohoto formuláře Vámi vybranému inzerentovi a zpětného kontaktování mé osoby. Osobní údaje bude správce zpracovávat manuálně i automaticky přímo prostřednictvím svých zaměstnanců. Informace předané tímto formulářem budou uloženy v databázi správce maximálně po dobu 10 let. Odvolání souhlasu s uložením a zpracováním poskytnutých dat lze e-mailem na info@videobydleni.cz. V případě podezření na neoprávněné použití Vámi poskytnutých údajů máte právo předat podnět k šetření Úřadu pro ochranu osobních údajů. Více informací
Chystáte se prodat nemovitost?
Pomůžeme Vám!

Inzerát si prohlédlo 1 lidí

Prodejce

Andrea Hlinková

Andrea Hlinková

Hlídací pes

Chcete dostávat emailem podobné nabídky prodeje pozemků pro bydlení v Lomu (okr. Most)?

Podobné nemovitosti


Nevyhovuje Vám typ pozemku? Podívejte se na jiné kategorie pozemků.


Vybrané články z našeho blogu