Prodej bytu 4+kk, Benidorm, Španělsko, 103 m2

Benidorm

558 000 € /za nemovitost
Prémioví partneři

Informace k bytu

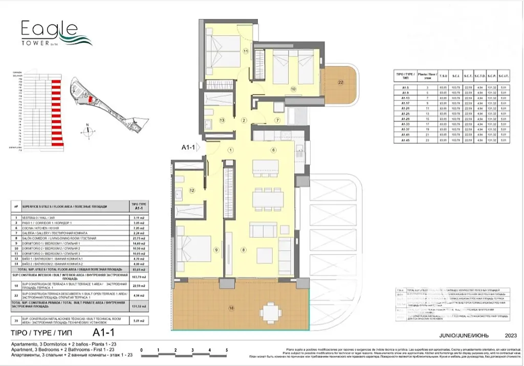
Na pobřeží Costa Blanca, v oblíbeném městě Benidorm, nabízíme výjimečný apartmán 4+kk, který spojuje prostor, světlo a výhledy, jež definují skutečný život u moře. Nachází se v 15. patře moderní novostavby a díky jižní orientaci je celý den zalitý přirozeným světlem. Panoramatický výhled na moře a golfové hřiště Las Rejas vytváří kulisu, která se stává každodenní součástí života.

Celková plocha 131,32 m² nabízí promyšlenou dispozici, kde hlavní roli hraje otevřený obývací prostor propojený s kuchyní a jídelnou. Odtud je přímý vstup na terasu o velikosti 22,59 m², která rozšiřuje obytný prostor směrem ven a přirozeně se stává místem pro odpočinek i společné chvíle. Tři ložnice poskytují dostatek prostoru pro rodinu i hosty, přičemž hlavní ložnice má vlastní koupelnu a působí jako klidné soukromé zázemí. Druhá koupelna je prakticky dostupná ze společných prostor a zajišťuje pohodlí při každodenním fungování.

Součástí bytu je sklep a garážové stání v podzemí s přípravou pro elektromobil, což odpovídá současným nárokům na moderní bydlení. Projekt zároveň umožňuje volbu mezi standardy Excellence a Premium, takže si lze finální podobu přizpůsobit podle vlastního stylu.

Rezidenční komplex je navržen jako plnohodnotné místo pro život i relaxaci. Na ploše více než 5 400 m² se nachází bazény pro dospělé i děti, vířivky, fitness centrum, paddle tenis, multifunkční sportovní hřiště, dětské zóny i upravené zelené plochy. Celé prostředí podporuje aktivní životní styl i klidný odpočinek bez nutnosti opouštět areál.

Lokalita nabízí ideální kombinaci dostupnosti a soukromí. Pláž Poniente je vzdálena jen několik minut, golfové hřiště leží přímo u rezidence a veškeré služby, restaurace i obchody jsou v dosahu. Benidorm přináší energii celoročního života, pestrou gastronomii i široké možnosti trávení volného času. Díky napojení na hlavní komunikace N-332 a AP7 je navíc výborně dostupný z letiště i dalších částí pobřeží.

Tento apartmán představuje silnou kombinaci kvalitního bydlení a investiční příležitosti. Nabízí prostor pro rodinné chvíle, klidné večery na terase i potenciál stabilního výnosu z pronájmu. Je to místo, kam se lidé vrací nejen kvůli lokalitě, ale i kvůli pocitu, který tady vzniká.

Všechny údaje uvedené v tomto inzerátu slouží pouze k informačním účelům. Před jakýmkoli rozhodnutím nebo jednáním založeným na těchto informacích je nutné všechny údaje ověřit v naší realitní kanceláři.

Parametry bytu

Cena
558 000 € /za nemovitost
Aktualizováno
21. 3. 2026
Adresa
Benidorm
ID
F25978
Stavba
Cihlová
Stav objektu
Novostavba
Patro
15. z 25
Vybaveno
Částečně
Lokalita objektu
Klidná část obce
Vlastnictví
Osobní
Užitná plocha
103 m2
Podlahová plocha
131 m2
Elektřina
230V
Odpad
Veřejná kanalizace
Topení
Lokální elektrické
Telekomunikace
Internet
Doprava
Dálnice, Silnice, Autobus
Voda
Vodovod
Sklep
Terasa
Výtah
Parkování

Kontaktovat makléře

Realitní kancelář

Moje nemovitost u moře

Bubenská 122/20, Praha, Holešovice

Chystáte se prodat nemovitost?
Pomůžeme Vám!

Máte zájem o tento byt?

Tímto, v souladu s nařízením Evropského parlamentu a Rady (EU) 2016/679, v platném znění, prohlašuji, že mi je alespoň 16 let a uděluji tak svůj souhlas se zpracováním zadaných údajů (jméno, telefon, e-mail, ip adresa) společnosti B3 Technology, s.r.o., IČ: 07330600, se sídlem Novostavby 126/23, 435 11 Lom (správce dat), za účelem předání dotazu z tohoto formuláře Vámi vybranému inzerentovi a zpětného kontaktování mé osoby. Osobní údaje bude správce zpracovávat manuálně i automaticky přímo prostřednictvím svých zaměstnanců. Informace předané tímto formulářem budou uloženy v databázi správce maximálně po dobu 10 let. Odvolání souhlasu s uložením a zpracováním poskytnutých dat lze e-mailem na info@videobydleni.cz. V případě podezření na neoprávněné použití Vámi poskytnutých údajů máte právo předat podnět k šetření Úřadu pro ochranu osobních údajů. Více informací
Chystáte se prodat nemovitost?
Pomůžeme Vám!

Inzerát si prohlédlo 1 lidí

Prodejce

Nikša Marinkovič

Nikša Marinkovič

Hlídací pes

Chcete dostávat emailem podobné nabídky prodeje bytů 4+kk?

Podobné nemovitosti


Nevyhovuje Vám typ bytu? Podívejte se na jiné kategorie bytů.


Vybrané články z našeho blogu