Prodej rodinného domu, Nýrsko, Kpt. Kufnera, 279 m2 (ID: 4213605)

Kpt. Kufnera, Nýrsko

2 990 000 Kč /za nemovitost HYPOTÉKA od 13 363 Kč /za měsíc
Prémioví partneři v Nýrsku

Stěhovací služby

Informace k domu

Nabízíme k prodeji rodinný dům s výjimečným potenciálem v klidné pěší zóně na nábřeží řeky Úhlavy, ulice Kpt. Kufnera, Nýrsko. Hlavní devizou této nemovitosti je její unikátní a romantická poloha přímo před domem protéká řeka, kde můžete denně pozorovat labutě a kachny. Jedná se o velmi tiché místo s absolutním soukromím, přesto pár minut chůze od centra města a veškeré občanské vybavenosti.

Dům nabízí nadstandardní vnitřní prostory, které jsou připraveny k celkové rekonstrukci podle představ nového majitele.
Dispozice a plocha:
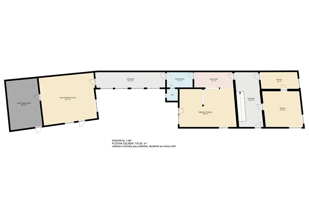
Přízemí (170,5 m2): Obsahuje velmi prostornou obytnou místnost (36,7 m2), technické zázemí (22,3 m2), kuchyni, koupelnu, samostatné WC a další pokoje.
2. nadzemní podlaží (108,2 m2): Nabízí tři samostatné pokoje, kuchyni, koupelnu, komory a vstup na venkovní terasu.
Půda (89,9 m2): Rozlehlý a otevřený prostor vhodný pro vestavbu dalších obytných místností nebo ateliéru.

Celková užitná plocha domu přesahuje 360 m2, což umožňuje i vybudování několika samostatných bytových jednotek nebo kombinaci bydlení s podnikáním.

Pozemek o celkové výměře cca 330 m2 zahrnuje rovinatou zahradu v zadní části domu, která poskytuje naprostý klid. Současná terasa a drobné stavby v zadní části jsou určeny k odstranění či kompletní přestavbě, čímž vznikne prostor pro vybudování moderního zázemí pro letní grilování a relaxaci v soukromí.

Dům je určen rekonstrukci. Právě díky nutnosti oprav je ale tato nemovitost ideální pro čerpání státní dotace z programu Oprav dům po babičce, se kterou vám rádi pomůžeme a Vy si tak můžete vytvořit bydlení přesně podle svých představ a snů.

Nýrsko je branou do Šumavy a nabízí kompletní vybavenost (školy, lékaře, obchody, sportoviště). Výborná dostupnost do Klatov i na hranice s Německem.
Tato nabídka je určena pro zájemce, kteří hledají klidné a inspirativní místo u vody a nebojí se rekonstrukce, jejímž výsledkem bude unikátní bydlení v lokalitě, která se na trhu objevuje jen výjimečně.

POZOR: nemovitost nebyla zasažena vodou ani v případě záplav v roce 2002.
V případě zájmu o více informací či domluvení prohlídky mně neváhejte kdykoli kontaktovat.

Parametry domu

Cena
2 990 000 Kč /za nemovitost Spočítat hypotéku
Aktualizováno
21. 3. 2026
Adresa
Kpt. Kufnera, Nýrsko
ID
75
Stavba
Cihlová
Stav objektu
Před rekonstrukcí
Druh objektu
Řadový
Užitná plocha
279 m2
Zastavěná plocha
200 m2
Podlahová plocha
368 m2
Plocha pozemku
330 m2
Plocha zahrady
214 m2
Třída energetické náročnosti
G - Mimořádně nehospodárná
Bezbarierový přístup

Kontaktovat makléře

Máte zájem o tento dům?

Tímto, v souladu s nařízením Evropského parlamentu a Rady (EU) 2016/679, v platném znění, prohlašuji, že mi je alespoň 16 let a uděluji tak svůj souhlas se zpracováním zadaných údajů (jméno, telefon, e-mail, ip adresa) společnosti B3 Technology, s.r.o., IČ: 07330600, se sídlem Novostavby 126/23, 435 11 Lom (správce dat), za účelem předání dotazu z tohoto formuláře Vámi vybranému inzerentovi a zpětného kontaktování mé osoby. Osobní údaje bude správce zpracovávat manuálně i automaticky přímo prostřednictvím svých zaměstnanců. Informace předané tímto formulářem budou uloženy v databázi správce maximálně po dobu 10 let. Odvolání souhlasu s uložením a zpracováním poskytnutých dat lze e-mailem na info@videobydleni.cz. V případě podezření na neoprávněné použití Vámi poskytnutých údajů máte právo předat podnět k šetření Úřadu pro ochranu osobních údajů. Více informací
Chystáte se prodat nemovitost?
Pomůžeme Vám!

Inzerát si prohlédlo 0 lidí

Prodejce

Pavel  Cink

Pavel Cink

Hlídací pes

Chcete dostávat emailem podobné nabídky prodeje rodinných domů v Nýrsku?

Podobné nemovitosti


Nevyhovuje Vám typ domu? Podívejte se na jiné kategorie domů.


Vybrané články z našeho blogu