Prodej bytu 2+kk, Praha - Malešice, Počernická, 67 m2

Počernická, Praha, Malešice

10 990 000 Kč /za nemovitost HYPOTÉKA od 49 119 Kč /za měsíc

(Cena je včetně provize RK a právních služeb)

Prémioví partneři v Praze 10

Stěhovací služby

Výkup a prodej starého nábytku

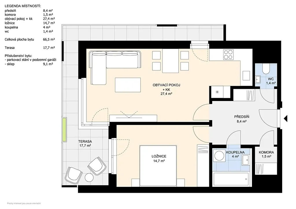
Informace k bytu

Nabízíme ke koupi světlý byt 2+kk s nádherným výhledem na Prahu, situovaný v 15. nadzemním podlaží oblíbeného projektu Byty Malešice.
V ceně je zahrnuto komfortní parkovací stání v podzemní garáži a velký sklep o velikosti 9,1 m².

Byt má jednu z nejlepších dispozic, která byla navíc během výstavby nadstandardně upravena, a disponuje užitnou plochou 66,5 m².

Sestává z prostorné předsíně (8,4 m²) s vestavěnou skříní, obývacího pokoje s kuchyňským koutem (27,4 m²), neprůchozí ložnice (14,7 m²), komory (1,5 m²), koupelny (4 m²) a samostatného WC (1,4 m²).

Jedinečnou atmosféru bytu dotváří prostorná terasa o velikosti 17,7 m², na které si můžete vychutnat ranní kávu s výhledem na okolní panorama a večer pozorovat krásné západy slunce. Vstup na terasu je z obou místností.

Velkou výhodou je také umístění v patře, kde se nacházejí pouze 3 bytové jednotky, z nichž 2 jsou navíc odděleny od chodby dveřmi.

Byt je částečně zařízen nábytkem, který je součástí kupní ceny, a je ve velmi dobrém stavu. Součástí vybavení je kuchyňská linka, postel, pračka a osvětlení.

Při výstavbě byly použity moderní a kvalitní materiály, jako jsou dřevěná podlaha, plastová okna, venkovní rolety a bezpečnostní vstupní dveře.

Lokalita se těší skvělé dopravní dostupnosti – do centra Prahy se dostanete za 15 minut, k metru Želivského za 5 minut a na Florenc za 20 minut. Aktuálně se navíc připravuje nová tramvajová trať, která zaručí ještě pohodlnější spojení.

Jde o jedno z mála míst, kde máte skutečně veškerou občanskou vybavenost po ruce. Přímo u domu se nachází supermarket LIDL, drogerie, restaurace, několik kaváren, Fitness & Health Club, solární studio, poliklinika, 3 lékárny, kosmetický salon, městská knihovna a dětská hřiště. V okolí je také několik školek a škol, střední průmyslová škola elektrotechnická a gymnázium. Milovníci procházek a přírody jistě ocení nedaleký Malešický park nebo o kousek dál Malešický les.

Byt je v osobním vlastnictví a není zatížen hypotékou. Je ihned k nastěhování. V případě potřeby Vám rádi pomůžeme zajistit výhodné financování.

Pro více informací a domluvení prohlídky nás neváhejte kontaktovat.

Parametry bytu

Cena
10 990 000 Kč /za nemovitost Spočítat hypotéku
Poznámka k ceně
Cena je včetně provize RK a právních služeb
Aktualizováno
22. 3. 2026
Adresa
Počernická, Praha, Malešice
ID
699212
Stavba
Smíšená
Stav objektu
Novostavba
Patro
15. z 17
Vybaveno
Částečně
Lokalita objektu
Klidná část obce
Vlastnictví
Osobní
Užitná plocha
67 m2
Třída energetické náročnosti
C - Úsporná
Ukazatel energetické náročnosti
136 kWh/m2 za rok
Odpad
Veřejná kanalizace
Doprava
MHD
Voda
Vodovod
Topné těleso
Radiátory
Zdroj topení
Ústřední dálkové
Terasa
Výtah
Bezbarierový přístup

Kontaktovat makléře

Máte zájem o tento byt?

Tímto, v souladu s nařízením Evropského parlamentu a Rady (EU) 2016/679, v platném znění, prohlašuji, že mi je alespoň 16 let a uděluji tak svůj souhlas se zpracováním zadaných údajů (jméno, telefon, e-mail, ip adresa) společnosti B3 Technology, s.r.o., IČ: 07330600, se sídlem Novostavby 126/23, 435 11 Lom (správce dat), za účelem předání dotazu z tohoto formuláře Vámi vybranému inzerentovi a zpětného kontaktování mé osoby. Osobní údaje bude správce zpracovávat manuálně i automaticky přímo prostřednictvím svých zaměstnanců. Informace předané tímto formulářem budou uloženy v databázi správce maximálně po dobu 10 let. Odvolání souhlasu s uložením a zpracováním poskytnutých dat lze e-mailem na info@videobydleni.cz. V případě podezření na neoprávněné použití Vámi poskytnutých údajů máte právo předat podnět k šetření Úřadu pro ochranu osobních údajů. Více informací
Chystáte se prodat nemovitost?
Pomůžeme Vám!

Inzerát si prohlédlo 0 lidí

Prodejce

Mgr. Ksenia Macíková - vedoucí oddělení prodeje

Mgr. Ksenia Macíková - vedoucí oddělení prodeje

Hlídací pes

Chcete dostávat emailem podobné nabídky prodeje bytů 2+kk v Praze 10?

Podobné nemovitosti


Nevyhovuje Vám typ bytu? Podívejte se na jiné kategorie bytů.


Vybrané články z našeho blogu