Prodej obchodního prostoru, Křemže, Náměstí, 124 m2

Náměstí, Křemže

1 750 000 Kč /za nemovitost HYPOTÉKA od 7 821 Kč /za měsíc

(Cena zahrnuje veškerý právní servis, poplatek za návrh na vklad na KN a provizi RK.)

Prémioví partneři v Křemži

Výkup a prodej starého nábytku

Informace k nemovitosti

Dobrý den,
společně s majitelem nabízíme k prodeji spoluvlastnický podíl 1/2 na nebytové jednotce č. 14/1 o celkové podlahové ploše 123,7 m², která se nachází v přízemí domu č.p. 14 přímo na náměstí městyse Křemže v okrese Český Krumlov.

Křemže je stabilní jihočeský městys s přibližně třemi tisíci obyvateli a plnou základní občanskou vybaveností. Díky své poloze mezi Českým Krumlovem a Českými Budějovicemi funguje jako přirozené lokální centrum pro okolní obce. Náměstí, kde se nabízená jednotka nachází, je místem každodenního pohybu místních obyvatel – nachází se zde služby, obchody i veřejné instituce. Právě tato poloha zajišťuje dlouhodobou stabilitu služeb a podnikání v dané lokalitě.

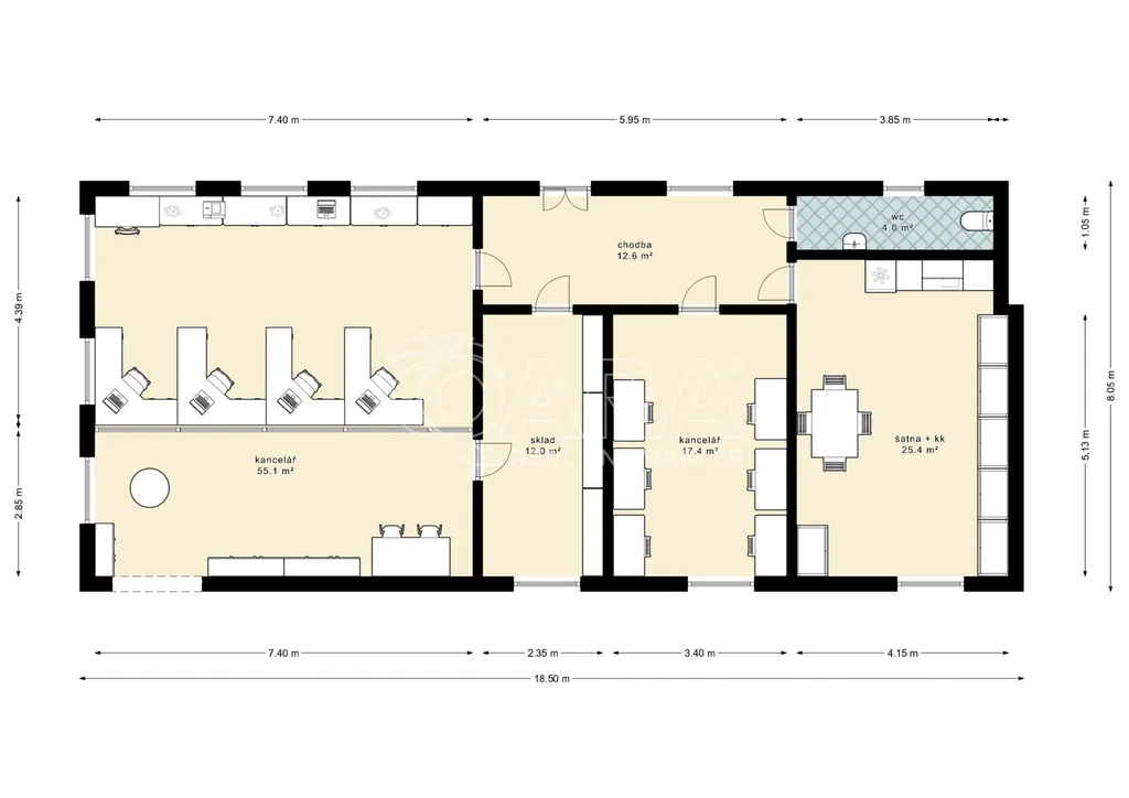
Nebytová jednotka je dlouhodobě využívána Českou poštou, která zde provozuje svou pobočku. Pro investora to znamená stabilního a prověřeného nájemce s pravidelným provozem služeb pro místní obyvatele. Prostory o celkové ploše 123,7 m² slouží jako kancelářské a provozní zázemí pobočky a zahrnují hlavní kancelář pro obsluhu klientů, další kancelářské prostory, skladovací místnosti, chodbu, sociální zařízení a zázemí pro zaměstnance včetně menší kuchyňky.

Nájemní smlouva je uzavřena na dobu neurčitou a obsahuje možnost každoroční valorizace nájemného o inflaci. Energie má nájemce sjednány přímo na sebe, takže vlastník nenese provozní náklady spojené s elektřinou či plynem.

Aktuální čistý měsíční příjem připadající na prodávaný podíl činí 5.780 Kč, tedy 69.360 Kč ročně. Kupní cena podílu je 1.750.000 Kč, což při současném nájmu představuje hrubý roční výnos z nájmu 3,96 %. A to bez započtení budoucí valorizace nájemného a bez zohlednění případného růstu hodnoty samotné nemovitosti.

Investice tak nabízí kombinaci pravidelného příjmu, stabilního nájemce a reálného majetku v centru obce. V porovnání s běžnými bankovními produkty jde o investici krytou nemovitostí a dlouhodobým nájemním vztahem.

Nebytová jednotka se nachází v přízemí zděného domu č.p. 14 na pozemku parc. č. 75/1 o výměře 823 m². Dům je napojen na veřejný vodovod, kanalizaci, elektřinu i plyn a vytápění je řešeno plynovým kotlem. Střecha domu s taškovou krytinou prošla v nedávné době renovací, takže tato větší investice je již vyřešena. Společné prostory domu jsou jinak v původním, ale udržovaném stavu a zahrnují konstrukce domu, střechu, rozvody, schodiště, chodby a další technické prvky. O úklid i údržbu společných prostor a pozemku se stará přímo společenství spoluvlastníků.

Tato nabídka je vhodná pro investora, který hledá konzervativní uložení prostředků s pravidelným výnosem a minimální správní náročností. Nejde o spekulativní projekt, ale o fungující komerční prostor s kontinuálním cashflow.

V případě zájmu o více informací nás neváhejte kontaktovat.
Těšíme se na slyšenou a na viděnou, BartlGroup.

Parametry nemovitosti

Cena
1 750 000 Kč /za nemovitost Spočítat hypotéku
Poznámka k ceně
Cena zahrnuje veškerý právní servis, poplatek za návrh na vklad na KN a provizi RK.
Aktualizováno
23. 3. 2026
Adresa
Náměstí, Křemže
ID
19138
Stavba
Smíšená
Stav objektu
Dobrý
Vybaveno
Ne
Typ objektu
Patrový
Lokalita objektu
Centrum obce
Užitná plocha
124 m2
Zastavěná plocha
781 m2
Podlahová plocha
124 m2
Třída energetické náročnosti
G - Mimořádně nehospodárná
Elektřina
230V
Plyn
Plynovod
Odpad
Veřejná kanalizace
Komunikace
Asfaltová
Telekomunikace
Telefon, Internet
Doprava
Vlak, Silnice, MHD, Autobus
Voda
Místní zdroj vody, Vodovod
Převod do OV

Kontaktovat makléře

Realitní kancelář

Logo QARA, s.r.o.

QARA, s.r.o.

Šafaříkova 201/17, Praha

Chystáte se prodat nemovitost?
Pomůžeme Vám!

Máte zájem o tuto nemovistost?

Tímto, v souladu s nařízením Evropského parlamentu a Rady (EU) 2016/679, v platném znění, prohlašuji, že mi je alespoň 16 let a uděluji tak svůj souhlas se zpracováním zadaných údajů (jméno, telefon, e-mail, ip adresa) společnosti B3 Technology, s.r.o., IČ: 07330600, se sídlem Novostavby 126/23, 435 11 Lom (správce dat), za účelem předání dotazu z tohoto formuláře Vámi vybranému inzerentovi a zpětného kontaktování mé osoby. Osobní údaje bude správce zpracovávat manuálně i automaticky přímo prostřednictvím svých zaměstnanců. Informace předané tímto formulářem budou uloženy v databázi správce maximálně po dobu 10 let. Odvolání souhlasu s uložením a zpracováním poskytnutých dat lze e-mailem na info@videobydleni.cz. V případě podezření na neoprávněné použití Vámi poskytnutých údajů máte právo předat podnět k šetření Úřadu pro ochranu osobních údajů. Více informací
Chystáte se prodat nemovitost?
Pomůžeme Vám!

Inzerát si prohlédlo 0 lidí

Prodejce

Anika Bártlová

Anika Bártlová

Hlídací pes

Chcete dostávat emailem podobné nabídky prodeje obchodních prostor v Křemži?


Nevyhovuje Vám typ nemovitosti? Podívejte se na jiné kategorie komerčních.


Vybrané články z našeho blogu