Soccer reality

Pronájem obchodního prostoru, Horoušany - Horoušánky, Hlavní, 99 m2 (ID: 4214979)

Hlavní, Horoušany, Horoušánky

36 000 Kč /za měsíc Získejte výhodnou HYPOTÉKU

(Nájemné nezahrnuje poplatky za energie a komunální poplatky)

Prémioví partneři v Horoušanech

Informace k nemovitosti

Pronájem obchodního prostoru 99 m², Úvaly

Tento exkluzivní komerční prostor v novostavbě multifunkční vily nabízí vše – viditelnost, reprezentativnost i výjimečné technické standardy.

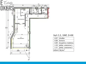
Přímo na hlavní dopravní tepně obce (ul. Hlavní), kterou denně projede více než 10 000 vozidel (dle hlukové studie), se nachází nový komerční prostor o ploše 79 m² s navazující soukromou předzahrádkou/terasou 20 m². Ideální pro provoz bistra, kavárny, lékárny, ordinace, vzorkovny, prodejny potravin, pet shopu, kanceláře, poradenské služby či studio pro volnočasové aktivity.

Klíčové benefity:
Skvělé umístění: na hranici Prahy 9 a Prahy-východ, v žádané lokalitě u Klánovického lesa

Moderní dispozice: Velkoplošná výloha, vchod z ulice, venkovní terasa, dvě prostorné místnosti (prodejna/recepce + kancelář/kuchyň/zasedací místnost)

Zázemí: kavárna na 26 míst, kuchyň/přípravna, 1 šatnu s WC pro personál, 1 dámské WC se sprchou, 1 pánské WC.
Možnost pronájmu skladu 10 m²

Bezbariérový přístup a výtah – komfort pro klienty i zaměstnance

Energeticky úsporné řešení: podlahové vytápění, elektrický kotel, masivní zateplení (50 cm zdivo + moderní fasáda)

Venkovní parkoviště s kapacitou 8 míst.

Prostor je kolaudován pro provoz kavárny/bistra, ale díky své flexibilitě nabízí široké možnosti využití pro různé podnikatelské záměry.

Investujte do úspěchu svého podnikání – ve spojení komfortu, viditelnosti a luxusu.
Kontaktujte nás ještě dnes a domluvte si osobní prohlídku. Tento prostor je připraven stát se výkladní skříní vaší značky.

Parametry nemovitosti

Cena
36 000 Kč /za měsíc
Poznámka k ceně
Nájemné nezahrnuje poplatky za energie a komunální poplatky
Aktualizováno
23. 3. 2026
Adresa
Hlavní, Horoušany, Horoušánky
ID
0448
Stavba
Cihlová
Vybaveno
Částečně
Užitná plocha
99 m2
Zastavěná plocha
220 m2
Třída energetické náročnosti
B - Velmi úsporná

Kontaktovat makléře

Máte zájem o tuto nemovistost?

Tímto, v souladu s nařízením Evropského parlamentu a Rady (EU) 2016/679, v platném znění, prohlašuji, že mi je alespoň 16 let a uděluji tak svůj souhlas se zpracováním zadaných údajů (jméno, telefon, e-mail, ip adresa) společnosti B3 Technology, s.r.o., IČ: 07330600, se sídlem Novostavby 126/23, 435 11 Lom (správce dat), za účelem předání dotazu z tohoto formuláře Vámi vybranému inzerentovi a zpětného kontaktování mé osoby. Osobní údaje bude správce zpracovávat manuálně i automaticky přímo prostřednictvím svých zaměstnanců. Informace předané tímto formulářem budou uloženy v databázi správce maximálně po dobu 10 let. Odvolání souhlasu s uložením a zpracováním poskytnutých dat lze e-mailem na info@videobydleni.cz. V případě podezření na neoprávněné použití Vámi poskytnutých údajů máte právo předat podnět k šetření Úřadu pro ochranu osobních údajů. Více informací
Chystáte se prodat nemovitost?
Pomůžeme Vám!

Inzerát si prohlédlo 0 lidí

Prodejce

Dana Suchánková

Dana Suchánková

Hlídací pes

Chcete dostávat emailem podobné nabídky pronájmu obchodních prostor v Horoušanech?

Podobné nemovitosti


Nevyhovuje Vám typ nemovitosti? Podívejte se na jiné kategorie komerčních.


Vybrané články z našeho blogu