Pronájem bytu 2+kk, Praha - Smíchov, Holečkova, 39 m2 (ID: 4215356)

Holečkova, Praha 5, Smíchov

14 900 Kč /za měsíc Získejte výhodnou HYPOTÉKU

(+ poplatky 750 Kč/osoba + elektřina, jistota 30.000,-Kč)

Prémioví partneři v Praze 5

Stěhovací služby

Výkup a prodej starého nábytku

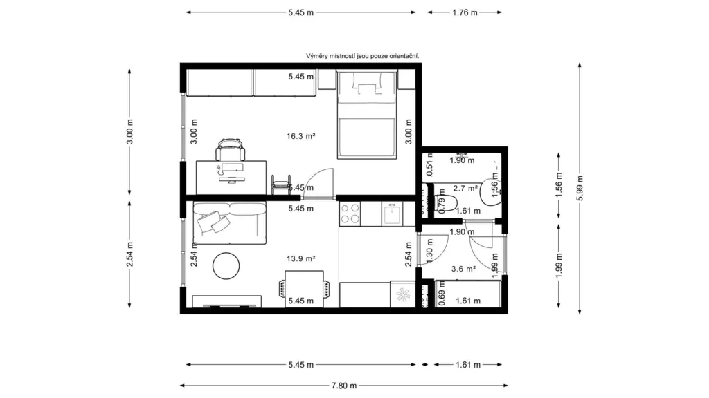
Informace k bytu

Nabízíme Vám k pronájmu byt 2kk, 39 m2, ve zděném činžovním domě v ulici Holečkova, Praha 5 - Smíchov. Byt se nabízí částečně zařízený, k dispozici je nová kuchyňská linka, trouba pračka a lednice. Dále je zde samostatná ložnice s prostornou skříní. Topení elektrické, ohřev vody bojlerem. Na chodbě bytu je také úložná skříň. Je možné užívání společného balkonu v mezipatře. Byt je volný ihned.

Cena nájmu je 17.900,-Kč, poplatky 750,-Kč za osobu, elektřina bude převedena na nájemce. Jistota majiteli 35.000,- Kč, jednorázová provize RK 17.900,-Kč.

Pro bližší informace mě kontaktujte.

Parametry bytu

Cena
14 900 Kč /za měsíc
Poznámka k ceně
+ poplatky 750 Kč/osoba + elektřina, jistota 30.000,-Kč
Aktualizováno
24. 3. 2026
Adresa
Holečkova, Praha 5, Smíchov
ID
N00646
Stavba
Cihlová
Stav objektu
Velmi dobrý
Patro
3. z 4
Lokalita objektu
Centrum obce
Vlastnictví
Osobní
Užitná plocha
39 m2
Podlahová plocha
39 m2
Třída energetické náročnosti
G - Mimořádně nehospodárná
Odpad
Veřejná kanalizace
Topení
Lokální elektrické
Doprava
Silnice, MHD, Autobus
Voda
Vodovod

Kontaktovat makléře

Realitní kancelář

Zuzana Lang s.r.o.

Armádní 886, Mladá, 289 24 Milovice, Praha

Chystáte se prodat nemovitost?
Pomůžeme Vám!

Máte zájem o tento byt?

Tímto, v souladu s nařízením Evropského parlamentu a Rady (EU) 2016/679, v platném znění, prohlašuji, že mi je alespoň 16 let a uděluji tak svůj souhlas se zpracováním zadaných údajů (jméno, telefon, e-mail, ip adresa) společnosti B3 Technology, s.r.o., IČ: 07330600, se sídlem Novostavby 126/23, 435 11 Lom (správce dat), za účelem předání dotazu z tohoto formuláře Vámi vybranému inzerentovi a zpětného kontaktování mé osoby. Osobní údaje bude správce zpracovávat manuálně i automaticky přímo prostřednictvím svých zaměstnanců. Informace předané tímto formulářem budou uloženy v databázi správce maximálně po dobu 10 let. Odvolání souhlasu s uložením a zpracováním poskytnutých dat lze e-mailem na info@videobydleni.cz. V případě podezření na neoprávněné použití Vámi poskytnutých údajů máte právo předat podnět k šetření Úřadu pro ochranu osobních údajů. Více informací
Chystáte se prodat nemovitost?
Pomůžeme Vám!

Inzerát si prohlédlo 0 lidí

Prodejce

Bc. Zuzana Lang DiS

Bc. Zuzana Lang DiS

Hlídací pes

Chcete dostávat emailem podobné nabídky pronájmu bytů 2+kk v Praze 5?

Podobné nemovitosti


Nevyhovuje Vám typ bytu? Podívejte se na jiné kategorie bytů.


Vybrané články z našeho blogu