Pronájem bytu 2+kk, Praha - Kunratice, Jana Růžičky, 45 m2

Jana Růžičky, Praha, Kunratice

18 500 Kč /za měsíc Získejte výhodnou HYPOTÉKU
Prémioví partneři v Praze 4

Stěhovací služby

Výkup a prodej starého nábytku

Informace k bytu

Realitní společnost Dvořák & Petrášková reality vám nabízí k pronájmu byt 2+kk po kompletní rekonstrukci, na adrese Jana Růžičky 1151/27, Praha Kunratice. Neplatíte provizi RK.

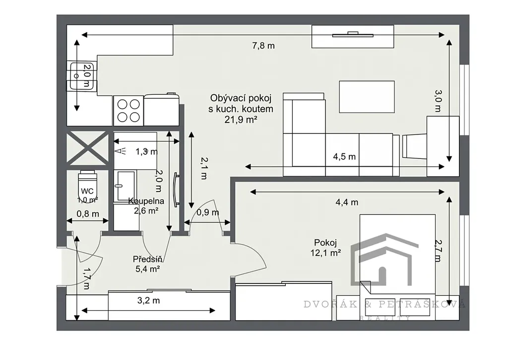
Zrekonstruovaný byt s podlahovou plochou 45 m2 se nachází ve 4.patře domu s výtahem. Byt prošel kompletní rekonstrukcí, je vhodný pro jednotlivce nebo pár a disponuje vstupní chodbou s vestavěnou šatní skříní, oddělenými vstupy do jednotlivých pokojů, na toaletu a do koupelny. Obývací pokoj s kuchyňským koutem je vybavený lednicí s mrazákem, myčkou, horkovzdušnou troubou, indukční varnou deskou, digestoří, mikrovlnou troubou a dostatkem úložného prostoru. Ložnice s výměrou 12 m2 s přístupem z chodby je vybavena manželskou postelí a vestavěnou šatní skříní. Koupelna se sprchovým koutem a pračkou s vrchním plněním. Veškerý nábytek na fotografiích je součástí ceny pronájmu a zůstává v pronajímané nemovitosti. Ohřev vody a teplo dálkově z teplárny. K bytu náleží sklepní kóje.

Byt je volný k nastěhování od 1.5. Parkování je možné před domem, na modrých zónách.

Jedná se o příjemnou, klidnou lokalitu plné zeleně. Zároveň jste kousek od oblíbeného obchodního centra Westfield Chodov, kde je i zastávka metra Chodov. Zastávka autobusu je umístěná kousek od domu, naproti VŠE i supermarket Billa. V Lidlu jste pěšky do 10 minut a taktéž v Kunratickém lese.

Měsíční náklady na bydlení jsou:
-nájemné 18.500,– Kč,
-zúčtovatelné zálohy na služby pro 1 osobu 5.500,– Kč,
-zálohy na odběr elektřiny cca 1.200,– Kč (smlouva na nájemce).

Vratná kauce 37.000,– Kč, splatná při podpisu rezervační smlouvy.
Nájemné na daný měsíc se hradí v daném měsíci. Neplatíte provizi.

Byt je určený výhradně k dlouhodobému pronájmu a max. pro 2 osoby. Byt není vhodný pro spolubydlení. Preferujeme nájemce bez domácích mazlíčků. Ráda se s Vámi uvidím na prohlídce.

Parametry bytu

Cena
18 500 Kč /za měsíc
Aktualizováno
24. 3. 2026
Adresa
Jana Růžičky, Praha, Kunratice
ID
26011
Stavba
Cihlová
Stav objektu
Po rekonstrukci
Patro
4.
Lokalita objektu
Klidná část obce
Vlastnictví
Osobní
Užitná plocha
45 m2
Podlahová plocha
45 m2
Třída energetické náročnosti
G - Mimořádně nehospodárná
Elektřina
230V
Topení
Ústřední dálkové
Telekomunikace
Internet
Doprava
Dálnice, MHD
Voda
Vodovod
Sklep
Výtah
Bezbarierový přístup

Kontaktovat makléře

Máte zájem o tento byt?

Tímto, v souladu s nařízením Evropského parlamentu a Rady (EU) 2016/679, v platném znění, prohlašuji, že mi je alespoň 16 let a uděluji tak svůj souhlas se zpracováním zadaných údajů (jméno, telefon, e-mail, ip adresa) společnosti B3 Technology, s.r.o., IČ: 07330600, se sídlem Novostavby 126/23, 435 11 Lom (správce dat), za účelem předání dotazu z tohoto formuláře Vámi vybranému inzerentovi a zpětného kontaktování mé osoby. Osobní údaje bude správce zpracovávat manuálně i automaticky přímo prostřednictvím svých zaměstnanců. Informace předané tímto formulářem budou uloženy v databázi správce maximálně po dobu 10 let. Odvolání souhlasu s uložením a zpracováním poskytnutých dat lze e-mailem na info@videobydleni.cz. V případě podezření na neoprávněné použití Vámi poskytnutých údajů máte právo předat podnět k šetření Úřadu pro ochranu osobních údajů. Více informací
Chystáte se prodat nemovitost?
Pomůžeme Vám!

Inzerát si prohlédlo 0 lidí

Prodejce

Bc. Linda Petrášková MBA

Bc. Linda Petrášková MBA

Hlídací pes

Chcete dostávat emailem podobné nabídky pronájmu bytů 2+kk v Praze 4?

Podobné nemovitosti


Nevyhovuje Vám typ bytu? Podívejte se na jiné kategorie bytů.


Vybrané články z našeho blogu