Pronájem bytu 3+kk, Praha - Nové Město, Václavské náměstí, 70 m2 (ID: 4215535)

Václavské náměstí, Praha, Nové Město

34 900 Kč /za měsíc Získejte výhodnou HYPOTÉKU

(Poplatky za služby a energie se hradí zvlášť)

Prémioví partneři v Praze 1

Stěhovací služby

Výkup a prodej starého nábytku

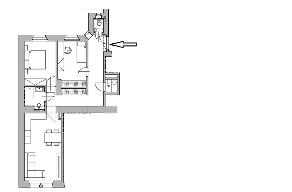
Informace k bytu

Stylový, nově zrekonstruovaný byt 3+kk ( 2 ložnice, 1 koupelna), o celkové ploše 69,84m2, je situovaný ve 2.NP s výtahem, v budově v klidném vnitrobloku, která se nachází se ve vyhledávané lokalitě v Praze 1, na Václavském náměstí.

Interiér bytu je částečně zařízený a dispozičně nabízí prostornou chodbu (17,69m2) s vestavěnou šatní skříní, světlý obývací pokoj (22,17m2) spojený s kuchyňskou částí s novou kuchyňskou linkou vybavenou moderními spotřebiči ( varná deska, trouba, vestavěná lednice s mrazákem a myčka). Dále byt nabízí dvě samostatné ložnice (12,21m2; 11,08m2) a moderní koupelnu (4,02m2) s komfortním sprchovým koutem a toaletou, další samostatnou toaletu a komoru (1,40m2). Součást vybavení: vestavěné šatní skříně také v ložnicích. Každá místnost má samostatný vstup z chodby. Možnost dodat pračku/sušičku. Podlahy: vinylová a keramická dlažba. Topení v bytě: podlahové. K bytu náleží sklep. K dispozici je i kolárna a kočárkárna.

Interiér bytu poskytuje přívětivou atmosféru, která ocení především ti, kteří hledají pohodlí ve středu městského ruchu. Díky velkým oknům je zde dostatek denního světla. Celkový stav bytu je po rekonstrukci, což zaručuje moderní vzhled a funkčnost vybavení. Poloha bytu je ideální pro ty, kteří hledají život v centru metropole. Václavské náměstí nabízí množství možností kulturního vyžití, obchodů, restaurací a kaváren. Z hlediska dopravní dostupnosti je lokalita naprosto ideální, v blízkosti se nachází stanice metra i množství tramvajových a autobusových linek, které vám umožní pohodlný přístup do různých částí Prahy.

Zálohové poplatky za služby a energie (včetně topení) činí 6.500, Kč/měsíčně. Elektřinu za byt hradí nájemce přímo dodavateli. Vratná kauce 2 platby nájmů. Provize RK.
Možnost pronájmu parkovacího stání v garážích, v blízkém okolí formou zakladače za poplatek, dle volných kapacit.

Byt nelze pronajímat na krátkodobý pronájem, ani za účelem Airbnb, Booking, nebo dalším podpronajímaním.

Parametry bytu

Cena
34 900 Kč /za měsíc
Poznámka k ceně
Poplatky za služby a energie se hradí zvlášť
Aktualizováno
24. 3. 2026
Adresa
Václavské náměstí, Praha, Nové Město
ID
976740
Stavba
Cihlová
Stav objektu
Po rekonstrukci
Patro
2.
Vybaveno
Částečně
Vlastnictví
Osobní
Užitná plocha
70 m2
Podlahová plocha
69 m2
Třída energetické náročnosti
G - Mimořádně nehospodárná
Plyn
Plynovod
Odpad
Veřejná kanalizace
Doprava
Silnice, MHD
Voda
Vodovod
Topné těleso
Podlahové vytápění
Garáž
Sklep
Výtah

Kontaktovat makléře

Realitní kancelář

Metropolitan Estates, s.r.o.

Vinohradská 939/39, Praha, Vinohrady

Chystáte se prodat nemovitost?
Pomůžeme Vám!

Máte zájem o tento byt?

Tímto, v souladu s nařízením Evropského parlamentu a Rady (EU) 2016/679, v platném znění, prohlašuji, že mi je alespoň 16 let a uděluji tak svůj souhlas se zpracováním zadaných údajů (jméno, telefon, e-mail, ip adresa) společnosti B3 Technology, s.r.o., IČ: 07330600, se sídlem Novostavby 126/23, 435 11 Lom (správce dat), za účelem předání dotazu z tohoto formuláře Vámi vybranému inzerentovi a zpětného kontaktování mé osoby. Osobní údaje bude správce zpracovávat manuálně i automaticky přímo prostřednictvím svých zaměstnanců. Informace předané tímto formulářem budou uloženy v databázi správce maximálně po dobu 10 let. Odvolání souhlasu s uložením a zpracováním poskytnutých dat lze e-mailem na info@videobydleni.cz. V případě podezření na neoprávněné použití Vámi poskytnutých údajů máte právo předat podnět k šetření Úřadu pro ochranu osobních údajů. Více informací
Chystáte se prodat nemovitost?
Pomůžeme Vám!

Inzerát si prohlédlo 0 lidí

Prodejce

Eva Cinculová

Eva Cinculová

Hlídací pes

Chcete dostávat emailem podobné nabídky pronájmu bytů 3+kk v Praze 1?

Podobné nemovitosti


Nevyhovuje Vám typ bytu? Podívejte se na jiné kategorie bytů.


Vybrané články z našeho blogu