Pronájem bytu 2+kk, Brno, Rozdrojovická, 51 m2

Rozdrojovická, Brno

20 000 Kč /za měsíc Získejte výhodnou HYPOTÉKU

(+ parkování ,energie a služby, peněžitá jistota + provize RK)

Prémioví partneři v Brně

Informace k bytu

Hledáte únik z městského shonu, ale chcete zůstat v dosahu Brna? Nabízíme k pronájmu nadstandardně vybavený byt v areálu Neptun, situovaném v žádané části Brněnské přehrady (mezi hotely Maximus Resort a Fontána).

Tento byt pro Vás nebude jen místo k přespání, ale jako nájemce máte k dispozici vnitřní saunu a bazén přímo v objektu,tenisový kurt pro aktivní odpočinek, bezpečí uzavřeného, oploceného areálu s bránou na dálkové ovládání.

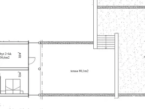
Dispozice a vybavení: byt o rozloze 51m2 se nachází v 1. NP a jeho největší dominantou je velkorysá terasa (80 m²) s navazující soukromou zahradou (214 m²). Byt je kompletně zařízen nábytkem a spotřebiči, připraven k okamžitému nastěhování. Obývací pokoj 26m2 a ložnice 13m2 jsou orientovány na jih s uklidňujícím výhledem na hladinu přehrady. Předokenní žaluzie s elektrickým pohonem slouží pro dokonalé soukromí i stínění. Sklep je umístěn v suterénu domu, možnost pronájmu parkovacího stání za 1 500,-Kč/měs.

Mimo nájemné bude nájemce hradit všechny poplatky spojené s bytem, které v měsíčních zálohách činí 3 468,-Kč/měs. + měřidlo el. energie bude přepsáno na nájemce. Možnost napojení na internet a televizi (smlouva mezi poskytovatelem a nájemcem). Majitel požaduje kauci. Provize RK ve výši jednoho nájmu + DPH.

Areál Neptun poskytuje klidné bydlení v nádherném prostředí s mnoha možnostmi sportovního a rekreačního vyžití, ať již přímo v areálu nebo v blízkém okolí (např. cyklostezky, beach volejbalová hřiště, tenisové kurty, golfové hřiště, zoo, hrad Veveří). V docházkové vzdálenosti najdete vyhlášené wellness Infinit Maximus, sama Brněnská přehrada nabízí vyžití v každém ročním období – od letního koupání po zimní bruslení.

Vhodné pro jednu, max. dvě osoby. Byt není vhodný k užívání pro chovatele zvířat.

Majitel hledá nájemce, který ocení výjimečnost tohoto místa a bude o byt i zahradu řádně dbát a dodržovat ustanovení nájemní smlouvy.

Volné ihned.

Parametry bytu

Cena
20 000 Kč /za měsíc
Poznámka k ceně
+ parkování ,energie a služby, peněžitá jistota + provize RK
Aktualizováno
24. 3. 2026
Adresa
Rozdrojovická, Brno
ID
18838
Stavba
Cihlová
Stav objektu
Velmi dobrý
Patro
1.
Vlastnictví
Osobní
Užitná plocha
51 m2
Třída energetické náročnosti
C - Úsporná
Sklep
Terasa
Parkování

Kontaktovat makléře

Realitní kancelář

Logo FIEDLER REALITY s.r.o.

FIEDLER REALITY s.r.o.

Charvatská 1385/8, Brno, Královo Pole

Chystáte se prodat nemovitost?
Pomůžeme Vám!

Máte zájem o tento byt?

Tímto, v souladu s nařízením Evropského parlamentu a Rady (EU) 2016/679, v platném znění, prohlašuji, že mi je alespoň 16 let a uděluji tak svůj souhlas se zpracováním zadaných údajů (jméno, telefon, e-mail, ip adresa) společnosti B3 Technology, s.r.o., IČ: 07330600, se sídlem Novostavby 126/23, 435 11 Lom (správce dat), za účelem předání dotazu z tohoto formuláře Vámi vybranému inzerentovi a zpětného kontaktování mé osoby. Osobní údaje bude správce zpracovávat manuálně i automaticky přímo prostřednictvím svých zaměstnanců. Informace předané tímto formulářem budou uloženy v databázi správce maximálně po dobu 10 let. Odvolání souhlasu s uložením a zpracováním poskytnutých dat lze e-mailem na info@videobydleni.cz. V případě podezření na neoprávněné použití Vámi poskytnutých údajů máte právo předat podnět k šetření Úřadu pro ochranu osobních údajů. Více informací
Chystáte se prodat nemovitost?
Pomůžeme Vám!

Inzerát si prohlédlo 0 lidí

Prodejce

Jana Paušová

Jana Paušová

Hlídací pes

Chcete dostávat emailem podobné nabídky pronájmu bytů 2+kk v Brně?

Podobné nemovitosti


Nevyhovuje Vám typ bytu? Podívejte se na jiné kategorie bytů.


Vybrané články z našeho blogu