Prodej bytu 3+1, Praha - Žižkov, Biskupcova, 88 m2

Biskupcova, Praha 3

12 990 000 Kč /za nemovitost HYPOTÉKA od 58 057 Kč /za měsíc
Prémioví partneři v Praze 3

Stěhovací služby

Výkup a prodej starého nábytku

Pojištění a finance

Informace k bytu

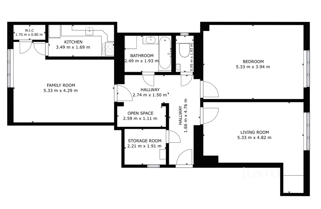
Ve výhradním zastoupení majitele Vám nabízím zprostředkování prodeje velmi příjemného světlého bytu po kompletní rekonstrukci. Byt má dispozici 3+1, plochu 88 m² a nachází se v posledním 5. patře cihlové budovy bez výtahu ve vyhledávané městské části Praha 3 – Žižkov v ulici Biskupcova.

Klíčové informace k nemovitosti:
- plocha bytu 88 m², šatna v bytě
- dispozice 3+1 s velmi praktickou dispozicí
- byt je po celkové rekonstrukci
- jednotka se nachází v posledním 5. patře cihlové budovy bez výtahu
- společný vnitroblok k užívání
- jižní orientace dvou pokojů do rozlehlého vnitrobloku se vzrostlou zelení
- severně orientovaná obývací část s kuchyní směrem do ulice

Klíčové informace k lokalitě:
- skvělá občanská vybavenost a dopravní dostupnost
- mateřská i základní škola,
- sportovní a dětská hřiště, místní kavárny, restaurace, kino Aero a Lidl
- parky Parukářka a Židovské pece, které jsou vhodné k relaxaci či sportování
- tramvajová zastávka Biskupcova a Vozovna Žižkov jsou vzdáleny pouhých 200 m
- návaznost na stanici metra Jana Želivského a Flora a centrum města

Důležité informace k prodeji:
- zájemce nehradí provizi RK!
- majitelka si vyhrazuje právo výběru nejvýhodnější nabídky v případě více zájemců
- možnost zprostředkování atraktivního financování

Průkaz energetické náročnosti není k dispozici, proto je uváděn stupeň "G".

Pokud Vás tato nemovitost zaujala, neváhejte mě kontaktovat, rád Vám tento byt osobně představím.

Parametry bytu

Cena
12 990 000 Kč /za nemovitost Spočítat hypotéku
Aktualizováno
31. 3. 2026
Adresa
Biskupcova, Praha 3
ID
J12500
Stavba
Cihlová
Stav objektu
Po rekonstrukci
Patro
6. z 6
Vybaveno
Částečně
Typ objektu
Patrový
Lokalita objektu
Klidná část obce
Vlastnictví
Osobní
Užitná plocha
88 m2
Podlahová plocha
88 m2
Třída energetické náročnosti
G - Mimořádně nehospodárná
Odpad
Veřejná kanalizace
Topení
Ústřední elektrické
Topné těleso
Radiátory
Zdroj teplé vody
Bojler - elektro
Výtah
Bezbarierový přístup

Kontaktovat makléře

Realitní kancelář

Logo JUSTO Česká republika

JUSTO Česká republika

Korunní 2569/108, Vinohrady, Praha

Chystáte se prodat nemovitost?
Pomůžeme Vám!

Máte zájem o tento byt?

Tímto, v souladu s nařízením Evropského parlamentu a Rady (EU) 2016/679, v platném znění, prohlašuji, že mi je alespoň 16 let a uděluji tak svůj souhlas se zpracováním zadaných údajů (jméno, telefon, e-mail, ip adresa) společnosti B3 Technology, s.r.o., IČ: 07330600, se sídlem Novostavby 126/23, 435 11 Lom (správce dat), za účelem předání dotazu z tohoto formuláře Vámi vybranému inzerentovi a zpětného kontaktování mé osoby. Osobní údaje bude správce zpracovávat manuálně i automaticky přímo prostřednictvím svých zaměstnanců. Informace předané tímto formulářem budou uloženy v databázi správce maximálně po dobu 10 let. Odvolání souhlasu s uložením a zpracováním poskytnutých dat lze e-mailem na info@videobydleni.cz. V případě podezření na neoprávněné použití Vámi poskytnutých údajů máte právo předat podnět k šetření Úřadu pro ochranu osobních údajů. Více informací
Chystáte se prodat nemovitost?
Pomůžeme Vám!
Theleadway banner

Inzerát si prohlédlo 59 lidí

Prodejce

Ing. Milan Šámal

Ing. Milan Šámal

Hlídací pes

Chcete dostávat emailem podobné nabídky prodeje bytů 3+1 v Praze 3?

Podobné nemovitosti


Nevyhovuje Vám typ bytu? Podívejte se na jiné kategorie bytů.


Vybrané články z našeho blogu