Prodej rodinného domu, Novalja, Chorvatsko, 117 m2 (ID: 4216707)

Novalja

11 797 853 Kč /za nemovitost
Prémioví partneři

Informace k domu

CHORVATSKO-NEMOVITOSTI.cz nabízí slunečný třípokojový dům 117m2 s terasou,zahradou a krásným výhledem na okolí. Dům je klimatizovaný, má velikost 117m2, má výbornou polohu - stejnou vzdálenost k moři a k centru města tj.150m. Před domem jsou parkovací místa. Nedaleko možnost nákupu potravin. Do města Novalja se dostanete pohodlnou kvalitní silnicí z trajektu nebo z mostu, spojující pevninu a ostrov Pag. Podrobně o apartmánu:

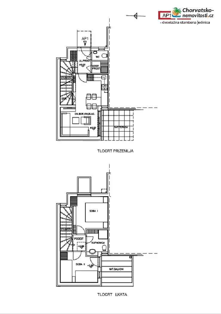
Třípokojový řadový dům (AP2) na prodej, dům se zahradou a terasou na výjimečném místě v Novalji, nedaleko pláží Vrtić a Lokunje.

Dům má dvě podlaží, tři pokoje, koupelnu, dvě toalety, 2 terasy, zahradu s kamenným grilem, 2 parkovací stání...
Celková plocha 117,45 m2.
Jen 150 metrů od pláží Vrtić a Lokunje.
Novostavba.

Novalja je město a přímořské letovisko v Chorvatsku na severní straně ostrova Pag. Novalja po městě Pag je druhým největším městem na ostrově. Je též největším městem na části Pagu připadající Licko-senjské župě. V roce 2001 žilo ve městě 2 078 obyvatel, v celé opčině pak 3 335 obyvatel. Novalja je známá především díky své pláži Zrče, která díky čistotě získala modrou vlajku. Mezi sporty zde patří vodní lyžování,wakeboarding,bungee jumping a jízda na vodním skůtru.

Ostrov Pag je známý díky teplému klimatu a blízkostí k České republice - Brno 750km po dálnici. Na ostrov se dostanete trajektem i po mostě, najdete zde benzínové pumpy, obchody, stavebniny a prodejny hobby doplňků. Jsou zde také restaurace, bary, diskotéky a mariny pro ukotvení lodí skůtrů atd. Na Pagu najdete výborné Pažské sýry, speciální krajky nebo výrobu solných přípravků.

Veřejné služby
Voda
Elektro
Kanalizace
Vytápění a chlazení: Systém vytápění, klimatizace
Klimatizace
Certifikáty
Energetická třída: Energetický certifikát
Stavební povolení
Kolaudační rozhodnutí

Info:
Vzdálenost od moře: 150 m
Most, který spojuje ostrov pevninu je zdarma
Obchody
Restaurace
Služby města a kulturní centrum
Parkování

Parametry domu

Cena
11 797 853 Kč /za nemovitost
Aktualizováno
24. 3. 2026
Adresa
Novalja
ID
250
Stavba
Panelová
Stav objektu
Novostavba
Užitná plocha
117 m2
Plocha pozemku
130 m2
Třída energetické náročnosti
D - Méně úsporná
Elektřina
230V
Plyn
Individuální
Odpad
Veřejná kanalizace
Komunikace
Asfaltová
Telekomunikace
Internet
Doprava
Silnice
Voda
Vodovod
Parkování

Kontaktovat makléře

Máte zájem o tento dům?

Tímto, v souladu s nařízením Evropského parlamentu a Rady (EU) 2016/679, v platném znění, prohlašuji, že mi je alespoň 16 let a uděluji tak svůj souhlas se zpracováním zadaných údajů (jméno, telefon, e-mail, ip adresa) společnosti B3 Technology, s.r.o., IČ: 07330600, se sídlem Novostavby 126/23, 435 11 Lom (správce dat), za účelem předání dotazu z tohoto formuláře Vámi vybranému inzerentovi a zpětného kontaktování mé osoby. Osobní údaje bude správce zpracovávat manuálně i automaticky přímo prostřednictvím svých zaměstnanců. Informace předané tímto formulářem budou uloženy v databázi správce maximálně po dobu 10 let. Odvolání souhlasu s uložením a zpracováním poskytnutých dat lze e-mailem na info@videobydleni.cz. V případě podezření na neoprávněné použití Vámi poskytnutých údajů máte právo předat podnět k šetření Úřadu pro ochranu osobních údajů. Více informací
Chystáte se prodat nemovitost?
Pomůžeme Vám!

Inzerát si prohlédlo 1 lidí

Prodejce

Monika Adamíková

Monika Adamíková

Hlídací pes

Chcete dostávat emailem podobné nabídky prodeje rodinných domů?

Podobné nemovitosti


Nevyhovuje Vám typ domu? Podívejte se na jiné kategorie domů.


Vybrané články z našeho blogu