Prodej rodinného domu, Psáry, 97 m2

Psáry, Dolní Jirčany

8 799 200 Kč /za nemovitost HYPOTÉKA od 39 327 Kč /za měsíc

(včetně DPH)

Prémioví partneři v Psárech

Informace k domu

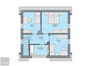
Prodám nízkoenergetický rodinný dům v Dolních Jirčanech s podlahovou plochu 96,7 m². Jedná se o pravou sekci dvojdomu. Prodávaná bytová jednotka má dispozici 4+1 a poskytuje tak dostatečný prostor pro spokojený rodinný život.

Samozřejmostí každé jednotky je vlastní vchod. Jednotky jsou oddělené izolací a nemají společné stěny. Vzájemné vztahy k jednotce i pozemku budou upravené prohlášením vlastníka.

Rodinný dům je určen pro pohodlný život 4 členné rodiny. Bohatý vnitřní prostor zahrnuje v přízemí obývací pokoj s prakticky odděleným kuchyňským koutem, v patře ložnici a 2 dětské pokoje. Součástí rodinného domu je i samostatná toaleta a samostatná koupelna.

Dům bude za uvedenou cenu kompletně stavebně dokončen (včetně krbového komínu) a připraven k okamžitému nastěhování. Vnější i vnitřní provedení domu provedeme dle Vašeho individuálního výběru.

Podmínkou prodeje je současný prodej levé sekce rodinného domu (tj. smlouvy na realizaci staveb budou uzavřeny současně), a dále schválený úvěr pro oba kupující (pravé a levé sekce) u Komerční banky, který bude realizovaný prostřednictvím financování Canaba.

K patě pozemku jsou přivedeny tyto inženýrské sítě: rozvody NN, kanalizace, vodovod, plynovod.

Uvedená cena je včetně pozemku, typové základové desky a DPH. Doba výstavby 4 - 5 měsíců od vydání stavebního povolení.

V obci je kompletní občanská vybavenost – školka, škola, obchody, restaurace, a také skvělé možnosti pro sport a volný čas.

Parametry domu

Cena
8 799 200 Kč /za nemovitost Spočítat hypotéku
Poznámka k ceně
včetně DPH
Aktualizováno
25. 3. 2026
Adresa
Psáry, Dolní Jirčany
ID
01522
Stavba
Cihlová
Stav objektu
Projekt
Druh objektu
Samostatný
Užitná plocha
97 m2
Plocha pozemku
497 m2
Třída energetické náročnosti
B - Velmi úsporná
Ukazatel energetické náročnosti
102 kWh/m2 za rok

Kontaktovat makléře

Realitní kancelář

CANABA a.s.

Štětkova 1001/5, Praha, Nusle

Chystáte se prodat nemovitost?
Pomůžeme Vám!

Máte zájem o tento dům?

Tímto, v souladu s nařízením Evropského parlamentu a Rady (EU) 2016/679, v platném znění, prohlašuji, že mi je alespoň 16 let a uděluji tak svůj souhlas se zpracováním zadaných údajů (jméno, telefon, e-mail, ip adresa) společnosti B3 Technology, s.r.o., IČ: 07330600, se sídlem Novostavby 126/23, 435 11 Lom (správce dat), za účelem předání dotazu z tohoto formuláře Vámi vybranému inzerentovi a zpětného kontaktování mé osoby. Osobní údaje bude správce zpracovávat manuálně i automaticky přímo prostřednictvím svých zaměstnanců. Informace předané tímto formulářem budou uloženy v databázi správce maximálně po dobu 10 let. Odvolání souhlasu s uložením a zpracováním poskytnutých dat lze e-mailem na info@videobydleni.cz. V případě podezření na neoprávněné použití Vámi poskytnutých údajů máte právo předat podnět k šetření Úřadu pro ochranu osobních údajů. Více informací
Chystáte se prodat nemovitost?
Pomůžeme Vám!

Inzerát si prohlédlo 2 lidí

Prodejce

Mgr. Karel Křížek

Mgr. Karel Křížek

Hlídací pes

Chcete dostávat emailem podobné nabídky prodeje rodinných domů v Psárech?

Podobné nemovitosti


Nevyhovuje Vám typ domu? Podívejte se na jiné kategorie domů.


Vybrané články z našeho blogu