Prodej rodinného domu, Rosice, Malackova, 129 m2

Malackova, Rosice

11 390 000 Kč /za nemovitost HYPOTÉKA od 50 906 Kč /za měsíc
Prémioví partneři v Rosicích

Informace k domu

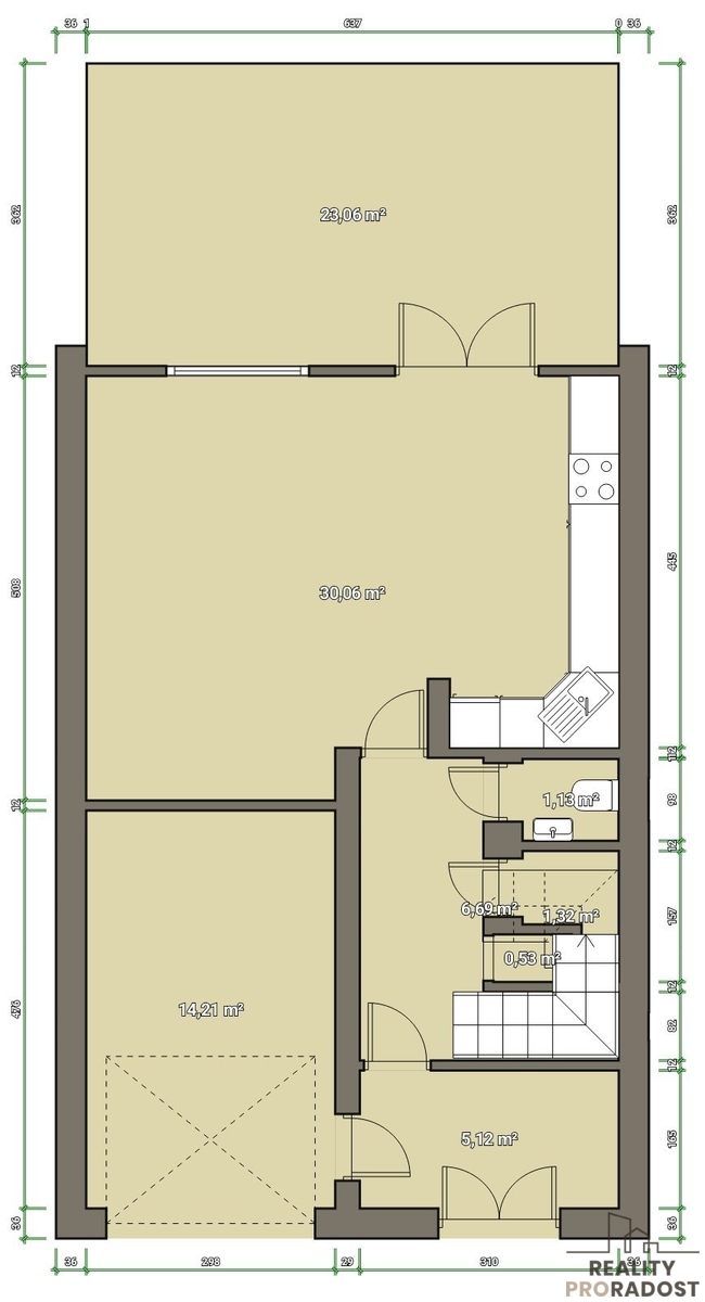
Nabízíme k prodeji moderní řadový rodinný dům 4+kk s garáží v žádané a klidné lokalitě Rosic, na ulici Malackova. Nemovitost byla kolaudována v roce 2010 a díky kvalitnímu provedení i současnému stavu splňuje nároky na komfortní rodinné bydlení bez nutnosti dalších investic.

Jedná se o cihlový, zateplený dům dispozičně řešený do dvou podlaží. Vytápění i ohřev vody zajišťuje plynový kotel, který byl v loňském roce vyměněn, což přispívá k úspornému provozu domácnosti.

V přízemí domu se nachází prostorný a světlý obývací pokoj s kuchyňským koutem (cca 30 m²), který tvoří hlavní obytnou část domu. Francouzské okno přirozeně propojuje interiér s venkovním prostorem, kde můžete relaxovat pod pergolou nebo si užívat slunečné dny v okrasné části zahrady. Dále je zde, vstupní chodba, technické zázemí, samostatné WC a přímý vstup do garáže.

V patře se nachází klidová zóna domu – ložnice, dva samostatné pokoje (cca 12 m²) a menší pokoj (cca 6 m²), který může sloužit jako šatna, pracovna nebo dětský pokoj. K dispozici je koupelna s vanou a samostatné WC. Výhodou jsou také praktické úložné prostory.

Celková výměra pozemku včetně okrasné předzahrádky, parkovacího stání a zahrady činí 193 m² a nabízí ideální kombinaci soukromí a nenáročné údržby.

Rosice patří dlouhodobě mezi velmi vyhledávané lokality díky výborné dostupnosti do Brna a zároveň příjemnému prostředí pro rodinný život. Samozřejmostí je kompletní občanská vybavenost v místě.

Hlavní benefity:
klidná a vyhledávaná lokalita Rosice s výbornou dostupností do Brna
moderní cihlový dům (kolaudace 2010) ve výborném stavu
dispozice 4+kk, dvě podlaží, garáž + parkovací stání
přímý vstup na zahradu s pergolou
pozemek 193 m² – ideální na údržbu i relax

Energetický štítek PENB je ve fázi zpracování, proto je v inzerci uvedena energetická třída G.
V případě financování hypotečním úvěrem vám rádi pomůžeme.

Pro více informací nebo sjednání prohlídky neváhejte kontaktovat makléře.

Parametry domu

Cena
11 390 000 Kč /za nemovitost Spočítat hypotéku
Aktualizováno
25. 3. 2026
Adresa
Malackova, Rosice
ID
29377
Stavba
Cihlová
Stav objektu
Velmi dobrý
Vybaveno
Částečně
Typ objektu
Patrový
Druh objektu
Řadový
Lokalita objektu
Klidná část obce
Užitná plocha
129 m2
Zastavěná plocha
79 m2
Podlahová plocha
193 m2
Plocha pozemku
125 m2
Plocha zahrady
68 m2
Třída energetické náročnosti
G - Mimořádně nehospodárná
Plyn
Plynovod
Odpad
Veřejná kanalizace
Komunikace
Asfaltová
Doprava
Vlak, Dálnice, Silnice, MHD, Autobus
Voda
Vodovod
Garáž
Převod do OV
Parkování

Kontaktovat makléře

Máte zájem o tento dům?

Tímto, v souladu s nařízením Evropského parlamentu a Rady (EU) 2016/679, v platném znění, prohlašuji, že mi je alespoň 16 let a uděluji tak svůj souhlas se zpracováním zadaných údajů (jméno, telefon, e-mail, ip adresa) společnosti B3 Technology, s.r.o., IČ: 07330600, se sídlem Novostavby 126/23, 435 11 Lom (správce dat), za účelem předání dotazu z tohoto formuláře Vámi vybranému inzerentovi a zpětného kontaktování mé osoby. Osobní údaje bude správce zpracovávat manuálně i automaticky přímo prostřednictvím svých zaměstnanců. Informace předané tímto formulářem budou uloženy v databázi správce maximálně po dobu 10 let. Odvolání souhlasu s uložením a zpracováním poskytnutých dat lze e-mailem na info@videobydleni.cz. V případě podezření na neoprávněné použití Vámi poskytnutých údajů máte právo předat podnět k šetření Úřadu pro ochranu osobních údajů. Více informací
Chystáte se prodat nemovitost?
Pomůžeme Vám!

Inzerát si prohlédlo 2 lidí

Prodejce

Jitka Jedličková

Jitka Jedličková

Hlídací pes

Chcete dostávat emailem podobné nabídky prodeje rodinných domů v Rosicích (okr. Brno-venkov)?

Podobné nemovitosti


Nevyhovuje Vám typ domu? Podívejte se na jiné kategorie domů.


Vybrané články z našeho blogu