Pronájem bytu 1+kk, Praha - Žižkov, Olgy Havlové, 32 m2 (ID: 4217786)

Olgy Havlové, Praha, Žižkov

19 900 Kč /za měsíc Získejte výhodnou HYPOTÉKU
Prémioví partneři v Praze 3

Stěhovací služby

Výkup a prodej starého nábytku

Informace k bytu

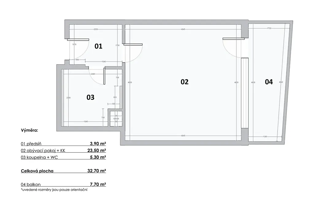
K okamžitému pronájmu nabízíme kompletně vybavený byt 1+KK o celkové ploše 32,7 m2, ve 2. nadzemním podlaží moderního bytového domu v lokalitě Žižkov. Byt se nachází v rezidenčním projektu Byty Na Vackově.

Dominantou bytu je obývací pokoj s kuchyňským koutem o celkové výměře 23,5 m2. Součástí kuchyňské linky jsou vestavěné spotřebiče indukční varná deska, trouba, mikrovlnná trouba, myčka a lednice s mrazákem.

Obytná část je zařízena prostornou vestavěnou šatní skříní s dostatkem úložného prostoru a manželskou postelí. Další úložné prostory zajišťují vestavěné skříně v předsíni.

Koupelna je vybavena pračkou se sušičkou.


Lokalita nabízí veškerou občanskou vybavenost a dobrou dopravní dostupnost do centra.


Výše nájemného: 19.900 Kč/měs
Zúčtovatelné zálohy: 2.445 Kč/měs za 1 osobu
El. energie se přepisuje na nájemníka
Výše jistoty: 39.800 Kč
Provize RK: 10.000 Kč + DPH

Parametry bytu

Cena
19 900 Kč /za měsíc
Aktualizováno
25. 3. 2026
Adresa
Olgy Havlové, Praha, Žižkov
ID
974695
Stavba
Smíšená
Stav objektu
Novostavba
Patro
2. z 10
Vybaveno
Ano
Vlastnictví
Osobní
Užitná plocha
32 m2
Podlahová plocha
34 m2
Třída energetické náročnosti
B - Velmi úsporná
Elektřina
230V
Odpad
Veřejná kanalizace
Komunikace
Asfaltová
Telekomunikace
Internet
Doprava
MHD
Voda
Vodovod
Balkon
Výtah

Kontaktovat makléře

Máte zájem o tento byt?

Tímto, v souladu s nařízením Evropského parlamentu a Rady (EU) 2016/679, v platném znění, prohlašuji, že mi je alespoň 16 let a uděluji tak svůj souhlas se zpracováním zadaných údajů (jméno, telefon, e-mail, ip adresa) společnosti B3 Technology, s.r.o., IČ: 07330600, se sídlem Novostavby 126/23, 435 11 Lom (správce dat), za účelem předání dotazu z tohoto formuláře Vámi vybranému inzerentovi a zpětného kontaktování mé osoby. Osobní údaje bude správce zpracovávat manuálně i automaticky přímo prostřednictvím svých zaměstnanců. Informace předané tímto formulářem budou uloženy v databázi správce maximálně po dobu 10 let. Odvolání souhlasu s uložením a zpracováním poskytnutých dat lze e-mailem na info@videobydleni.cz. V případě podezření na neoprávněné použití Vámi poskytnutých údajů máte právo předat podnět k šetření Úřadu pro ochranu osobních údajů. Více informací
Chystáte se prodat nemovitost?
Pomůžeme Vám!

Inzerát si prohlédlo 0 lidí

Prodejce

Jana Folkmannová

Jana Folkmannová

Hlídací pes

Chcete dostávat emailem podobné nabídky pronájmu bytů 1+kk v Praze 3?

Podobné nemovitosti


Nevyhovuje Vám typ bytu? Podívejte se na jiné kategorie bytů.


Vybrané články z našeho blogu