Prodej obchodního prostoru, Doksy, Panská, 270 m2

Panská, Doksy

5 990 000 Kč /za nemovitost HYPOTÉKA od 26 772 Kč /za měsíc
Prémioví partneři v Doksech

Rekonstrukce

Úklidové služby

Pojištění a finance

Informace k nemovitosti

Velké výlohy do ulice, náměstí pár kroků a dvě patra obchodních příležitostí. Chcete podnikat na adrese, kterou zákazníci nepřehlédnou? Nebo byste radši investici, která se začne vracet hned od prvního dne? Tak přesně na vás čeká v Doksech tenhle dům.

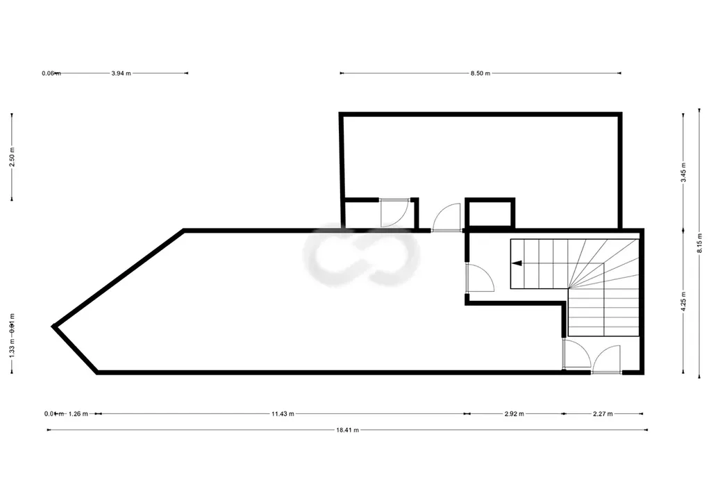
Dům má celkovou výměru 270 m² a dvě patra, každé o ploše 135 m². V přízemí je prodejna se skladovým zázemím, další obchodní a skladové prostory pokračují v patře přístupném po schodišti.

Prodejna má dvě velké výlohy do Panské ulice. Obchod je vidět i z náměstí – zákazníci vás nemůžou minout.

Aktuálně tu je železářství a prodejna domácích potřeb, ale prostory snadno předěláte i na zázemí pro služby nebo kanceláře. A v patře může klidně vzniknout ubytování pro turisty mířící k Máchovu jezeru.

Jestli vás spíš než vlastní podnikání láká vidina zajímavé investice, můžete objekt pronajmout. Stávající nájemník má zájem v nájmu pokračovat, takže máte příjem jistý od prvního dne.

Dům stojí hned na kraji Panské ulice a je tak dobře dostupný přímo z náměstí. Zastávka autobusu je asi 2 minuty chůze.

Technické parametry:
Zastavěná plocha je 154 m2. Objekt je vytápěný plynem.

Prodávající si vyhrazuje právo vybrat kupujícího na základě jím zvolených kritérií.

Parametry nemovitosti

Cena
5 990 000 Kč /za nemovitost Spočítat hypotéku
Aktualizováno
19. 5. 2026
Adresa
Panská, Doksy
ID
0163
Stavba
Cihlová
Stav objektu
Velmi dobrý
Užitná plocha
270 m2
Zastavěná plocha
146 m2

Kontaktovat makléře

Máte zájem o tuto nemovistost?

Tímto, v souladu s nařízením Evropského parlamentu a Rady (EU) 2016/679, v platném znění, prohlašuji, že mi je alespoň 16 let a uděluji tak svůj souhlas se zpracováním zadaných údajů (jméno, telefon, e-mail, ip adresa) společnosti B3 Technology, s.r.o., IČ: 07330600, se sídlem Novostavby 126/23, 435 11 Lom (správce dat), za účelem předání dotazu z tohoto formuláře Vámi vybranému inzerentovi a zpětného kontaktování mé osoby. Osobní údaje bude správce zpracovávat manuálně i automaticky přímo prostřednictvím svých zaměstnanců. Informace předané tímto formulářem budou uloženy v databázi správce maximálně po dobu 10 let. Odvolání souhlasu s uložením a zpracováním poskytnutých dat lze e-mailem na info@videobydleni.cz. V případě podezření na neoprávněné použití Vámi poskytnutých údajů máte právo předat podnět k šetření Úřadu pro ochranu osobních údajů. Více informací
Chystáte se prodat nemovitost?
Pomůžeme Vám!
Theleadway banner

Inzerát si prohlédlo 17 lidí

Prodejce

Ovečka a Vlčková

Ovečka a Vlčková

Hlídací pes

Chcete dostávat emailem podobné nabídky prodeje obchodních prostor v Doksech (okr. Česká Lípa)?

Podobné nemovitosti


Nevyhovuje Vám typ nemovitosti? Podívejte se na jiné kategorie komerčních.


Vybrané články z našeho blogu