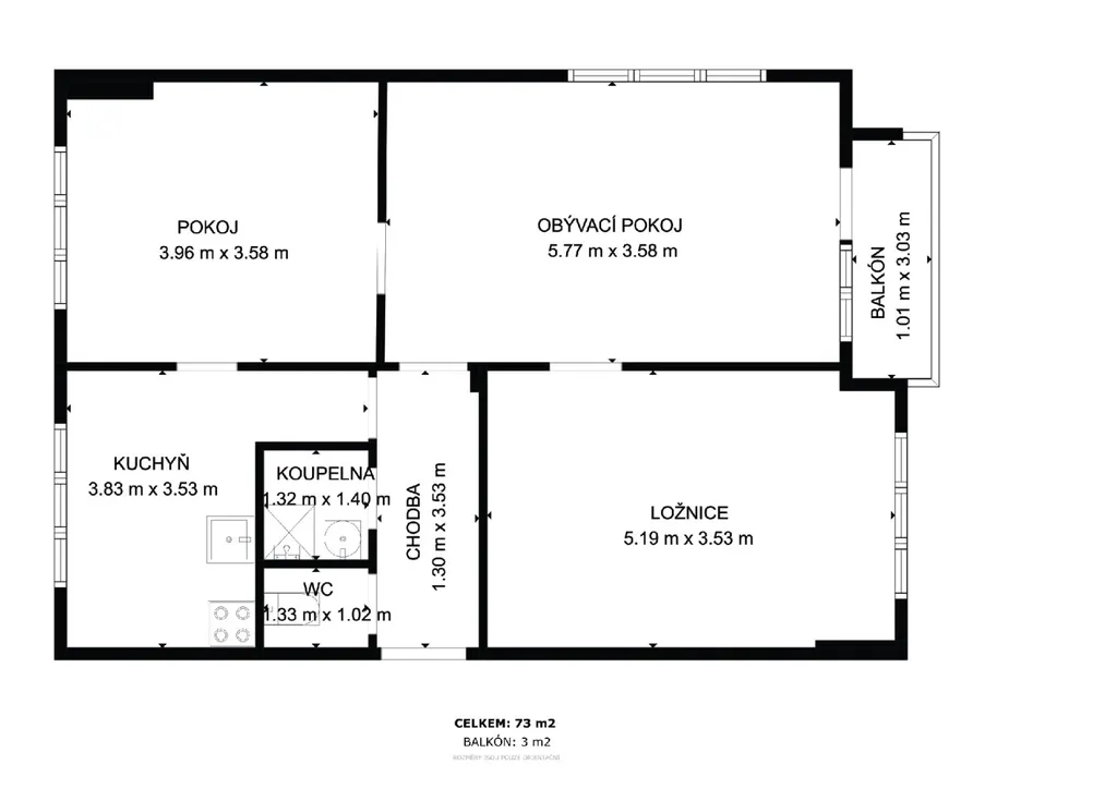
Prodej bytu 3+1, Písek - Budějovické Předměstí, Dr. M. Horákové, 71 m2

Dr. M. Horákové, Písek, Budějovické Předměstí

4 550 000 Kč /za nemovitost HYPOTÉKA od 20 336 Kč /za měsíc
Prémioví partneři v Písku

Výkup a prodej starého nábytku

Pojištění a finance

Informace k bytu

Nabízíme k prodeji útulný byt o dispozici 3+1 (71m2) v ulici Dr. Horákové 1642 v Písku, který se nachází v klidné čtvrti v 6/7 patře, zatepleném domě s plastovými okny, novým výtahem
a tichými sousedy, což zajišťuje příjemné a nerušené bydlení.
Velkou předností je balkon (3m2) a také výjimečná poloha – jen pár kroků od centra města, přitom obklopený zelení, kam až oko dohlédne. Z útulného balkonu se otevírá pohled na vzrostlé stromy a tiché zákoutí, ideální pro chvíle odpočinku. Místo, kde je možno otevřít se světu a nechat vstoupit jižní slunce do vašeho dne.
Byt disponuje třemi samostatnými, světlými a vzdušnými místnostmi, které nabízejí ideální rovnováhu mezi soukromím a otevřeným prostorem. Interiér vás hned při vstupu prostornou předsíní okouzlí vůní zachovalých broušených parket, které dodávají prostoru teplo, přirozenou eleganci a příjemnou atmosféru domova.
K bytu náleží také sklep (1,3m2), který poskytne dostatek úložných prostor. V přízemí domu je také bezpečná místnost pro kola a kočárky. Parkování je možné přímo před domem. Uvedené rozměry jsou orientační. PENB "B".
Vše, co potřebujete ke spokojenému životu, máte na dosah – kavárny, obchody, kompletní občanskou vybavenost i příjemné procházky a cyklostezky podél řeky Otavy, nedaleký přírodní park Písecké hory. Skvělá dostupnost do centra města.
Byt je volný ihned a je vhodný pro každého, kdo hledá víc než jen čtyři stěny.
Klikli jste ze zvědavosti?
Zavolejte nám a domluvte si prohlídku – možná odejdete s plánem na stěhování.

Parametry bytu

Cena
4 550 000 Kč /za nemovitost Spočítat hypotéku
Aktualizováno
6. 5. 2026
Adresa
Dr. M. Horákové, Písek, Budějovické Předměstí
ID
2026007
Stavba
Panelová
Stav objektu
Dobrý
Patro
6.
Typ objektu
Patrový
Lokalita objektu
Klidná část obce
Vlastnictví
Osobní
Užitná plocha
71 m2
Třída energetické náročnosti
B - Velmi úsporná
Elektřina
230V
Odpad
Veřejná kanalizace
Topení
Ústřední dálkové
Komunikace
Asfaltová
Doprava
Vlak, Silnice, MHD
Voda
Vodovod
Topné těleso
Radiátory
Zdroj topení
Ústřední dálkové
Zdroj teplé vody
Centrální dálkový ohřev
Balkon
Sklep
Výtah
Bezbarierový přístup

Kontaktovat makléře

Máte zájem o tento byt?

Tímto, v souladu s nařízením Evropského parlamentu a Rady (EU) 2016/679, v platném znění, prohlašuji, že mi je alespoň 16 let a uděluji tak svůj souhlas se zpracováním zadaných údajů (jméno, telefon, e-mail, ip adresa) společnosti B3 Technology, s.r.o., IČ: 07330600, se sídlem Novostavby 126/23, 435 11 Lom (správce dat), za účelem předání dotazu z tohoto formuláře Vámi vybranému inzerentovi a zpětného kontaktování mé osoby. Osobní údaje bude správce zpracovávat manuálně i automaticky přímo prostřednictvím svých zaměstnanců. Informace předané tímto formulářem budou uloženy v databázi správce maximálně po dobu 10 let. Odvolání souhlasu s uložením a zpracováním poskytnutých dat lze e-mailem na info@videobydleni.cz. V případě podezření na neoprávněné použití Vámi poskytnutých údajů máte právo předat podnět k šetření Úřadu pro ochranu osobních údajů. Více informací
Chystáte se prodat nemovitost?
Pomůžeme Vám!
Theleadway banner

Inzerát si prohlédlo 114 lidí

Prodejce

Andrea Harscher

Andrea Harscher

Hlídací pes

Chcete dostávat emailem podobné nabídky prodeje bytů 3+1 v Písku?

Podobné nemovitosti


Nevyhovuje Vám typ bytu? Podívejte se na jiné kategorie bytů.


Vybrané články z našeho blogu