Remax Monarcha

Pronájem obchodního prostoru, Olomouc, Řepčínská, 480 m2 (ID: 4218107)

Řepčínská, Olomouc

70 000 Kč /za měsíc Získejte výhodnou HYPOTÉKU

(bez DPH, + provize RK, cena k jednání)

Prémioví partneři v Olomouci

Pojištění a finance

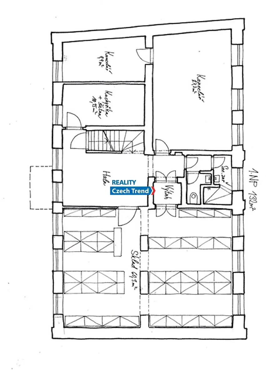
Informace k nemovitosti

Nabídka pronájmu lukrativního komerčního objektu o užitné ploše 350 m2. Jedná se o třípatrovou budovu blízko centra Olomouce v části Řepčín. Budova se nachází u frekventované komunikace a je dobře přístupná na dálnici směr Mohelnice-Brno - Ostrava. V budově je i výtah. Prostory jsou vhodné pro různé obchodní aktivity, jako například kancelář či showroom, sídlo firmy, prodejní, kancelářské, lékařské ordinace, advokátní služby, kuchyňské studio, atd. Prodejní prostory disponují velkými prosklenými plochami, což zajišťuje dostatek přirozeného světla a vytváří moderní prostředí pro vaše podnikání. K dispozici je také dostatek parkovacích míst pro vaše zákazníky a zaměstnance. Zažijte novou úroveň obchodních prostorů v Olomouci a dejte svému podnikání dostatek prostoru pro růst a rozvoj.
V přízemí jsou prodejní prostory, malá kancelář, sklad a garáž. V 1. patře jsou 1. větší a jedna menší kancelář, sklad, kuchyňka a soc. zařízení . Ve 3. patře se nachází skladovací prostor a strojovna výtahu. Budova je vytápěna třemi druhy topení - plyn, elektřina, klimatizace a je napojena na kanalizaci a vodovod + vlastní studna. Prostor lze po dohodě pronajmout i po částech.
Prostor je možno pronajmout i po částech.
Cena nájemného + DPH se bude odvíjet od velikosti prostoru, který si pronajmete + energie, kauce jeden měsíční nájem, + provize RK jeden měsíční nájem + DPH. V případě zájmu o další informace či prohlídku volejte makléře.
Po dohodě možnost pozdějšího odkupu nemovitosti.

Parametry nemovitosti

Cena
70 000 Kč /za měsíc
Poznámka k ceně
bez DPH, + provize RK, cena k jednání
Aktualizováno
14. 5. 2026
Adresa
Řepčínská, Olomouc
ID
02812
Stavba
Cihlová
Stav objektu
Dobrý
Vybaveno
Ano
Lokalita objektu
Okraj obce
Užitná plocha
480 m2
Třída energetické náročnosti
G - Mimořádně nehospodárná
Odpad
Veřejná kanalizace
Voda
Vodovod, Studna
Zdroj teplé vody
Plynový kotel
Výtah
Bezbarierový přístup

Kontaktovat makléře

Realitní kancelář

Reality Czech Trend

Wellnerova 1215/1, Olomouc, Nová Ulice

Chystáte se prodat nemovitost?
Pomůžeme Vám!

Máte zájem o tuto nemovistost?

Tímto, v souladu s nařízením Evropského parlamentu a Rady (EU) 2016/679, v platném znění, prohlašuji, že mi je alespoň 16 let a uděluji tak svůj souhlas se zpracováním zadaných údajů (jméno, telefon, e-mail, ip adresa) společnosti B3 Technology, s.r.o., IČ: 07330600, se sídlem Novostavby 126/23, 435 11 Lom (správce dat), za účelem předání dotazu z tohoto formuláře Vámi vybranému inzerentovi a zpětného kontaktování mé osoby. Osobní údaje bude správce zpracovávat manuálně i automaticky přímo prostřednictvím svých zaměstnanců. Informace předané tímto formulářem budou uloženy v databázi správce maximálně po dobu 10 let. Odvolání souhlasu s uložením a zpracováním poskytnutých dat lze e-mailem na info@videobydleni.cz. V případě podezření na neoprávněné použití Vámi poskytnutých údajů máte právo předat podnět k šetření Úřadu pro ochranu osobních údajů. Více informací
Chystáte se prodat nemovitost?
Pomůžeme Vám!
Theleadway banner

Inzerát si prohlédlo 12 lidí

Prodejce

Pavel Obšil

Pavel Obšil

Hlídací pes

Chcete dostávat emailem podobné nabídky pronájmu obchodních prostor v Olomouci?

Podobné nemovitosti


Nevyhovuje Vám typ nemovitosti? Podívejte se na jiné kategorie komerčních.


Vybrané články z našeho blogu