Pronájem bytu 3+kk, Zlín, Lorencova, 99 m2

Lorencova, Zlín

27 000 Kč /za měsíc Získejte výhodnou HYPOTÉKU

(+ energie a inkaso)

Prémioví partneři v Zlíně

Pojištění a finance

Informace k bytu

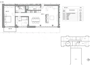
Nabízíme k pronájmu prostorný byt 3+kk o celkové ploše 99 m2, který se nachází v 9. podlaží cihlového domu na adrese Lorencova ve Zlíně. Byt je v velmi dobrém stavu a je částečně vybavený kuchyňskou linkou, lednicí, pračkou a sporákem. K bytu náleží také balkon o ploše 4 m2 a podlahové vytápění pro maximální komfort.
Nemovitost se nachází v centru obce, s výbornou dostupností MHD, příměstské dopravy, silnice a vlaku. V blízkosti se nachází veškerá občanská vybavenost, včetně škol, školek, nákupních center, restaurací, pošty, obecního úřadu, lékařů, kulturních zařízení a koupaliště.
Poplatky za služby činí 5000 Kč, výše vratné kauce je stanovena na 27000 Kč. Objekt je napojen na veřejnou kanalizaci a dálkový vodovod. Kolaudace budovy proběhla v roce 2024. Pronájem je možné od 1. dubna 2026.

Parametry bytu

Cena
27 000 Kč /za měsíc
Poznámka k ceně
+ energie a inkaso
Náklady na bydlení
elektřina: 1 000,-
Aktualizováno
12. 4. 2026
Adresa
Lorencova, Zlín
ID
00002
Stavba
Cihlová
Stav objektu
Velmi dobrý
Patro
9.
Vybaveno
Částečně
Typ objektu
Patrový
Lokalita objektu
Centrum obce
Vlastnictví
Osobní
Užitná plocha
99 m2
Podlahová plocha
99 m2
Třída energetické náročnosti
B - Velmi úsporná
Elektřina
230V
Odpad
Veřejná kanalizace
Topení
Podlahové
Komunikace
Asfaltová, Zpevněná
Doprava
Vlak, Silnice, MHD, Autobus
Voda
Vodovod
Topné těleso
Podlahové vytápění
Zdroj topení
Ústřední dálkové
Zdroj teplé vody
Centrální dálkový ohřev
Balkon
Výtah
Bezbarierový přístup

Kontaktovat makléře

Realitní kancelář

Good move s.r.o.

Dr. Absolona 132, Fryšták

Chystáte se prodat nemovitost?
Pomůžeme Vám!

Máte zájem o tento byt?

Tímto, v souladu s nařízením Evropského parlamentu a Rady (EU) 2016/679, v platném znění, prohlašuji, že mi je alespoň 16 let a uděluji tak svůj souhlas se zpracováním zadaných údajů (jméno, telefon, e-mail, ip adresa) společnosti B3 Technology, s.r.o., IČ: 07330600, se sídlem Novostavby 126/23, 435 11 Lom (správce dat), za účelem předání dotazu z tohoto formuláře Vámi vybranému inzerentovi a zpětného kontaktování mé osoby. Osobní údaje bude správce zpracovávat manuálně i automaticky přímo prostřednictvím svých zaměstnanců. Informace předané tímto formulářem budou uloženy v databázi správce maximálně po dobu 10 let. Odvolání souhlasu s uložením a zpracováním poskytnutých dat lze e-mailem na info@videobydleni.cz. V případě podezření na neoprávněné použití Vámi poskytnutých údajů máte právo předat podnět k šetření Úřadu pro ochranu osobních údajů. Více informací
Chystáte se prodat nemovitost?
Pomůžeme Vám!
Theleadway banner

Inzerát si prohlédlo 46 lidí

Prodejce

Marek Jaroš

Marek Jaroš

Hlídací pes

Chcete dostávat emailem podobné nabídky pronájmu bytů 3+kk v Zlíně?

Podobné nemovitosti


Nevyhovuje Vám typ bytu? Podívejte se na jiné kategorie bytů.


Vybrané články z našeho blogu