Prodej rodinného domu, Benešov, Hrubínova, 169 m2 (ID: 4218611)

Hrubínova, Benešov

8 950 000 Kč /za nemovitost HYPOTÉKA od 40 001 Kč /za měsíc

(konečná cena včetně právních služeb, včetně provize, včetně právního servisu)

Prémioví partneři v Benešově

Informace k domu

K prodeji řadový rodinný dům v klidné části města Benešov, v ulici Hrubínova. Nemovitost se nachází v slepé ulici s minimální fluktuací lidí a provozu, v ustálené rezidenční zástavbě rodinných domů. Díky omezenému provozu je lokalita skvělá pro rodinné bydlení – okolí domu nabízí bezpečnější prostředí pro každodenní pohyb dětí i prostor pro jejich venkovní aktivity.

Dům je zděné konstrukce s betonovými stropy typu Hurdis, je dvoupodlažní, kompletně podsklepený, s vestavěnou garáží a zahradou. Nabízí dobře řešenou dispozici vhodnou pro rodinné bydlení a zároveň prostor pro úpravy dle individuálních potřeb nového majitele bez nutnosti kompromisů.

Součástí prezentace jsou také vizualizace, které ukazují možný budoucí stav po rekonstrukci a slouží jako inspirace pro budoucí využití a uspořádání interiéru.

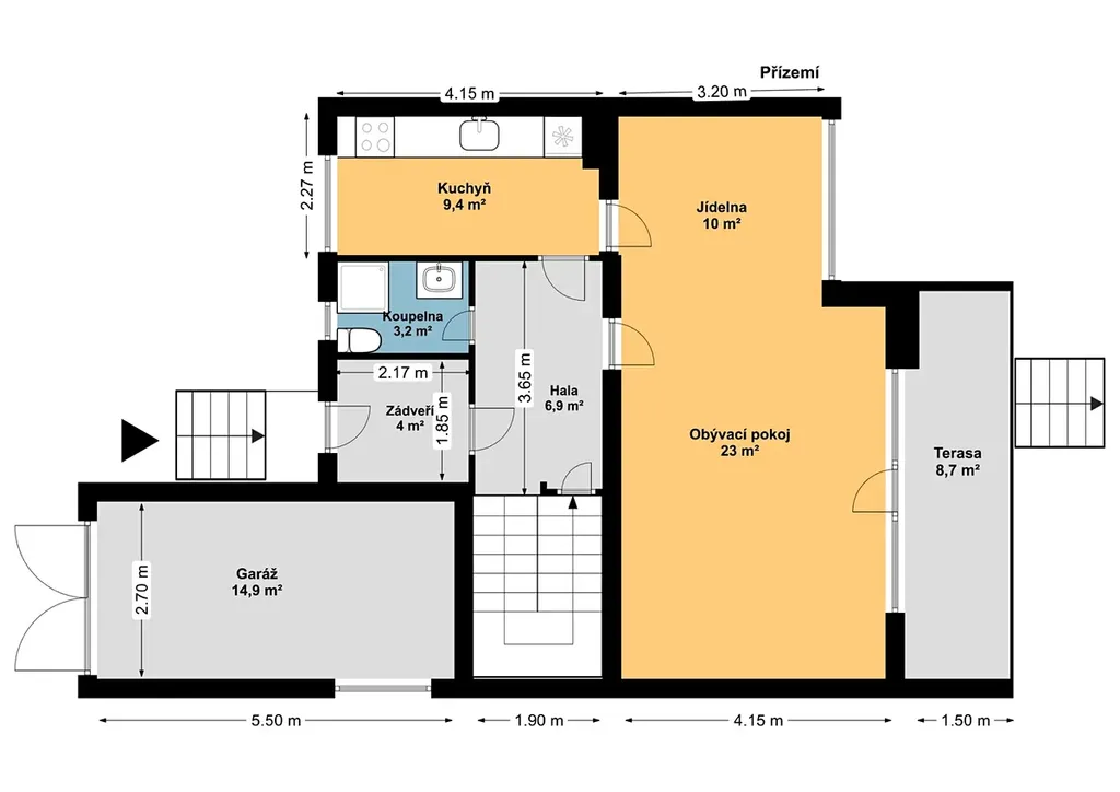
Dispozice a výměry
Celková užitná plocha domu činí 201 m², z toho obytná plocha 114,5 m². Součástí jsou dva balkony, každý o velikosti 8,7 m², sklepní prostory o výměře 54,42 m² a garáž o velikosti 14,9 m². Celková plocha pozemku je 467 m². Uvedené výměry v půdorysech mají orientační charakter a skutečný stav se může mírně lišit.

V přízemí domu se nachází obývací pokoj propojený s jídelnou se vstupem na terasu a dále na zahradu, samostatná kuchyně a koupelna s WC.

V patře jsou k dispozici čtyři samostatné pokoje, z toho dva se vstupem na balkon, dále koupelna a samostatné WC.

Suterén pak nabízí technické zázemí, kotelnu, dílnu a dostatek skladovacích prostor. Místnost se vstupem na zahradu vybízí k variabilnímu využití, například jako domácí posilovna, relaxační zóna, pracovna nebo hobby místnost dle potřeb budoucího majitele.

Garáž je přístupná přímo z interiéru domu.


Technický stav
Rodinný dům se začínal stavět v roce 1979 a kolaudován v roce 1983. Jedná se o zděnou stavbu s betonovými stropy typu Hurdis a střechou s krytinou z asfaltových pásů (IPA).
Rodinný dům je v původním technickém stavu a je určen ke kompletní rekonstrukci všech stavebních a technických prvků.
Technické prvky odpovídají době výstavby – elektroinstalace je v hliníku, rozvody vody, odpadů i vytápění jsou původní, stejně jako okna a střešní konstrukce. Vytápění je řešeno pomocí litinových radiátorů.
Stav nemovitosti zároveň představuje příležitost pro realizaci kompletní rekonstrukce dle vlastních představ.

Zahrada
Součástí nemovitosti je jižně orientovaná, slunná zahrada, která nabízí dostatek prostoru pro realizaci zahradních úprav dle vlastních představ – například terasy, venkovního posezení, dětského zázemí nebo okrasné či užitkové části.
Díky své orientaci poskytuje příjemné světelné podmínky po většinu dne a vytváří vhodné zázemí pro každodenní trávení času venku.

Parkování
Parkování je zajištěno v garáži a zároveň je možné parkovat i před domem. Vjezd do garáže je užší, odpovídající době výstavby, a je vhodný spíše pro menší až středně velká vozidla.

Inženýrské sítě
Dům je napojen na obecní vodovod, kanalizaci a elektřinu (3 fáze). Plyn je přiveden na hranici pozemku.

Lokalita
Nemovitost se nachází ve vyhledávané části města Benešov u Prahy s velmi dobrou dostupností služeb i dopravní infrastruktury.
V docházkové nebo krátké dojezdové vzdálenosti se nachází:
• nákupní centrum a obchody
• mateřské a základní školy
• zdravotnická zařízení
• restaurace, kavárny a další služby
• sportoviště a volnočasové areály

Výhodou je také velmi dobrá dostupnost do Prahy, a to jak vlakovým, tak autobusovým spojením.
Shrnutí
Klidná lokalita v slepé ulici, funkční dispozice, zděný dům s hurdis stropy, plně podsklepený objekt s garáží, slunná zahrada a možnost úprav dle vlastních představ – to vše tvoří základ pro vytvoření kvalitního rodinného bydlení.

Pro více informací nebo sjednání prohlídky mě kontaktujte.

Parametry domu

Cena
8 950 000 Kč /za nemovitost Spočítat hypotéku
Poznámka k ceně
konečná cena včetně právních služeb, včetně provize, včetně právního servisu
Aktualizováno
26. 3. 2026
Adresa
Hrubínova, Benešov
ID
00033
Stavba
Cihlová
Stav objektu
Před rekonstrukcí
Vybaveno
Ne
Druh objektu
Řadový
Lokalita objektu
Klidná část obce
Užitná plocha
169 m2
Podlahová plocha
201 m2
Plocha pozemku
467 m2
Plocha zahrady
318 m2
Třída energetické náročnosti
G - Mimořádně nehospodárná
Elektřina
230V, 400V
Plyn
Plynovod
Odpad
Veřejná kanalizace
Komunikace
Asfaltová
Telekomunikace
Telefon
Doprava
Vlak, Dálnice, Silnice, MHD, Autobus
Voda
Vodovod
Topné těleso
Radiátory
Zdroj topení
Krb, Kotel na tuhá paliva
Zdroj teplé vody
Bojler - elektro
Garáž
Sklep
Parkování

Kontaktovat makléře

Máte zájem o tento dům?

Tímto, v souladu s nařízením Evropského parlamentu a Rady (EU) 2016/679, v platném znění, prohlašuji, že mi je alespoň 16 let a uděluji tak svůj souhlas se zpracováním zadaných údajů (jméno, telefon, e-mail, ip adresa) společnosti B3 Technology, s.r.o., IČ: 07330600, se sídlem Novostavby 126/23, 435 11 Lom (správce dat), za účelem předání dotazu z tohoto formuláře Vámi vybranému inzerentovi a zpětného kontaktování mé osoby. Osobní údaje bude správce zpracovávat manuálně i automaticky přímo prostřednictvím svých zaměstnanců. Informace předané tímto formulářem budou uloženy v databázi správce maximálně po dobu 10 let. Odvolání souhlasu s uložením a zpracováním poskytnutých dat lze e-mailem na info@videobydleni.cz. V případě podezření na neoprávněné použití Vámi poskytnutých údajů máte právo předat podnět k šetření Úřadu pro ochranu osobních údajů. Více informací
Chystáte se prodat nemovitost?
Pomůžeme Vám!

Inzerát si prohlédlo 1 lidí

Prodejce

Jindřich Kuthan

Jindřich Kuthan

Hlídací pes

Chcete dostávat emailem podobné nabídky prodeje rodinných domů v Benešově?

Podobné nemovitosti


Nevyhovuje Vám typ domu? Podívejte se na jiné kategorie domů.


Vybrané články z našeho blogu