Prodej rodinného domu, Praha, Za podjezdem, 160 m2 (ID: 4218630)

Za podjezdem, Praha 10

15 500 000 Kč /za nemovitost HYPOTÉKA od 69 276 Kč /za měsíc
Prémioví partneři v Praze 10

Stěhovací služby

Výkup a prodej starého nábytku

Informace k domu

Hledáte dům, který nabídne dostatek prostoru pro rodinu, klid pro odpočinek i místo pro vaše koníčky? Místo, kde může vzniknout skutečný domov?

Právě takový rodinný dům nyní nabízím v Praha – Kolovraty.

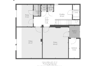
Dům je prakticky rozdělen do několika podlaží a nabízí příjemně řešený prostor pro každodenní život. V přízemí se nachází obytná část s obývacím pokojem a kuchyní, která přirozeně tvoří srdce domova – ideální pro společné večeře, setkání s přáteli i klidné rodinné večery. Dále je zde koupelna, samostatné WC, spíž a vstupní část domu.

V patře najdete tři samostatné pokoje, které mohou sloužit jako ložnice, dětské pokoje nebo pracovna. Z jednoho z pokojů je vstup na balkon. Součástí domu je také sauna, která nabízí příjemné místo pro odpočinek a regeneraci.

Velkým bonusem je prostorná půda s potenciálem pro další obytný prostor, pracovnu, ateliér nebo hernu.

Dům nabízí i praktické zázemí v podobě sklepních prostor, samostatné garáže a dílny. Na pozemku se nachází také skleník.

Interiér působí velmi útulně díky dřevěným obkladům, které dodávají prostoru teplo a přírodní charakter. Komfort bydlení navíc zvyšuje podlahové vytápění v celém domě a kvalitní okna s trojskly, která zajišťují výbornou tepelnou i zvukovou izolaci.

Kolovraty patří mezi oblíbené části Prahy díky své zeleni, klidné atmosféře a dobré dostupnosti do centra.

Možná právě tady najdete místo, kam se budete každý den rádi vracet.

Pro více informací nebo domluvení prohlídky mě neváhejte kontaktovat.

PENB není dodán.

Parametry domu

Cena
15 500 000 Kč /za nemovitost Spočítat hypotéku
Aktualizováno
26. 3. 2026
Adresa
Za podjezdem, Praha 10
ID
420260125
Stavba
Cihlová
Stav objektu
Dobrý
Typ objektu
Patrový
Druh objektu
Samostatný
Užitná plocha
160 m2
Zastavěná plocha
106 m2
Plocha pozemku
509 m2
Třída energetické náročnosti
G - Mimořádně nehospodárná
Elektřina
230V, 400V
Plyn
Plynovod
Odpad
Veřejná kanalizace
Komunikace
Asfaltová, Zpevněná
Telekomunikace
Internet, Kabelová televize, Kabelové rozvody
Doprava
Vlak, Dálnice, Silnice, MHD, Autobus
Voda
Vodovod, Retenční nádrž na dešt’ovou vodu
Garáž
Sklep
Převod do OV

Kontaktovat makléře

Realitní kancelář

Logo eDO reality

eDO reality

Na Pankráci 322/26, Praha

Chystáte se prodat nemovitost?
Pomůžeme Vám!

Máte zájem o tento dům?

Tímto, v souladu s nařízením Evropského parlamentu a Rady (EU) 2016/679, v platném znění, prohlašuji, že mi je alespoň 16 let a uděluji tak svůj souhlas se zpracováním zadaných údajů (jméno, telefon, e-mail, ip adresa) společnosti B3 Technology, s.r.o., IČ: 07330600, se sídlem Novostavby 126/23, 435 11 Lom (správce dat), za účelem předání dotazu z tohoto formuláře Vámi vybranému inzerentovi a zpětného kontaktování mé osoby. Osobní údaje bude správce zpracovávat manuálně i automaticky přímo prostřednictvím svých zaměstnanců. Informace předané tímto formulářem budou uloženy v databázi správce maximálně po dobu 10 let. Odvolání souhlasu s uložením a zpracováním poskytnutých dat lze e-mailem na info@videobydleni.cz. V případě podezření na neoprávněné použití Vámi poskytnutých údajů máte právo předat podnět k šetření Úřadu pro ochranu osobních údajů. Více informací
Chystáte se prodat nemovitost?
Pomůžeme Vám!

Inzerát si prohlédlo 2 lidí

Prodejce

Anna Motyčková

Anna Motyčková

Hlídací pes

Chcete dostávat emailem podobné nabídky prodeje rodinných domů v Praze 10?

Podobné nemovitosti


Nevyhovuje Vám typ domu? Podívejte se na jiné kategorie domů.


Vybrané články z našeho blogu