Soccer reality

Prodej bytu 4+kk, Odolena Voda, Školní, 100 m2 (ID: 4220503)

Školní, Odolena Voda

3 590 000 Kč /za nemovitost HYPOTÉKA od 16 045 Kč /za měsíc

(Cena za převod členského podílu: 3 590 000,-Kč. Zbývající anuita: 7 880 000,-Kč se splácí v měsíčních splátkách: 41 710,-Kč a bydlíte.)

Prémioví partneři v Odoleně Vodě

Pojištění a finance

Informace k bytu

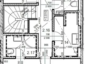
Prodej novostavby bytu, 4+kk 100m² + předzahrádka cca 30 m² +2× parkovací stání.

Na začátku platíte pouze cenu za převod členského podílu: 3 590 000,-Kč.
Zbývající anuita: 7 880 000,-Kč se splácí v měsíčních splátkách: 41 710,-Kč a bydlíte. Nedokládáte příjmy.

Nabízíme k prodeji nový družstevní mezonetový byt o dispozici 4+kk o velikosti 100 m² + předzahrádka o výměře cca 30 m², který je situovaný v 1. NP a 2.NP cihlové novostavby družstevního bydlení v Rezidenci U Školy, Odolena Voda.

Byt je dokončený po kolaudaci, je provedena příprava pro kuchyňskou linku, hotové koupelny včetně sanity, dlažby, interiérové dveře, rekuperační jednotka, podlahové vytápění, plastová okna. V ceně bytu je vinylová podlaha.
Podlahové vytápění zajištěné centrálním plynovým kotlem, budova vystavena s PENB - B.

Příslušenství bytu je 1x koupelna s vanou a WC, 1x koupelna se sprchovým koutem,
2x samostatné WC, 2x technická místnost, předzahrádka přístupná s terasy z obývacího pokoje, 2x parkovací stání před domem.
Kolaudace 2025.

Jedná se formu družstevního bydlení (družstevní byt) bez nutnosti prokazovat příjmy – po zaplacení za převod členského podílu cenu bytu dále splácíte formou měsíční anuitní splátky, spojené s poplatky za byt měsíční platbou včetně poplatků a záloha na služby: 47 931,-Kč.


Podrobnosti ke splátkám a družstvu zašleme na vyžádání.

Parametry bytu

Cena
3 590 000 Kč /za nemovitost Spočítat hypotéku
Poznámka k ceně
Cena za převod členského podílu: 3 590 000,-Kč. Zbývající anuita: 7 880 000,-Kč se splácí v měsíčních splátkách: 41 710,-Kč a bydlíte.
Aktualizováno
18. 5. 2026
Adresa
Školní, Odolena Voda
ID
0065
Stavba
Cihlová
Stav objektu
Novostavba
Patro
1.
Vlastnictví
Družstevní
Užitná plocha
100 m2
Třída energetické náročnosti
B - Velmi úsporná
Terasa
Převod do OV
Parkování

Kontaktovat makléře

Máte zájem o tento byt?

Tímto, v souladu s nařízením Evropského parlamentu a Rady (EU) 2016/679, v platném znění, prohlašuji, že mi je alespoň 16 let a uděluji tak svůj souhlas se zpracováním zadaných údajů (jméno, telefon, e-mail, ip adresa) společnosti B3 Technology, s.r.o., IČ: 07330600, se sídlem Novostavby 126/23, 435 11 Lom (správce dat), za účelem předání dotazu z tohoto formuláře Vámi vybranému inzerentovi a zpětného kontaktování mé osoby. Osobní údaje bude správce zpracovávat manuálně i automaticky přímo prostřednictvím svých zaměstnanců. Informace předané tímto formulářem budou uloženy v databázi správce maximálně po dobu 10 let. Odvolání souhlasu s uložením a zpracováním poskytnutých dat lze e-mailem na info@videobydleni.cz. V případě podezření na neoprávněné použití Vámi poskytnutých údajů máte právo předat podnět k šetření Úřadu pro ochranu osobních údajů. Více informací
Chystáte se prodat nemovitost?
Pomůžeme Vám!
Theleadway banner

Inzerát si prohlédlo 11 lidí

Prodejce

Miloš Snak

Miloš Snak

Hlídací pes

Chcete dostávat emailem podobné nabídky prodeje bytů 4+kk v Odoleně Vodě?

Podobné nemovitosti


Nevyhovuje Vám typ bytu? Podívejte se na jiné kategorie bytů.


Vybrané články z našeho blogu