Prodej výrobních prostor, Brno - Slatina, Hviezdoslavova, 1514 m2 (ID: 4221158)

Hviezdoslavova, Brno, Slatina

Cena na vyžádání Získejte výhodnou HYPOTÉKU

(včetně provize RK)

Prémioví partneři v Brně

Informace k nemovitosti

Výrobní hala se zázemím

Nabízíme k prodeji udržovanou a průběžně modernizovanou budovu určenou dle územního plánu pro nerušící výrobu, služby, velkoobchod a maloobchod. Objekt je napojen na veškerou dopravní i technickou infrastrukturu a nabízí dobré možnosti zásobování i parkování.

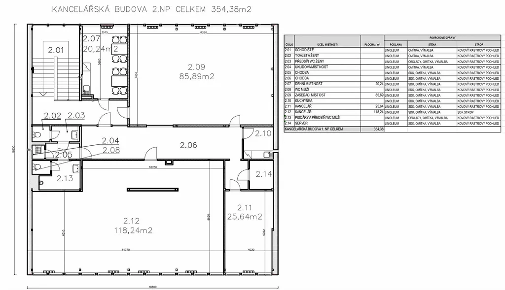
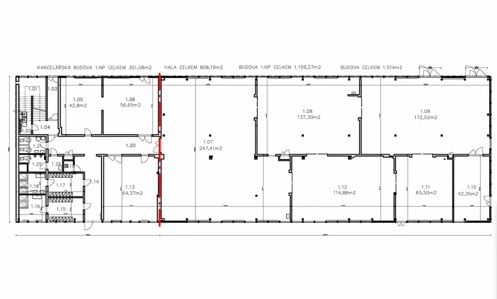
Dispozice:

• Halová část 809 m²
• Doplňkové prostory haly 164 m²
• Soc. zázemí 291 m² (šatny, toalety atd. )
• Kanceláře 250 m²

Celková plocha 1 514 m²
Pozemek 2 337 m²

Konstrukční řešení:

• Kombinace jednopodlažní výrobní haly s dvoupodlažní částí se zázemím (kanceláře, šatny, kuchyňky atd. )
• Ocelová konstrukční soustava, sendvičové obvodové pláště s tepelnou izolací, štíty zděné
• Plochá střecha na ŽB konstrukci, krytina nová PVC fólie, zateplení střechy a štítu (2019)
• Plastová okna kompletně vyměněna (2019)
• Podlahy: hala beton, administrativa linoleum, sociální zázemí PVC / keramická dlažba
• Podhledy z SDK
• Interiéry renovované (2015)

Inženýrské sítě a technologie:

• elektřina (vlastní přípojka 3×124 A, hala 230/400 V),
• plyn (vytápění), voda (TUV 2× bojler),
• rozvody stlačeného vzduchu
• EZS + požární čidla, kamerový systém int/ext (16 kamer),
• LED osvětlení int/ext

PENB: kat. D (z roku 2015)

Změnou účelu užívání v roce 2014 byla nemovitost kolaudována k účelu zpracování plastů, plastové výroby a skladování. Provoz společnosti je utlumen a nemovitost může být předána k užívání ihned po prodeji. Prodej bude realizován formou převodu obchodního podílu společnosti vytvořené za účelem držení a správy nemovitosti.

Pro detailnější technické informace a možnou prohlídku mě kontaktujte.

Parametry nemovitosti

Cena
Cena na vyžádání Spočítat hypotéku
Poznámka k ceně
včetně provize RK
Aktualizováno
29. 3. 2026
Adresa
Hviezdoslavova, Brno, Slatina
ID
0059
Stavba
Skeletová
Vybaveno
Ne
Užitná plocha
1514 m2
Třída energetické náročnosti
D - Méně úsporná

Kontaktovat makléře

Máte zájem o tuto nemovistost?

Tímto, v souladu s nařízením Evropského parlamentu a Rady (EU) 2016/679, v platném znění, prohlašuji, že mi je alespoň 16 let a uděluji tak svůj souhlas se zpracováním zadaných údajů (jméno, telefon, e-mail, ip adresa) společnosti B3 Technology, s.r.o., IČ: 07330600, se sídlem Novostavby 126/23, 435 11 Lom (správce dat), za účelem předání dotazu z tohoto formuláře Vámi vybranému inzerentovi a zpětného kontaktování mé osoby. Osobní údaje bude správce zpracovávat manuálně i automaticky přímo prostřednictvím svých zaměstnanců. Informace předané tímto formulářem budou uloženy v databázi správce maximálně po dobu 10 let. Odvolání souhlasu s uložením a zpracováním poskytnutých dat lze e-mailem na info@videobydleni.cz. V případě podezření na neoprávněné použití Vámi poskytnutých údajů máte právo předat podnět k šetření Úřadu pro ochranu osobních údajů. Více informací
Chystáte se prodat nemovitost?
Pomůžeme Vám!

Inzerát si prohlédlo 0 lidí

Prodejce

Marek Cifr

Marek Cifr

Hlídací pes

Chcete dostávat emailem podobné nabídky prodeje výrobních prostor v Brně?

Podobné nemovitosti


Nevyhovuje Vám typ nemovitosti? Podívejte se na jiné kategorie komerčních.


Vybrané články z našeho blogu