Prodej bytu 1+kk, Praha - Dejvice, Lindleyova, 34 m2 (ID: 4221457)

Lindleyova, Praha, Dejvice

7 170 000 Kč /za nemovitost HYPOTÉKA od 32 046 Kč /za měsíc
Prémioví partneři v Praze 6

Stěhovací služby

Výkup a prodej starého nábytku

Informace k bytu

Hledáte bezpečný přístav pro své finance nebo stylové startovací bydlení v srdci Dejvic?
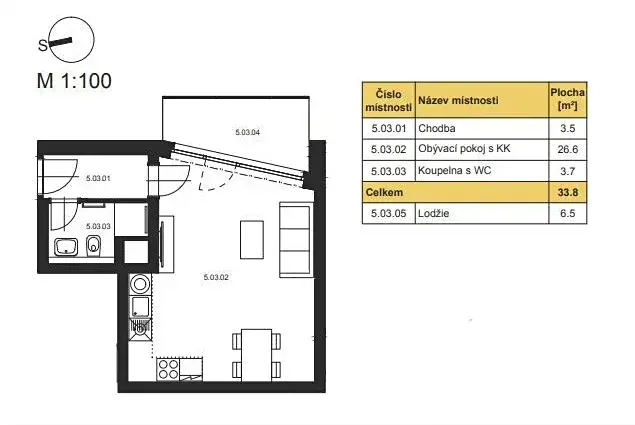
Nabízíme světlý, moderní byt 1+kk o rozloze 33 m² ve vyhledávaném projektu z roku 2018 v ul. Lindleyova. Byt je ideální volbou pro ty, kteří ocení kombinaci moderní architektury, nízkých provozních nákladů a prestižní adresy.
Hlavní benefity:
!!! Novostavba (2018): Moderní materiály, čisté společné prostory a bezproblémový provoz.
!!! Úspora energií (Třída B): Díky vysoké energetické náročnosti budovy jsou měsíční poplatky minimální – ideální pro investiční záměr.
!!! Chytrý prostor: Velkorysá plocha 33 m² umožňuje efektivní rozdělení na spací a obývací zónu. Velká okna zajišťují dostatek přirozeného světla po celý den.
!!! Prostorná lodžie (6,5 m²): Skutečný bonus u bytu 1+kk. Velkorysá plocha pro venkovní posezení, která pocitově zvětšuje obytný prostor a nabízí místo pro relaxaci.
!!! Exkluzivní zázemí pro rezidenty: V přízemí domu se nachází rozlehlý společný prostor s fitness trenažéry. Ideální místo pro cvičení nebo únik před letními horky v příjemném chládku moderní budovy. Tento benefit výrazně zvyšuje komfort bydlení i atraktivitu pro budoucí nájemníky.
!!! Sklep v ceně: K bytu náleží praktická zděná sklepní kóje o velikosti 2,5 m².
!!! Lokalita: Dejvice / Podbaba nabízí kompletní infrastrukturu (Kaufland přímo u domu, fitness, restaurace) a skvělou dostupnost do centra i na letiště (tram, vlak, bus).
Byt je ihned k dispozici a je vhodný jak k vlastnímu bydlení, tak k okamžitému pronájmu s vysokým výnosem.
Přijďte se podívat na prostor, který dává smysl.

Parametry bytu

Cena
7 170 000 Kč /za nemovitost Spočítat hypotéku
Aktualizováno
30. 3. 2026
Adresa
Lindleyova, Praha, Dejvice
Stavba
Cihlová
Stav objektu
Novostavba
Patro
5.
Vybaveno
Částečně
Lokalita objektu
Klidná část obce
Vlastnictví
Osobní
Užitná plocha
34 m2
Třída energetické náročnosti
B - Velmi úsporná
Odpad
Veřejná kanalizace
Doprava
MHD
Voda
Vodovod
Topné těleso
Radiátory
Zdroj topení
Ústřední dálkové, Centrální dálkové
Zdroj teplé vody
Centrální dálkový ohřev
Sklep
Lodžie
Výtah

Kontaktovat makléře

Máte zájem o tento byt?

Tímto, v souladu s nařízením Evropského parlamentu a Rady (EU) 2016/679, v platném znění, prohlašuji, že mi je alespoň 16 let a uděluji tak svůj souhlas se zpracováním zadaných údajů (jméno, telefon, e-mail, ip adresa) společnosti B3 Technology, s.r.o., IČ: 07330600, se sídlem Novostavby 126/23, 435 11 Lom (správce dat), za účelem předání dotazu z tohoto formuláře Vámi vybranému inzerentovi a zpětného kontaktování mé osoby. Osobní údaje bude správce zpracovávat manuálně i automaticky přímo prostřednictvím svých zaměstnanců. Informace předané tímto formulářem budou uloženy v databázi správce maximálně po dobu 10 let. Odvolání souhlasu s uložením a zpracováním poskytnutých dat lze e-mailem na info@videobydleni.cz. V případě podezření na neoprávněné použití Vámi poskytnutých údajů máte právo předat podnět k šetření Úřadu pro ochranu osobních údajů. Více informací
Chystáte se prodat nemovitost?
Pomůžeme Vám!

Inzerát si prohlédlo 1 lidí

Prodejce

Slobodskaja Olga

Slobodskaja Olga

Hlídací pes

Chcete dostávat emailem podobné nabídky prodeje bytů 1+kk v Praze 6?

Podobné nemovitosti


Nevyhovuje Vám typ bytu? Podívejte se na jiné kategorie bytů.


Vybrané články z našeho blogu