Pronájem bytu 2+kk, Praha - Vinohrady, Mánesova, 59 m2 (ID: 4222980)

Mánesova, Praha 2 - Vinohrady

22 900 Kč /za měsíc Získejte výhodnou HYPOTÉKU

(Měsíční zálohy na poplatky jsou ve výši 800 Kč/osoba + plyn a elektřina v bytě se převádí na nájemníka + vratná kauce ve výši 22. 900 Kč + provize RK)

Prémioví partneři v Praze 2

Stěhovací služby

Výkup a prodej starého nábytku

Informace k bytu

Dlouhodobý pronájem bytu v osobním vlastnictví 2+kk

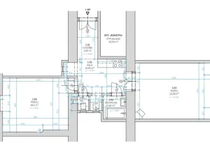
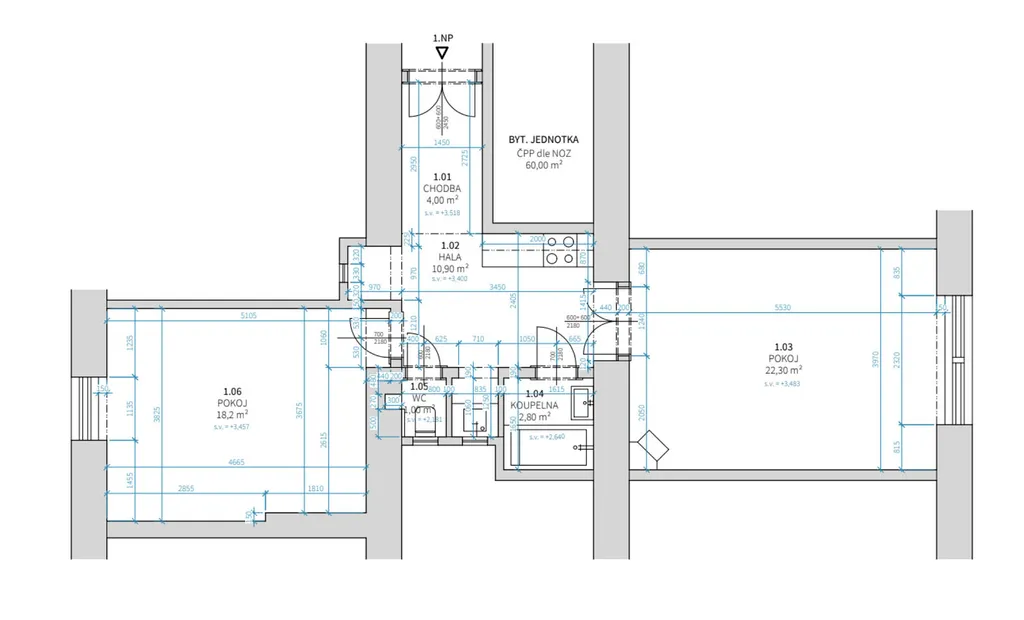
K dlouhodobému pronájmu vám nabízíme byt o dispozici 2+kk a podlahové výměře 59 m².

Byt se nachází v 2. NP cihlového domu v oblíbené ulici Mánesova.
Majitel domu dbá na přátelskou atmosféru a dlouhodobé nájemní vztahy. Nájemníci jsou spolehliví a mezi sebou mají dobré vztahy, což zajišťuje příjemné a stabilní bydlení.

Ulice je klidná, jednosměrná a plná vzrostlých stromů.

V bytě byla právě dokončena kompletní rekonstrukce.

Do bytu vás přivítá předsíň s úložným prostorem, na kterou navazuje hala, která je centrem bytu. V hale je umístěna kuchyňská linka, která je členěna do 3 částí, tak aby byl využit celý prostor a bylo dosaženo více pracovního a úložného místa.

Na jedné straně od haly je ložnice o výměře 18 m² s oknem do vnitrobloku a obývací pokoj s jídelnou je na druhé straně od haly a okna směřují do ulice Mánesova.

V obývacím pokoji byla zachována původní kachlová kamna, která celému prostoru dodávají neobyčejnou atmosféru. Kamna jsou pouze dekorativní, neslouží k topení. Místnost má výměru 22 m² a je zde prostor i na jídelní stůl.

Z haly je také vstup do koupelny s vanou. Toaleta je samostatná.

Byt je velice vzdušný a prostorný.

Okna jsou špaletová a na podlaze jsou položeny renovované parkety v kombinaci s PVC.

Vytápění bytu a ohřev vody zajišťuje nový plynový kondenzační kotel, zn. Bosh - energetická třída A.
Kotel zajišťuje nižší náklady.

Byt je vhodný pro 2 osoby.

Měsíční zálohy na poplatky jsou ve výši 800 Kč/osoba.
+ plyn a elektřina v bytě se převádí na nájemníka
+ vratná kauce ve výši 1 nájem
+ provize RK ve výši 1 nájem

Umístění bytu je v žádané lokalitě Vinohrad, pouhou ulici od Vinohradské ulice a 150 metrů od Náměstí Jiřího z Poděbrad. Jedná se o vyhledávanou lokalitu s kompletní občanskou vybaveností a zároveň v pěší vzdálenosti do centra Prahy. Je zde nespočet restaurací, kaváren, bister, obchodů a ostatních služeb.

Pro trávení volného času je v bezprostřední blízkosti park Riegrovy sady. V docházkové vzdálenosti další parky Parukářka a Vítkov.

Byt je určen pouze pro dlouhodobý pronájem. Krátkodobé pronájmy nejsou v tomto bytě povoleny.

Pro více informací mne kontaktujte.

Parametry bytu

Cena
22 900 Kč /za měsíc
Poznámka k ceně
Měsíční zálohy na poplatky jsou ve výši 800 Kč/osoba + plyn a elektřina v bytě se převádí na nájemníka + vratná kauce ve výši 22. 900 Kč + provize RK
Aktualizováno
31. 3. 2026
Adresa
Mánesova, Praha 2 - Vinohrady
ID
0138
Stavba
Cihlová
Vybaveno
Ne
Vlastnictví
Osobní
Užitná plocha
59 m2
Třída energetické náročnosti
E - Nehospodárná

Kontaktovat makléře

Máte zájem o tento byt?

Tímto, v souladu s nařízením Evropského parlamentu a Rady (EU) 2016/679, v platném znění, prohlašuji, že mi je alespoň 16 let a uděluji tak svůj souhlas se zpracováním zadaných údajů (jméno, telefon, e-mail, ip adresa) společnosti B3 Technology, s.r.o., IČ: 07330600, se sídlem Novostavby 126/23, 435 11 Lom (správce dat), za účelem předání dotazu z tohoto formuláře Vámi vybranému inzerentovi a zpětného kontaktování mé osoby. Osobní údaje bude správce zpracovávat manuálně i automaticky přímo prostřednictvím svých zaměstnanců. Informace předané tímto formulářem budou uloženy v databázi správce maximálně po dobu 10 let. Odvolání souhlasu s uložením a zpracováním poskytnutých dat lze e-mailem na info@videobydleni.cz. V případě podezření na neoprávněné použití Vámi poskytnutých údajů máte právo předat podnět k šetření Úřadu pro ochranu osobních údajů. Více informací
Chystáte se prodat nemovitost?
Pomůžeme Vám!

Inzerát si prohlédlo 0 lidí

Prodejce

Jana Šmídová

Jana Šmídová

Hlídací pes

Chcete dostávat emailem podobné nabídky pronájmu bytů 2+kk v Praze 2?

Podobné nemovitosti


Nevyhovuje Vám typ bytu? Podívejte se na jiné kategorie bytů.


Vybrané články z našeho blogu