Prodej rodinného domu, Liberec - Liberec XIV-Ruprechtice, Dračí, 153 m2 (ID: 4223657)

Dračí, Liberec XIV-Ruprechtice - Liberec (nečleněné město)

8 500 000 Kč /za nemovitost HYPOTÉKA od 37 990 Kč /za měsíc
Prémioví partneři v Liberci

Rekonstrukce

Úklidové služby

Informace k domu

Hledáte hotové bydlení v přírodě pár minut od centra Liberce? Tento rodinný dům v Ruprechticích nabízí klid, soukromí a okamžité bydlení s možností doladit si detaily podle sebe.
Hlavní výhody:

1) klidné bydlení v přírodě, přitom jen 8 minut od centra Liberce a 10 minut od centra
Bedřichova v Jizerských horách
2) okamžitě k nastěhování, bez čekání na dokončení stavby

3) nízké provozní náklady (při využití dřeva na topení)

4) zásoba vlastního dřeva na několik let (30 – 50 m3)

5) možnost dokončení kuchyně a podkroví dle vlastního vkusu bez zbytečných předělávek

6) po kompletní rekonstrukci – nové rozvody, topení, izolace

7) parkování na pozemku, přístup po městské komunikaci

8) zajištěná návaznost řemeslníků pro rychlé dokončení úprav


Jedná se o nemovitost v údolí Černé Nisy, která prošla citlivou kompletní rekonstrukcí. V současné době je dokončován převod z čísla evidenčního na číslo popisné.
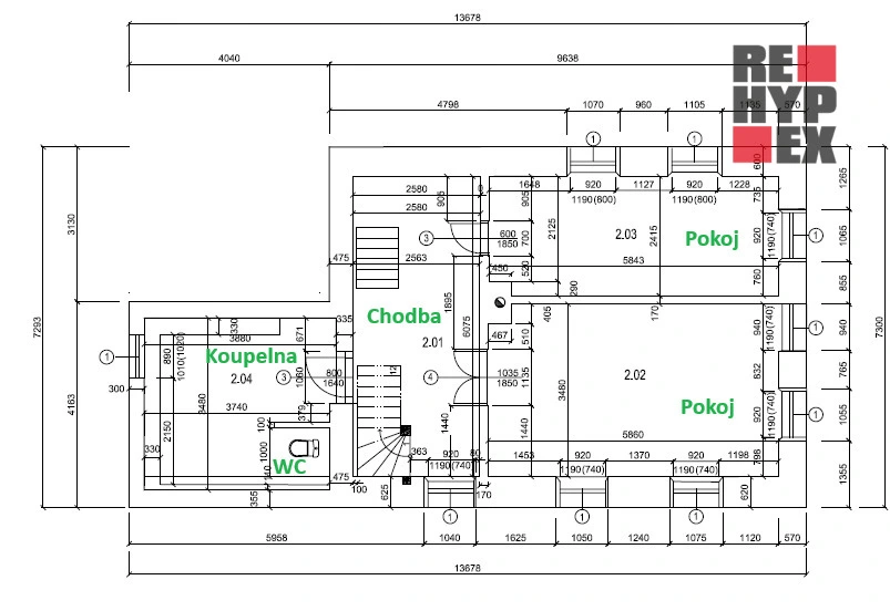
Dispozice domu je 4+kk. V přízemí se nachází komora (spíž), samostatné WC, prostorná kuchyně, předsíň a sklep s klenutým stropem z kamene. V prvním patře naleznete útulný obývací pokoj, pracovnu a prostornou koupelnu s luxusní rohovou vanou, bojlerem, závěsným WC Geberit a přípravou pro pračku a myčku. Třešničkou na dortu je rozsáhlý podkrovní prostor, který lze buď ponechat v současné podobě nebo s minimálním zásahem přepažit na několik menších pokojů dle přání majitele.
Dům prošel rekonstrukcí s důrazem na zachování původní podoby ve stylu venkovského stavení, ale při použití nejmodernějších postupů a materiálů. Střecha, pokrytá novou krytinou, získala novou izolaci, která v létě brání zahřívání interiéru a v zimě tepelně izoluje. Okenní výplně mají izolační trojskla s tepelným koeficientem 0,6m. Dům je zateplený, má novou fasádu, došlo i k výměně okapů, svodů a hromosvodu. Nově byly instalovány rozvody vody, elektřiny a topný systém včetně radiátorů a elektrokotle.
Topný systém je připraven na připojení kachlových kamen nebo kamen s tepelným výměníkem dle přání majitele. K dispozici jsou řemeslníci, připraveni pomoci s instalací – elektrikář, topenář, případně kamnář.
Na dům navazuje prostorná zahrada o velikosti 1500 m2 s prostorem pro letní posezení, pergolu nebo venkovní krb. Zahrada umožňuje přímý přístup do lesa. Přístup k nemovitosti je možný osobním autem, dodávkou nebo lehkým nákladním automobilem přes most z ulice Kateřinská, po komunikaci v majetku města. Parkovat lze ve spodní části pozemku u příjezdové komunikace nebo přímo u domu. Zastávka MHD se nachází 100 metrů od domu na nedaleké Kateřinské ulici, po které zároveň vede cyklistická stezka č. 3036 a křižuje ji modře značená turistická trasa. Veškerá občanská vybavení v místě.

Parametry domu

Cena
8 500 000 Kč /za nemovitost Spočítat hypotéku
Aktualizováno
31. 3. 2026
Adresa
Dračí, Liberec XIV-Ruprechtice - Liberec (nečleněné město)
ID
N2064
Stavba
Cihlová
Stav objektu
Po rekonstrukci
Typ objektu
Patrový
Druh objektu
Samostatný
Užitná plocha
153 m2
Zastavěná plocha
82 m2
Podlahová plocha
142 m2
Plocha pozemku
1500 m2
Třída energetické náročnosti
D - Méně úsporná
Odpad
ČOV pro celý objekt
Topení
Lokální tuhá paliva, Ústřední elektrické
Doprava
Vlak, Dálnice, Silnice, MHD, Autobus
Voda
Místní zdroj vody
Sklep
Parkování

Kontaktovat makléře

Realitní kancelář

Logo REHYPEX, s.r.o.

REHYPEX, s.r.o.

Veleslavínova 208/9, Liberec III-Jeřáb

Chystáte se prodat nemovitost?
Pomůžeme Vám!

Máte zájem o tento dům?

Tímto, v souladu s nařízením Evropského parlamentu a Rady (EU) 2016/679, v platném znění, prohlašuji, že mi je alespoň 16 let a uděluji tak svůj souhlas se zpracováním zadaných údajů (jméno, telefon, e-mail, ip adresa) společnosti B3 Technology, s.r.o., IČ: 07330600, se sídlem Novostavby 126/23, 435 11 Lom (správce dat), za účelem předání dotazu z tohoto formuláře Vámi vybranému inzerentovi a zpětného kontaktování mé osoby. Osobní údaje bude správce zpracovávat manuálně i automaticky přímo prostřednictvím svých zaměstnanců. Informace předané tímto formulářem budou uloženy v databázi správce maximálně po dobu 10 let. Odvolání souhlasu s uložením a zpracováním poskytnutých dat lze e-mailem na info@videobydleni.cz. V případě podezření na neoprávněné použití Vámi poskytnutých údajů máte právo předat podnět k šetření Úřadu pro ochranu osobních údajů. Více informací
Chystáte se prodat nemovitost?
Pomůžeme Vám!

Inzerát si prohlédlo 0 lidí

Prodejce

Ing. Petr Plaček

Ing. Petr Plaček

Hlídací pes

Chcete dostávat emailem podobné nabídky prodeje rodinných domů v Liberci?

Podobné nemovitosti


Nevyhovuje Vám typ domu? Podívejte se na jiné kategorie domů.


Vybrané články z našeho blogu