Prodej rodinného domu, Trutnov - Oblanov, Oblanovská, 183 m2

Oblanovská

5 600 000 Kč /za nemovitost HYPOTÉKA od 25 029 Kč /za měsíc
Prémioví partneři v Trutnově

Informace k domu

K prodeji nabízíme velký rodinný dům se zahradou, vystavěný v trutnovské části Oblanov, v klidné lokalitě nedaleko rekreačního areálu Dolce.

Rodinný dům je zděná stavba se dvěma nadzemními podlažími a podsklepením, s celkovou výměrou užitné plochy cca 203 m2. Aktuálně dispozice 3+kk s možností rozšíření o další obytné místnosti.

1. NP: zádveří, chodba, velký obývací pokoj se vstupem na terasu a spojený s kuchyňským koutem, pokoj, ložnice, koupelna s vanou a WC, druhá koupelna (ve výstavbě), v druhé části domu - dílna (sklad), technická místnost s WC.

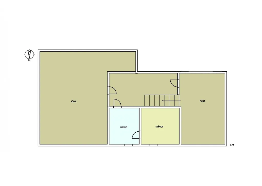
2. NP: dva samostatné pokoje (k rekonstrukci), na každé straně domu poté velké půdní prostory, připravené a vhodné pro další vestavbu obytných místností.

Dům je v dobrém stavebně technickém stavu, po částečné rekonstrukci - plastová okna a dveře, zčásti nový krov s novou střešní krytinou ad. Část domu čeká ještě na rekonstrukci a to do stavu, který bude vyhovovat nárokům nových majitelů.

Vytápění domu je zajišťováno moderním tepelným čerpadlem, ohřev teplé vody el. bojlerem. Velkým bonusem jsou instalované fotovoltaické panely pro výrobu elektřiny s baterií. Dům je napojen na elektrickou energii, obecní vodovod. Odpadní vody jsou svedeny do septiku. PENB nepředložen, proto uvádíme třídu G.

U domu se nachází udržovaná zahrada, s vysázenými okrasnými stromy a květenou. Celý pozemek je oplocen, v přední části s vjezdovou bránou. Na pozemku se též nachází zděná stavba na uskladnění věcí a nářadí s navazujícím zastřešením pro parkování vozidla.

Dům je multifunkční prostornou stavbou a vyhovuje nárokům na rodinné bydlení v klidné lokalitě. Je ideální volbou pro rodiny, které hledají velký dům s dostatkem místností, který se nachází v klidné lokalitě.

Právní servis, advokátní úschova kupní ceny a další rozsáhlé služby RK EVOLUCE jsou pro kupující zdarma. Rádi se s vámi potkáme při prohlídce této nemovitosti.

Parametry domu

Cena
5 600 000 Kč /za nemovitost Spočítat hypotéku
Aktualizováno
31. 3. 2026
Adresa
Oblanovská
ID
CZK26173
Stavba
Cihlová
Stav objektu
Dobrý
Typ objektu
Patrový
Druh objektu
Samostatný
Užitná plocha
183 m2
Zastavěná plocha
210 m2
Podlahová plocha
183 m2
Plocha pozemku
1067 m2
Plocha zahrady
857 m2
Elektřina
230V
Odpad
Septik
Komunikace
Asfaltová
Doprava
Vlak, Silnice, MHD, Autobus
Voda
Vodovod
Topné těleso
Radiátory
Zdroj topení
Tepelné čerpadlo
Bezbarierový přístup
Parkování

Kontaktovat makléře

Máte zájem o tento dům?

Tímto, v souladu s nařízením Evropského parlamentu a Rady (EU) 2016/679, v platném znění, prohlašuji, že mi je alespoň 16 let a uděluji tak svůj souhlas se zpracováním zadaných údajů (jméno, telefon, e-mail, ip adresa) společnosti B3 Technology, s.r.o., IČ: 07330600, se sídlem Novostavby 126/23, 435 11 Lom (správce dat), za účelem předání dotazu z tohoto formuláře Vámi vybranému inzerentovi a zpětného kontaktování mé osoby. Osobní údaje bude správce zpracovávat manuálně i automaticky přímo prostřednictvím svých zaměstnanců. Informace předané tímto formulářem budou uloženy v databázi správce maximálně po dobu 10 let. Odvolání souhlasu s uložením a zpracováním poskytnutých dat lze e-mailem na info@videobydleni.cz. V případě podezření na neoprávněné použití Vámi poskytnutých údajů máte právo předat podnět k šetření Úřadu pro ochranu osobních údajů. Více informací
Chystáte se prodat nemovitost?
Pomůžeme Vám!

Inzerát si prohlédlo 0 lidí

Prodejce

Mgr. Petr Čížek

Mgr. Petr Čížek

Hlídací pes

Chcete dostávat emailem podobné nabídky prodeje rodinných domů v Trutnově?

Top nabídky

Podobné nemovitosti


Nevyhovuje Vám typ domu? Podívejte se na jiné kategorie domů.


Vybrané články z našeho blogu