Prodej rodinného domu, Vysoký Újezd, Rochlova, 150 m2 (ID: 4224323)

Rochlova, Vysoký Újezd

15 990 000 Kč /za nemovitost HYPOTÉKA od 71 466 Kč /za měsíc
Prémioví partneři v Vysokém Újezdu

Pojištění a finance

Informace k domu

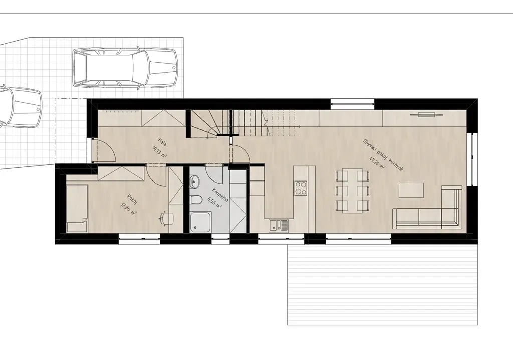
Nabízíme k prodeji moderní cihlový rodinný dům ve výstavbě v klidné části obce Vysoký Újezd, ulice Rochlova. Novostavba s dispozicí 5 + kk stojí na vlastním pozemku o výměře 799 m² a nabízí užitnou plochu 149 m². Energetická náročnost B – velmi úsporná slibuje komfortní bydlení i příznivé provozní náklady.

Dům je navržen s důrazem na moderní rodinné bydlení, dostatek prostoru i funkční uspořádání v rámci více podlaží. Samostatné umístění na pozemku zajišťuje soukromí, prostor pro zahradu, terasu i každodenní rodinný život. Velkou výhodou je možnost klientských změn v průběhu výstavby, takže si budoucí majitel může výslednou podobu domu částečně přizpůsobit vlastním představám. Dokončení je plánováno na 9/2026 (lze i dříve).

Cena domu zahrnuje standardní provedení: dřevěné podlahy, interiérové dveře, sanitu, kotel, teplovodní podlahové vytápění, regulaci topení, rekuperaci, oplocení a vstupní bránu.

Lokalita nabízí klidné bydlení s dobrou dostupností. K dispozici je autobusové i vlakové spojení, snadné napojení na silniční síť i dálnici. V blízké vzdálenosti se nachází MŠ, ZŠ, potraviny, pošta, lékař i restaurace.

Parametry domu

Cena
15 990 000 Kč /za nemovitost Spočítat hypotéku
Aktualizováno
16. 5. 2026
Adresa
Rochlova, Vysoký Újezd
ID
rochlova
Stavba
Cihlová
Stav objektu
Ve výstavbě
Druh objektu
Samostatný
Lokalita objektu
Klidná část obce
Užitná plocha
150 m2
Plocha pozemku
801 m2
Třída energetické náročnosti
B - Velmi úsporná
Elektřina
230V
Odpad
Veřejná kanalizace
Komunikace
Asfaltová
Telekomunikace
Internet
Doprava
Vlak, Dálnice, Silnice, Autobus
Voda
Vodovod
Topné těleso
Podlahové vytápění
Zdroj topení
Tepelné čerpadlo
Zdroj teplé vody
Tepelné čerpadlo

Kontaktovat makléře

Máte zájem o tento dům?

Tímto, v souladu s nařízením Evropského parlamentu a Rady (EU) 2016/679, v platném znění, prohlašuji, že mi je alespoň 16 let a uděluji tak svůj souhlas se zpracováním zadaných údajů (jméno, telefon, e-mail, ip adresa) společnosti B3 Technology, s.r.o., IČ: 07330600, se sídlem Novostavby 126/23, 435 11 Lom (správce dat), za účelem předání dotazu z tohoto formuláře Vámi vybranému inzerentovi a zpětného kontaktování mé osoby. Osobní údaje bude správce zpracovávat manuálně i automaticky přímo prostřednictvím svých zaměstnanců. Informace předané tímto formulářem budou uloženy v databázi správce maximálně po dobu 10 let. Odvolání souhlasu s uložením a zpracováním poskytnutých dat lze e-mailem na info@videobydleni.cz. V případě podezření na neoprávněné použití Vámi poskytnutých údajů máte právo předat podnět k šetření Úřadu pro ochranu osobních údajů. Více informací
Chystáte se prodat nemovitost?
Pomůžeme Vám!
Theleadway banner

Inzerát si prohlédlo 4 lidí

Prodejce

SANTO STAV s.r.o

SANTO STAV s.r.o

Hlídací pes

Chcete dostávat emailem podobné nabídky prodeje rodinných domů v Vysokém Újezdu (okr. Beroun)?

Podobné nemovitosti


Nevyhovuje Vám typ domu? Podívejte se na jiné kategorie domů.


Vybrané články z našeho blogu