Prodej rodinného domu, Tři Dvory, 235 m2 (ID: 4224359)

Tři Dvory

Cena na vyžádání /za nemovitost Získejte výhodnou HYPOTÉKU

(na vyžádání)

Prémioví partneři v Třech Dvorech

Pojištění a finance

Informace k domu

Nabízíme Vám jedinečnou příležitost ke koupi prostorného rodinného domu v klidné obci Tři Dvory, která se nachází v bezprostřední blízkosti města Kolín – pouhých 2,5 km. Nemovitost stojí na rohové parcele o velikosti 951 m², což zajišťuje maximální soukromí, klid a dostatek světla po celý den. Okolní příroda je doslova na dosah, představující skvělé místo pro relaxaci, rodinné aktivity i sport.
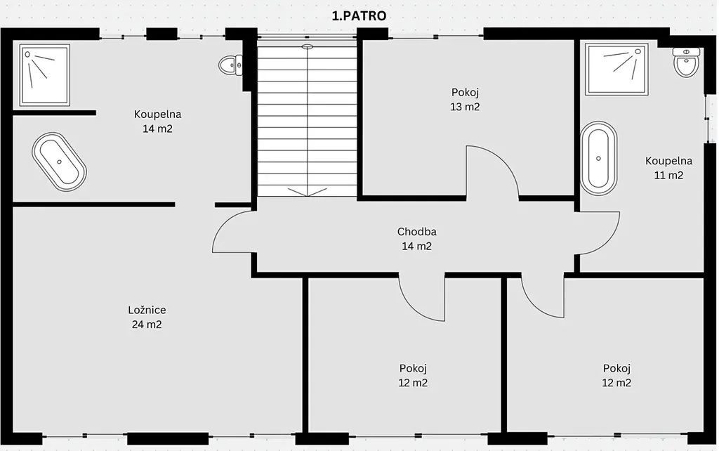
Dům má užitnou plochu 235 m² a je navržen s důrazem na praktičnost i vzdušnost:
Dispozice:
• Přízemí: světlý a prostorný obývací pokoj s kuchyňským koutem ke kterému náleží přípravna, samostatný pokoj, dvě koupelny, a technická místnost s prádelnou.
• 1. patro: čtyři pokoje a dvě koupelny. Každý pokoj má přímý vstup na balkón.
Dům je vybaven inteligentní domácností – osvětlení, vytápění nebo vjezdovou bránu můžete ovládat pohodlně pomocí mobilní aplikace. Součástí je také rekuperace a klimatizace v každém pokoji.
Nemovitost je ihned k nastěhování, i když například žaluzie a dekorační osvětlení zatím nebylo finalizováno – nicméně kabelové rozvody jsou hotové, což představuje příležitost pro nového majitele, který si tak může interiér doladit přesně podle svého vkusu a vytvořit si osobitý styl domova, odrážející jeho vlastní představy. Rozvodem kabelů je pamatováno i na případné vybudování bazénu.
Tři Dvory jsou obec s výbornou dostupností do Kolína, kde naleznete kompletní občanskou vybavenost – školy, školky, lékaře, obchody i volnočasové aktivity. Díky krátké dojezdové vzdálenosti a napojení na MHD je lokalita vhodná i pro každodenní dojíždění.

Parametry domu

Cena
Cena na vyžádání Spočítat hypotéku
Poznámka k ceně
na vyžádání
Aktualizováno
18. 5. 2026
Adresa
Tři Dvory
ID
N00124
Stavba
Cihlová
Stav objektu
Velmi dobrý
Druh objektu
Rohový
Lokalita objektu
Okraj obce
Užitná plocha
235 m2
Zastavěná plocha
219 m2
Plocha pozemku
951 m2
Třída energetické náročnosti
A - Mimořádně úsporná

Kontaktovat makléře

Máte zájem o tento dům?

Tímto, v souladu s nařízením Evropského parlamentu a Rady (EU) 2016/679, v platném znění, prohlašuji, že mi je alespoň 16 let a uděluji tak svůj souhlas se zpracováním zadaných údajů (jméno, telefon, e-mail, ip adresa) společnosti B3 Technology, s.r.o., IČ: 07330600, se sídlem Novostavby 126/23, 435 11 Lom (správce dat), za účelem předání dotazu z tohoto formuláře Vámi vybranému inzerentovi a zpětného kontaktování mé osoby. Osobní údaje bude správce zpracovávat manuálně i automaticky přímo prostřednictvím svých zaměstnanců. Informace předané tímto formulářem budou uloženy v databázi správce maximálně po dobu 10 let. Odvolání souhlasu s uložením a zpracováním poskytnutých dat lze e-mailem na info@videobydleni.cz. V případě podezření na neoprávněné použití Vámi poskytnutých údajů máte právo předat podnět k šetření Úřadu pro ochranu osobních údajů. Více informací
Chystáte se prodat nemovitost?
Pomůžeme Vám!
Theleadway banner

Inzerát si prohlédlo 21 lidí

Prodejce

BSc. František Vohánka

BSc. František Vohánka

Hlídací pes

Chcete dostávat emailem podobné nabídky prodeje rodinných domů v Třech Dvorech?

Podobné nemovitosti


Nevyhovuje Vám typ domu? Podívejte se na jiné kategorie domů.


Vybrané články z našeho blogu