Prodej bytu 1+kk, Kutná Hora, Nádražní, 16 m2 (ID: 4224365)

Nádražní, Kutná Hora-Vnitřní Město

1 749 000 Kč /za nemovitost HYPOTÉKA od 7 817 Kč /za měsíc

(včetně provize, včetně právního servisu)

Prémioví partneři v Kutné Hoře

Pojištění a finance

Informace k bytu

Hotová ubytovací jednotka s výnosovým potenciálem, moderním a efektivním způsobem využitelnosti.

Nabízíme k prodeji nově dokončenou ubytovací jednotku v historickém centru města Kutná Hora, na adrese Nádražní 631/3 – Vnitřní Město.

Jednotka je vedena v katastru nemovitostí jako jiný nebytový prostor a je plně připravena k okamžitému spuštění krátkodobých pronájmů a nebo může sloužit jako kancelář s mezipatrem na spaní.

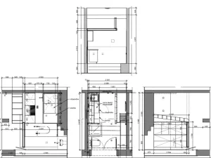
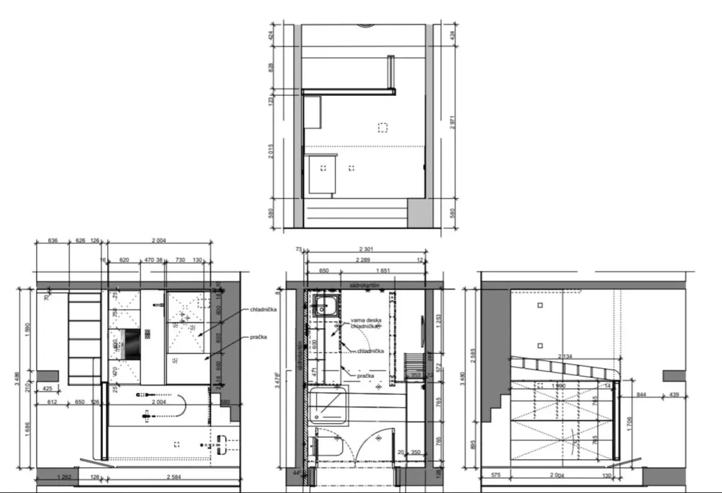
Dispozice a standard
Celková plocha cca
– cca 8,5 m² hlavní obytná část,
– cca 7,5 m² galerie / spací prostor se sníženým stropem (cca 125 cm)

Kompletně nově dokončeno,
nové elektrické spotřebiče
– lednice, vestavěná mikrovlnná trouba Whirlpool.

Připraveno bez dalších investic ke krátkodobému pronájmu a nebo máme zájemce o pronájem dlouhodobý za 9000 Kč za měsíc.

Tato jednotka se nachází na rohu ulice Sokolská a Nádražní, takže máte na dosah historické centrum Kutné Hory, které patří mezi turisticky stabilní lokality s celoroční poptávkou a také vlak nebo autobus, který je jen 1 minutu chůze.

Proč tato investice dává smysl?
– Nízké pořizovací i provozní náklady
– malometrážní jednotky mají nejvyšší procentuální výnos
– Turisticky silná lokalita (UNESCO)
– Možnost osobního využití mezi pronájmy
– Okamžitý start bez rekonstrukce

Tato jednotka představuje efektivní nástroj pro investory hledající vyšší zhodnocení než u tradičních nájmů nebo konzervativních finančních produktů.

Nemovitost je připravena k okamžitému užívání a díky své kvalitní realizaci a současnému designu pro toho kdo hledá praktické a funkční řešení pro podnikatelské účely či kreativní činnost.

Parametry bytu

Cena
1 749 000 Kč /za nemovitost Spočítat hypotéku
Poznámka k ceně
včetně provize, včetně právního servisu
Aktualizováno
1. 4. 2026
Adresa
Nádražní, Kutná Hora-Vnitřní Město
ID
24181
Stavba
Cihlová
Stav objektu
Velmi dobrý
Patro
1.
Lokalita objektu
Centrum obce
Vlastnictví
Osobní
Užitná plocha
16 m2
Podlahová plocha
16 m2
Třída energetické náročnosti
G - Mimořádně nehospodárná
Elektřina
230V
Odpad
Veřejná kanalizace
Topení
Lokální elektrické
Doprava
Vlak, Dálnice, Silnice, MHD, Autobus
Voda
Vodovod

Kontaktovat makléře

Realitní kancelář

Logo Apres reality

Apres reality

28. října 400, 584 01, Ledeč nad Sázavou, Ledeč nad Sázavou

Chystáte se prodat nemovitost?
Pomůžeme Vám!

Máte zájem o tento byt?

Tímto, v souladu s nařízením Evropského parlamentu a Rady (EU) 2016/679, v platném znění, prohlašuji, že mi je alespoň 16 let a uděluji tak svůj souhlas se zpracováním zadaných údajů (jméno, telefon, e-mail, ip adresa) společnosti B3 Technology, s.r.o., IČ: 07330600, se sídlem Novostavby 126/23, 435 11 Lom (správce dat), za účelem předání dotazu z tohoto formuláře Vámi vybranému inzerentovi a zpětného kontaktování mé osoby. Osobní údaje bude správce zpracovávat manuálně i automaticky přímo prostřednictvím svých zaměstnanců. Informace předané tímto formulářem budou uloženy v databázi správce maximálně po dobu 10 let. Odvolání souhlasu s uložením a zpracováním poskytnutých dat lze e-mailem na info@videobydleni.cz. V případě podezření na neoprávněné použití Vámi poskytnutých údajů máte právo předat podnět k šetření Úřadu pro ochranu osobních údajů. Více informací
Chystáte se prodat nemovitost?
Pomůžeme Vám!
Theleadway banner

Inzerát si prohlédlo 88 lidí

Prodejce

Bc. Jakub Kořínek

Bc. Jakub Kořínek

Hlídací pes

Chcete dostávat emailem podobné nabídky prodeje bytů 1+kk v Kutné Hoře?

Podobné nemovitosti


Nevyhovuje Vám typ bytu? Podívejte se na jiné kategorie bytů.


Vybrané články z našeho blogu