Pronájem obchodního prostoru, Uherské Hradiště, Stojanova, 76 m2 (ID: 4225365)

Stojanova, Uherské Hradiště

19 000 Kč /za měsíc Získejte výhodnou HYPOTÉKU

(Měsíční nájemné činí 19 000,-Kč + zálohy na energie ve výši 4 500,-Kč)

Prémioví partneři v Uherském Hradišti

Informace k nemovitosti

Představujeme Vám tento obchodní prostor k pronájmu v srdci Uherského Hradiště. Nemovitost se nachází v patrové cihlové budově a díky svému velmi dobrému stavu je připravena k okamžitému využití. Před nedávnou dobou prošla kompletní rekonstrukcí, která byla dokončena v roce 2023, což zajišťuje moderní a kvalitní prostředí pro Vaše podnikání.

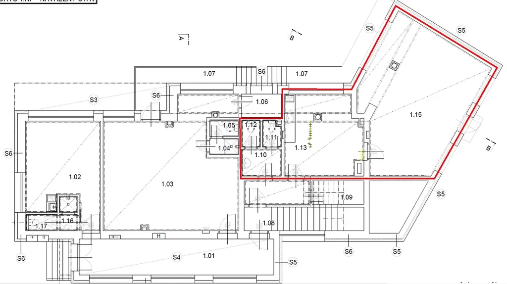
Obchodní prostor má užitnou plochu 76 m² a je umístěn v přízemí budovy se samostatným vchodem z městského parkoviště,ČD-jih. To nabízí ideální příležitost pro obchodní činnost s možností viditelnosti a přístupu. Doprava je snadná díky blízkosti vlakové zastávky, silnice a spojení MHD, což zajišťuje pohodlný přístup jak pro klienty, tak pro zaměstnance.

Měsíční nájemné činí 19 000 Kč, s dodatkovými zálohami na energie ve výši 4 500 Kč. Energetická třída objektu je B, což znamená, že prostor je energeticky velmi úsporný. V ceně nájmu je internet a zabezpečovací systém. Všechny energie u této plochy jsou měřeny samostatně. Využijte této výhodné nabídky pro rozvoj svého podnikání v moderních a funkcionalistických prostorách.

Prohlídky jsou možné po předchozí domluvě. Pro více informací o této nemovitosti nebo sjednání prohlídky nás prosím kontaktujte nebo vyplňte níže uvedený formulář, rádi Vám pomůžeme.

Parametry nemovitosti

Cena
19 000 Kč /za měsíc
Poznámka k ceně
Měsíční nájemné činí 19 000,-Kč + zálohy na energie ve výši 4 500,-Kč
Aktualizováno
2. 4. 2026
Adresa
Stojanova, Uherské Hradiště
Stavba
Cihlová
Stav objektu
Velmi dobrý
Patro
1.
Užitná plocha
76 m2
Třída energetické náročnosti
B - Velmi úsporná
Elektřina
230V, 400V
Komunikace
Asfaltová
Telekomunikace
Internet
Doprava
Vlak, Silnice, MHD

Kontaktovat makléře

Máte zájem o tuto nemovistost?

Tímto, v souladu s nařízením Evropského parlamentu a Rady (EU) 2016/679, v platném znění, prohlašuji, že mi je alespoň 16 let a uděluji tak svůj souhlas se zpracováním zadaných údajů (jméno, telefon, e-mail, ip adresa) společnosti B3 Technology, s.r.o., IČ: 07330600, se sídlem Novostavby 126/23, 435 11 Lom (správce dat), za účelem předání dotazu z tohoto formuláře Vámi vybranému inzerentovi a zpětného kontaktování mé osoby. Osobní údaje bude správce zpracovávat manuálně i automaticky přímo prostřednictvím svých zaměstnanců. Informace předané tímto formulářem budou uloženy v databázi správce maximálně po dobu 10 let. Odvolání souhlasu s uložením a zpracováním poskytnutých dat lze e-mailem na info@videobydleni.cz. V případě podezření na neoprávněné použití Vámi poskytnutých údajů máte právo předat podnět k šetření Úřadu pro ochranu osobních údajů. Více informací
Chystáte se prodat nemovitost?
Pomůžeme Vám!

Inzerát si prohlédlo 0 lidí

Prodejce

Petr Vlček

Petr Vlček

Hlídací pes

Chcete dostávat emailem podobné nabídky pronájmu obchodních prostor v Uherském Hradišti?

Podobné nemovitosti


Nevyhovuje Vám typ nemovitosti? Podívejte se na jiné kategorie komerčních.


Vybrané články z našeho blogu