Prodej rodinného domu, Brno, 362 m2 (ID: 4225411)

Brno, Líšeň

13 990 000 Kč /za nemovitost HYPOTÉKA od 62 527 Kč /za měsíc
Prémioví partneři v Brně

Informace k domu

Nabízíme k prodeji velký řadový rodinný dům v klidné a vyhledávané části Brna – Líšeň, který nabízí nadstandardní prostor a obrovský potenciál k rekonstrukci dle vlastních představ.

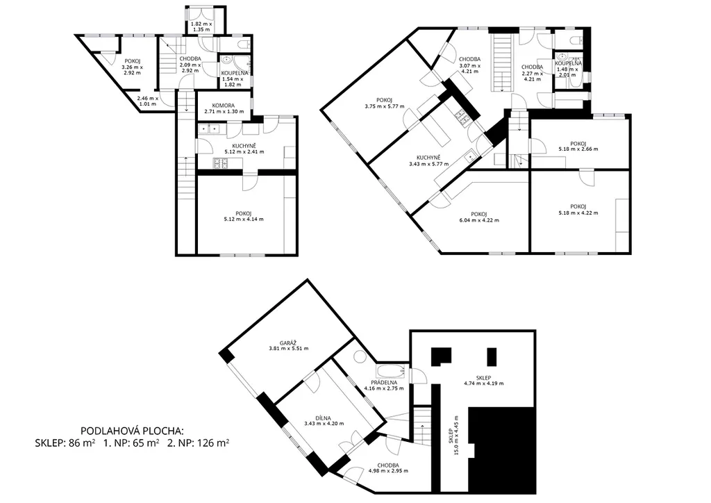
Dům disponuje více než 6 místnostmi a členitým uspořádáním, díky čemuž je ideální pro početnou rodinu, vícegenerační bydlení nebo kombinaci bydlení a podnikání.

Základní parametry:

Užitná plocha: 362 m²
Zastavěná plocha: 190 m²
Plocha pozemku: 251 m²

Dispozice: více než 6 místností

Zahrada
Velká terasa
Balkón

Možnost vybudování podkroví

Přízemí: garáž, dílna, 2 sklepy

Hlavní výhody:

Klidná a bezpečná lokalita
Výborná dostupnost do centra Brna
Velkorysý prostor pro celou rodinu
Nemovitost s vysokým potenciálem zhodnocení
Možnost kompletní rekonstrukce dle vlastního stylu

Dům je určen k rekonstrukci, což novému majiteli umožňuje vytvořit si moderní bydlení přesně podle svých představ. Díky rozloze a dispozici lze vybudovat opravdu reprezentativní rodinné sídlo.


Pro více informací nebo sjednání prohlídky nás neváhejte kontaktovat.
Rádi vám nemovitost osobně představíme.

Vaše finance a reality s.r.o.
Finanční a realitní služby



Jana Studýnka

Parametry domu

Cena
13 990 000 Kč /za nemovitost Spočítat hypotéku
Aktualizováno
2. 4. 2026
Adresa
Brno, Líšeň
Stavba
Cihlová
Stav objektu
Dobrý
Užitná plocha
362 m2
Zastavěná plocha
190 m2
Plocha pozemku
251 m2
Garáž
Sklep

Kontaktovat makléře

Máte zájem o tento dům?

Tímto, v souladu s nařízením Evropského parlamentu a Rady (EU) 2016/679, v platném znění, prohlašuji, že mi je alespoň 16 let a uděluji tak svůj souhlas se zpracováním zadaných údajů (jméno, telefon, e-mail, ip adresa) společnosti B3 Technology, s.r.o., IČ: 07330600, se sídlem Novostavby 126/23, 435 11 Lom (správce dat), za účelem předání dotazu z tohoto formuláře Vámi vybranému inzerentovi a zpětného kontaktování mé osoby. Osobní údaje bude správce zpracovávat manuálně i automaticky přímo prostřednictvím svých zaměstnanců. Informace předané tímto formulářem budou uloženy v databázi správce maximálně po dobu 10 let. Odvolání souhlasu s uložením a zpracováním poskytnutých dat lze e-mailem na info@videobydleni.cz. V případě podezření na neoprávněné použití Vámi poskytnutých údajů máte právo předat podnět k šetření Úřadu pro ochranu osobních údajů. Více informací
Chystáte se prodat nemovitost?
Pomůžeme Vám!

Inzerát si prohlédlo 0 lidí

Prodejce

Jana Studýnka

Jana Studýnka

Hlídací pes

Chcete dostávat emailem podobné nabídky prodeje rodinných domů v Brně?

Podobné nemovitosti


Nevyhovuje Vám typ domu? Podívejte se na jiné kategorie domů.


Vybrané články z našeho blogu