Soccer reality

Prodej rodinného domu, Škvorec, 142 m2 (ID: 4225991)

Škvorec

12 699 000 Kč /za nemovitost HYPOTÉKA od 56 757 Kč /za měsíc

(včetně DPH, pozemku a inženýrských sítí)

Prémioví partneři v Škvorci

Informace k domu

Nabízíme k prodeji moderní nízkoenergetický rodinný dům typu IDEAL II, který je součástí nově zahájené nabídky exkluzivního projektu společnosti CANABA.

V rámci tohoto projektu vznikne pouze 25 rodinných domů, což zajišťuje komorní charakter lokality, dostatek soukromí a zároveň plnou občanskou vybavenost i výbornou dostupnost do Prahy.

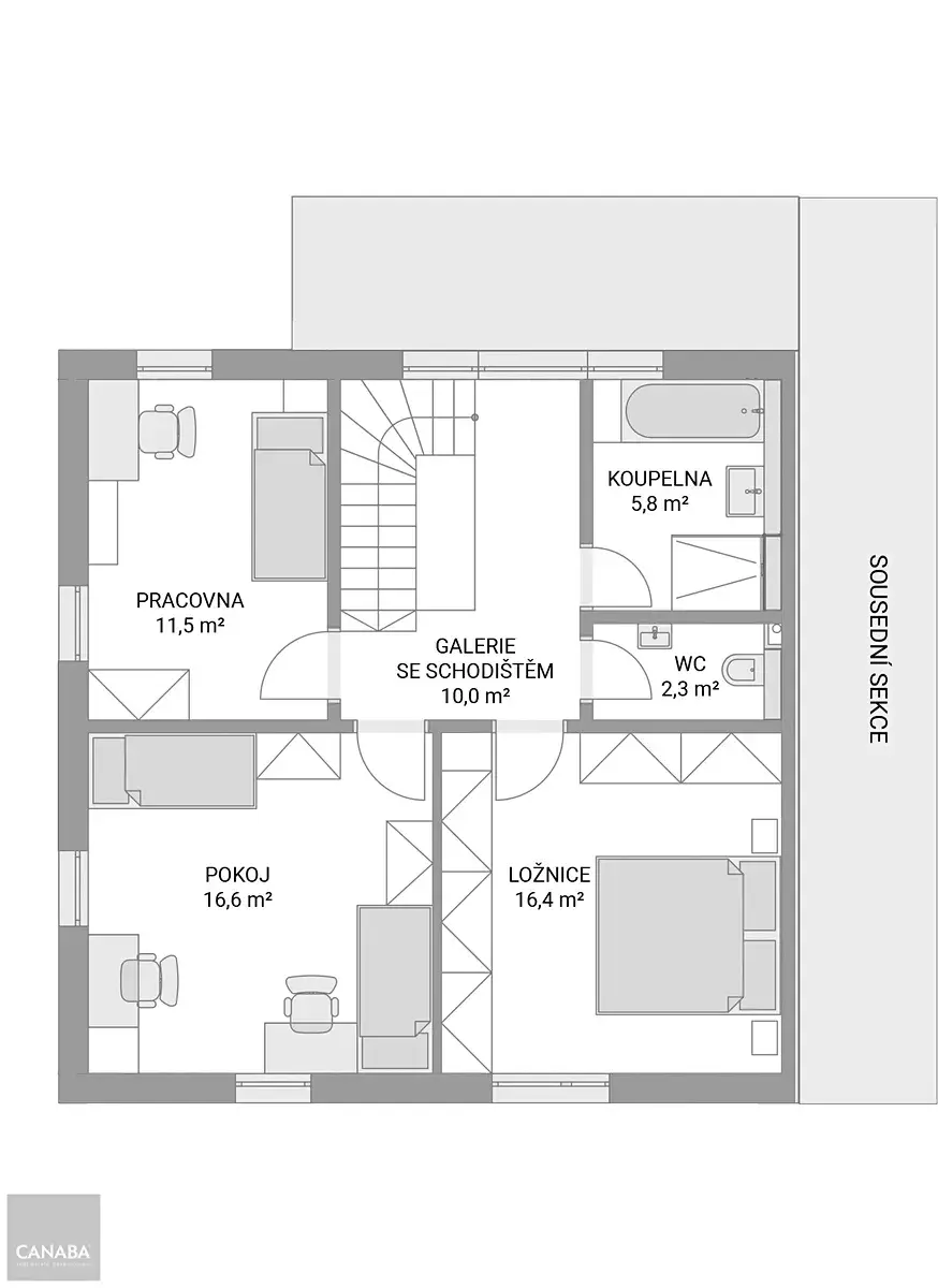
Dům je architektonicky promyšlený, patrový, s celkovou podlahovou plochou 142 m². Nabízí 5 obytných místností a zároveň dostatek nadstandardních prostor pro technické a úložné zázemí, jako je zádveří, šatna či technická místnost. Součástí je také prostorná zahrada o velikosti 426 m².

Dominantou domu je světlý obývací pokoj o velikosti téměř 34 m² s terasovými dveřmi vedoucími na zahradu a prakticky oddělenou kuchyní. V přízemí se dále nachází koupelna se sprchovým koutem a toaletou, technická místnost připravená pro pračku a sušičku, komora pod schodištěm a šatna. V patře je hlavní ložnice, dva samostatné dětské pokoje a další koupelna vybavená vanou, sprchovým koutem a samostatnou toaletou. Všechny místnosti propojuje prostorná hala.

K domu náleží parkovací stání pro až 3 automobily a přístupový chodník.

Nemovitost je navržena ve vysokém standardu s důrazem na komfort, funkčnost a moderní technologie. Nízké provozní náklady zajišťuje tepelné čerpadlo.

Vnitřní vybavení, jako jsou dveře, podlahy, obklady, dlažba i sanitární prvky, lze přizpůsobit vašim individuálním požadavkům. Dům bude dokončen na klíč dle vašich představ a připraven k okamžitému nastěhování.

Celková cena nezahrnuje poplatek obci za rozvoj infrastruktury ve výši 150.000 Kč.

Cena je konečná a zahrnuje pozemek, vybudování inženýrských sítí i DPH. Výstavba projektu již byla zahájena a probíhá v lokalitě vzdálené do 4 km od Úval.

Naše domy se těší dlouholeté oblibě. Jejich přednosti ocenilo za téměř 35 let více než 8500 spokojených majitelů v celé ČR. Díky unikátní masivní technologii poskytujeme zárukou 50 let na konstrukční systém.

Rádi a zdarma Vám zajistíme výhodný hypoteční úvěr s nejnižší úrokovou sazbou na trhu.

V případě zájmu nás neváhejte kontaktovat a my dáme Vašemu životu místo.

Parametry domu

Cena
12 699 000 Kč /za nemovitost Spočítat hypotéku
Poznámka k ceně
včetně DPH, pozemku a inženýrských sítí
Aktualizováno
2. 4. 2026
Adresa
Škvorec
ID
01451
Stavba
Cihlová
Stav objektu
Ve výstavbě
Druh objektu
Samostatný
Užitná plocha
142 m2
Plocha pozemku
426 m2
Třída energetické náročnosti
B - Velmi úsporná
Ukazatel energetické náročnosti
56 kWh/m2 za rok
Zdroj teplé vody
Tepelné čerpadlo
Parkování

Kontaktovat makléře

Realitní kancelář

CANABA a.s.

Štětkova 1001/5, Praha, Nusle

Chystáte se prodat nemovitost?
Pomůžeme Vám!

Máte zájem o tento dům?

Tímto, v souladu s nařízením Evropského parlamentu a Rady (EU) 2016/679, v platném znění, prohlašuji, že mi je alespoň 16 let a uděluji tak svůj souhlas se zpracováním zadaných údajů (jméno, telefon, e-mail, ip adresa) společnosti B3 Technology, s.r.o., IČ: 07330600, se sídlem Novostavby 126/23, 435 11 Lom (správce dat), za účelem předání dotazu z tohoto formuláře Vámi vybranému inzerentovi a zpětného kontaktování mé osoby. Osobní údaje bude správce zpracovávat manuálně i automaticky přímo prostřednictvím svých zaměstnanců. Informace předané tímto formulářem budou uloženy v databázi správce maximálně po dobu 10 let. Odvolání souhlasu s uložením a zpracováním poskytnutých dat lze e-mailem na info@videobydleni.cz. V případě podezření na neoprávněné použití Vámi poskytnutých údajů máte právo předat podnět k šetření Úřadu pro ochranu osobních údajů. Více informací
Chystáte se prodat nemovitost?
Pomůžeme Vám!

Inzerát si prohlédlo 1 lidí

Prodejce

Ondřej Křížek

Ondřej Křížek

Hlídací pes

Chcete dostávat emailem podobné nabídky prodeje rodinných domů v Škvorci?

Podobné nemovitosti


Nevyhovuje Vám typ domu? Podívejte se na jiné kategorie domů.


Vybrané články z našeho blogu