Pronájem kanceláře, Praha - Karlín, Rohanské nábřeží, 1543 m2

Rohanské nábřeží, Praha, Karlín

18,29 € /za metr čtvereční / měsíc Získejte výhodnou HYPOTÉKU
Prémioví partneři v Praze 8

Stěhovací služby

Výkup a prodej starého nábytku

Pojištění a finance

Informace k nemovitosti

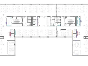
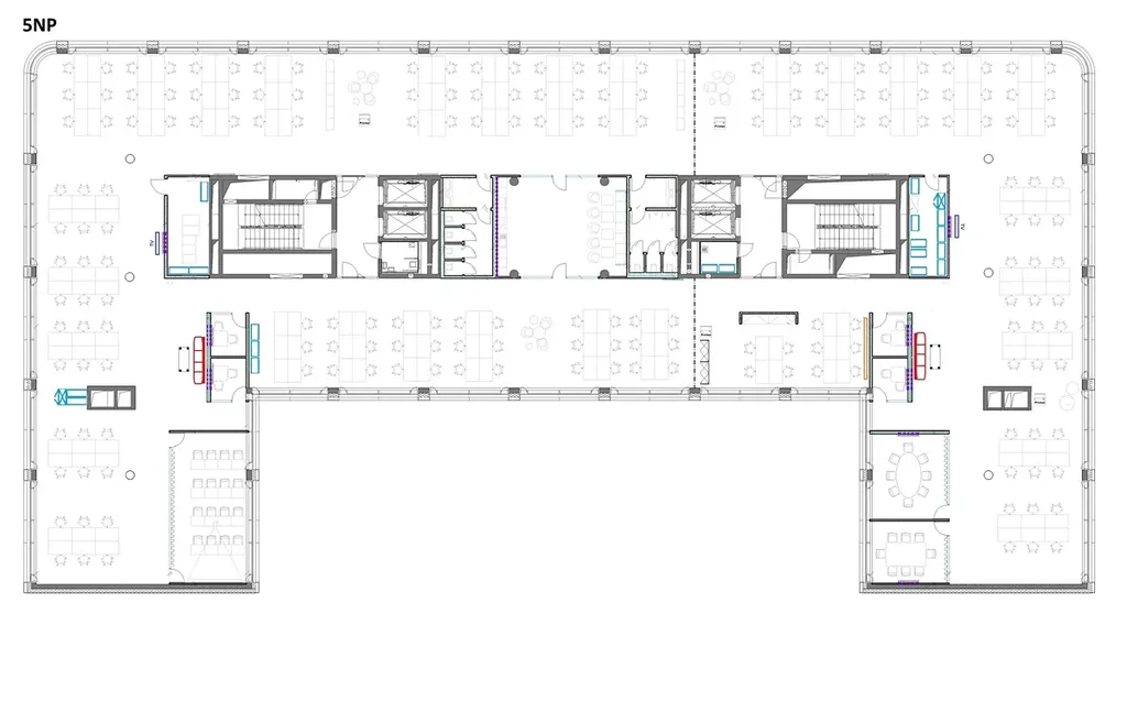
Nabízíme k pronájmu moderní kancelářské prostory v nové skeletové stavbě v centru Prahy. Tato novostavba patrového typu nabízí ideální moderní zázemí pro růst Vašeho podnikání. Kanceláře se nacházejí v pátém patře budovy, což zajišťuje dostatek světla a výhled na okolní město.

Celková užitná plocha 1543 m² nabízí velkorysé možnosti pro interiér a dispozici kancelářských prostor podle Vašich potřeb. Komfort a pohodlí zajišťuje i osm garážových míst, což je skvělá výhoda pro zaměstnance a návštěvy.

Tato lokalita v srdci Prahy je ideálním místem pro vaše obchodní aktivity, s dobrou dostupností na veřejnou dopravu a veškerou občanskou vybaveností na dosah. Předpokládané datum nastěhování je stanoveno na 1. května 2027, takže si veškeré potřebné úpravy a design můžete naplánovat s dostatečným předstihem.

Pokud Vás tyto kancelářské prostory zaujaly, neváhejte nám napsat nebo zavolat a rádi Vám vše ukážeme osobně. Prohlídky jsou možné po předchozí domluvě. Pro více informací o této nemovitosti nebo sjednání prohlídky nás prosím kontaktujte nebo vyplňte níže uvedený formulář, rádi Vám pomůžeme.

Parametry nemovitosti

Cena
18,29 € /za metr čtvereční / měsíc
Náklady na bydlení
250.000CZK
Aktualizováno
21. 5. 2026
Adresa
Rohanské nábřeží, Praha, Karlín
Stavba
Skeletová
Stav objektu
Novostavba
Patro
5.
Lokalita objektu
Centrum obce
Užitná plocha
1543 m2
Třída energetické náročnosti
B - Velmi úsporná
Telekomunikace
Internet
Doprava
Silnice, MHD
Garáž
Výtah
Bezbarierový přístup

Kontaktovat makléře

Máte zájem o tuto nemovistost?

Tímto, v souladu s nařízením Evropského parlamentu a Rady (EU) 2016/679, v platném znění, prohlašuji, že mi je alespoň 16 let a uděluji tak svůj souhlas se zpracováním zadaných údajů (jméno, telefon, e-mail, ip adresa) společnosti B3 Technology, s.r.o., IČ: 07330600, se sídlem Novostavby 126/23, 435 11 Lom (správce dat), za účelem předání dotazu z tohoto formuláře Vámi vybranému inzerentovi a zpětného kontaktování mé osoby. Osobní údaje bude správce zpracovávat manuálně i automaticky přímo prostřednictvím svých zaměstnanců. Informace předané tímto formulářem budou uloženy v databázi správce maximálně po dobu 10 let. Odvolání souhlasu s uložením a zpracováním poskytnutých dat lze e-mailem na info@videobydleni.cz. V případě podezření na neoprávněné použití Vámi poskytnutých údajů máte právo předat podnět k šetření Úřadu pro ochranu osobních údajů. Více informací
Chystáte se prodat nemovitost?
Pomůžeme Vám!
Theleadway banner

Inzerát si prohlédlo 5 lidí

Prodejce

Josef Krautman MRICS

Josef Krautman MRICS

Hlídací pes

Chcete dostávat emailem podobné nabídky pronájmu kanceláří v Praze 8?

Podobné nemovitosti


Nevyhovuje Vám typ nemovitosti? Podívejte se na jiné kategorie komerčních.


Vybrané články z našeho blogu