Prodej bytu 2+1, Cheb, Na Hradčanech, 82 m2

Na Hradčanech, Cheb

4 400 000 Kč /za nemovitost HYPOTÉKA od 19 665 Kč /za měsíc
Prémioví partneři v Chebu

Informace k bytu

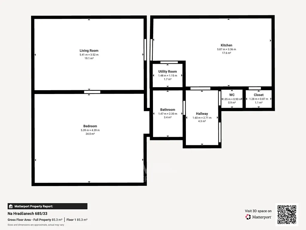
Nabízíme k prodeji nadstandardně zrekonstruovaný byt o dispozici 2+1 a výměře 82 m², (10m² sklep) který se nachází na ulici Na Hradčanech ve městě Cheb. Byt je situován ve 4. NP menšího cihlového bytového domu.
Interiér bytu prošel pečlivou a nadstandardní rekonstrukcí, při které byl kladen důraz na kvalitu materiálů, funkčnost i celkový estetický dojem. Výsledkem je moderní a vkusně řešený prostor, který je připraven k okamžitému užívání bez nutnosti dalších úprav.
Dispozice bytu je velmi praktická a nabízí kuchyni, obývací pokoj, ložnici, koupelnu, samostatné WC, technickou místnost, předsíň a spíž, což zajišťuje dostatek prostoru i úložných možností pro každodenní život. Součástí je také sklepní kóje.
Velkou výhodou jsou nízké měsíční poplatky ve výši 1 795 Kč.
Lokalita ulice Na Hradčanech patří mezi klidnější a příjemné části města Cheb, které kombinují dostupnost centra s dostatkem soukromí a zeleně v okolí. V docházkové vzdálenosti se nachází kompletní občanská vybavenost – obchody, školy, školky, zdravotnická zařízení i zastávky MHD. Výhodou je také rychlé spojení do centra města i snadná dostupnost hlavních dopravních tahů. Okolí zároveň nabízí možnosti pro procházky a volnočasové aktivity.
Tato nemovitost představuje skvělou volbu pro ty, kteří hledají kvalitní a prostorné bydlení bez kompromisů, případně zajímavou příležitost pro investici k pronájmu.
V případě zájmu o více informací nebo sjednání prohlídky mě neváhejte kontaktovat.

Parametry bytu

Cena
4 400 000 Kč /za nemovitost Spočítat hypotéku
Aktualizováno
3. 4. 2026
Adresa
Na Hradčanech, Cheb
ID
29856
Stavba
Cihlová
Stav objektu
Po rekonstrukci
Patro
3.
Vlastnictví
Osobní
Užitná plocha
82 m2
Třída energetické náročnosti
G - Mimořádně nehospodárná
Elektřina
230V
Odpad
Veřejná kanalizace
Komunikace
Betonová
Telekomunikace
Telefon, Internet, Satelit, Kabelová televize, Kabelové rozvody, Ostatní
Doprava
Vlak, Dálnice, Silnice, MHD, Autobus
Voda
Místní zdroj vody
Topné těleso
Radiátory
Zdroj teplé vody
Plynový kondenzační kotel
Sklep

Kontaktovat makléře

Máte zájem o tento byt?

Tímto, v souladu s nařízením Evropského parlamentu a Rady (EU) 2016/679, v platném znění, prohlašuji, že mi je alespoň 16 let a uděluji tak svůj souhlas se zpracováním zadaných údajů (jméno, telefon, e-mail, ip adresa) společnosti B3 Technology, s.r.o., IČ: 07330600, se sídlem Novostavby 126/23, 435 11 Lom (správce dat), za účelem předání dotazu z tohoto formuláře Vámi vybranému inzerentovi a zpětného kontaktování mé osoby. Osobní údaje bude správce zpracovávat manuálně i automaticky přímo prostřednictvím svých zaměstnanců. Informace předané tímto formulářem budou uloženy v databázi správce maximálně po dobu 10 let. Odvolání souhlasu s uložením a zpracováním poskytnutých dat lze e-mailem na info@videobydleni.cz. V případě podezření na neoprávněné použití Vámi poskytnutých údajů máte právo předat podnět k šetření Úřadu pro ochranu osobních údajů. Více informací
Chystáte se prodat nemovitost?
Pomůžeme Vám!

Inzerát si prohlédlo 1 lidí

Prodejce

Pavel Jaroš

Pavel Jaroš

Hlídací pes

Chcete dostávat emailem podobné nabídky prodeje bytů 2+1 v Chebu?

Podobné nemovitosti


Nevyhovuje Vám typ bytu? Podívejte se na jiné kategorie bytů.


Vybrané články z našeho blogu