Prodej bytu 3+kk, Praha - Nusle, Rostislavova, 80 m2

Rostislavova, Praha, Nusle

11 500 000 Kč /za nemovitost HYPOTÉKA od 51 398 Kč /za měsíc
Prémioví partneři v Praze 4

Stěhovací služby

Výkup a prodej starého nábytku

Informace k bytu

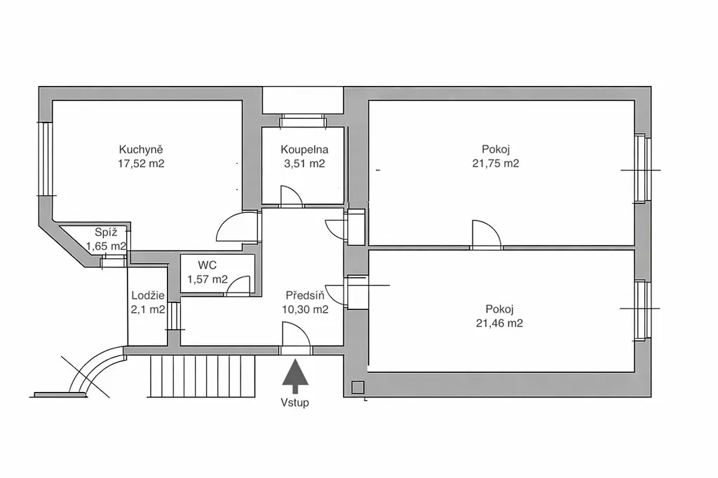
Nabízím k prodeji prostorný byt o dispozici 2+1 s možností úpravy na 3+kk, o celkové ploše 80 m², který se nachází ve 4. patře cihlového domu s výtahem v atraktivní lokalitě Praha 4 – Nusle.

Byt je před rekonstrukcí a nabízí tak ideální příležitost k vytvoření bydlení podle vlastních představ nebo jako zajímavou investici. Rekonstrukce byla částečně zahájena, je však potřeba ji dokončit.

Aktuální stav bytu:
• byt je před rekonstrukci
• ložnice – nově vyštukované zdi a sádrokartonový podhled
• koupelna – nyní obyvatelná, připravena na nové rozvody vody, stěny bez omítek
• ostatní místnosti – před rekonstrukcí
• plastová okna
• orientace na východ a západ
• samostatné vstupy do pokojů z chodby


Dispozice bytu umožňuje jednoduchou úpravu na moderní 3+kk.
Vytápění je nyní přes plynové vafky.

Lokalita nabízí:
• výborné spojení MHD do centra Prahy
• obchody, restaurace, služby v docházkové vzdálenosti
• školy a školky v okolí
• parkování v modré zóně v okolí domu

Dům je po rekonstrukci, k bytu patří také sklepní komora v suterénu domu.

Pro více informací mě neváhejte kontaktovat.

Parametry bytu

Cena
11 500 000 Kč /za nemovitost Spočítat hypotéku
Aktualizováno
5. 4. 2026
Adresa
Rostislavova, Praha, Nusle
ID
N00276
Stavba
Cihlová
Stav objektu
Před rekonstrukcí
Patro
5. z 6
Lokalita objektu
Klidná část obce
Vlastnictví
Osobní
Užitná plocha
80 m2
Podlahová plocha
80 m2
Třída energetické náročnosti
G - Mimořádně nehospodárná

Kontaktovat makléře

Realitní kancelář

ATLANTIC reality, s.r.o.

Bubenské nábřeží 306/13, Praha, Holešovice

Chystáte se prodat nemovitost?
Pomůžeme Vám!

Máte zájem o tento byt?

Tímto, v souladu s nařízením Evropského parlamentu a Rady (EU) 2016/679, v platném znění, prohlašuji, že mi je alespoň 16 let a uděluji tak svůj souhlas se zpracováním zadaných údajů (jméno, telefon, e-mail, ip adresa) společnosti B3 Technology, s.r.o., IČ: 07330600, se sídlem Novostavby 126/23, 435 11 Lom (správce dat), za účelem předání dotazu z tohoto formuláře Vámi vybranému inzerentovi a zpětného kontaktování mé osoby. Osobní údaje bude správce zpracovávat manuálně i automaticky přímo prostřednictvím svých zaměstnanců. Informace předané tímto formulářem budou uloženy v databázi správce maximálně po dobu 10 let. Odvolání souhlasu s uložením a zpracováním poskytnutých dat lze e-mailem na info@videobydleni.cz. V případě podezření na neoprávněné použití Vámi poskytnutých údajů máte právo předat podnět k šetření Úřadu pro ochranu osobních údajů. Více informací
Chystáte se prodat nemovitost?
Pomůžeme Vám!

Inzerát si prohlédlo 1 lidí

Prodejce

Martin Kratochvíl

Martin Kratochvíl

Hlídací pes

Chcete dostávat emailem podobné nabídky prodeje bytů 3+kk v Praze 4?

Podobné nemovitosti


Nevyhovuje Vám typ bytu? Podívejte se na jiné kategorie bytů.


Vybrané články z našeho blogu